Parkfields, Putney, London
By Warren Residential Sales & Lettings
£ 1,500,000
Reviews
3 out of 5 stars
Warren Residential Sales & Lettings says ..
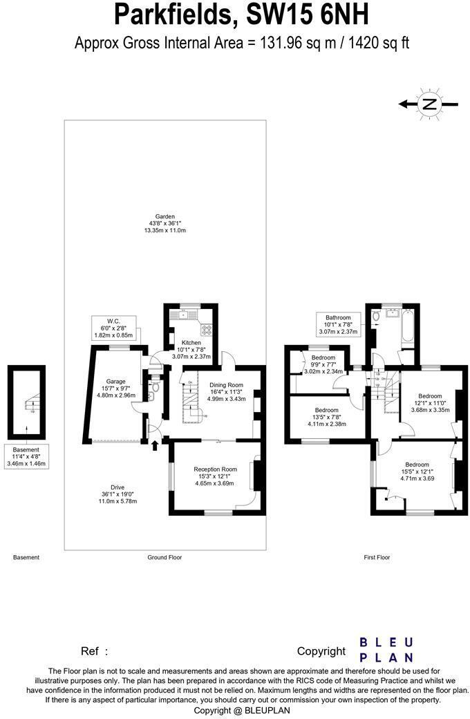
A un-modernised (1,420 SQ FT) Four bedroom, One bathroom, semi-detached family home, with off-street parking, located on this highly prestigious road. The property is available with no onward chain and offers a prospective purchaser fabulous scope to modernise and extend (subject to the necessar...
Property Oracle says ..
This four-bedroom property in Parkfields, Putney, presents a compelling opportunity but requires a realistic assessment of its condition and associated costs. The location is a major strength, with access to highly rated schools and Putney’s amenities. However, the property is in clear need of a full refurbishment. The kitchen and bathrooms are particularly dated, and the interior finishes throughout require updating. The garden offers an attractive outdoor space, a valuable addition in a densely populated area like Putney. The listed price reflects the desirability of the location, but prospective buyers must factor in a substantial budget for renovation. A thorough survey is essential before making any offer to fully understand the extent of necessary works and potential hidden issues.
Therefore, we give this property 6 / 10. *Disclaimer: This is our option and does constitute a recommendation or financial advice. Do your own research. *
- Price
- 7
- Condition
- 4
- Location
- 8
- Land
- 6
- Bedrooms
- 4
- Bathrooms
- 1
- Sqft (est)
- 1,420.00
The heatmap indicates the level of crime in the area. The color of the heatmap indicates the crime severity and recency.
Metrics Year-on-Year
- Average area value
- 721,658.00 £Decreased by 13.09 %
- Est sale value
- 1,473,960.00 £Increased by 82.43 %
- Average area rental value
- 2,654.00 £/moDecreased by 13.47 %
- Est letting value
- 4,260.00 £/moIncreased by 50.00 %
- Est rental Yield
- 4.41 %Decreased by 0.45 %
- Crime Rate
- 7.00 %Unchanged by 0.00 %
Agent Activity
Warren Residential Sales & Lettings created the listing.
Nearby Schools
| Name | Type | Ofsted | Distance |
|---|---|---|---|
| All Saints' Cofe Primary School, Putney | Voluntary Aided School | Outstanding | 0.55 KM |
| Our Lady Of Victories Catholic Primary School | Voluntary Aided School | Outstanding | 0.60 KM |
| Hotham Primary School | Community School | Good | 0.69 KM |
| St Mary'S Cofe Primary School | Voluntary Aided School | Outstanding | 0.75 KM |
| Oasis Academy Putney | Academy Sponsor Led | Good | 0.76 KM |
Images
Nearby Streets
| Name | Average Price | Average Sqft | Distance |
|---|---|---|---|
| Jordan Court | £ 0 | 0 | 0.00 KM |
| Whitnell Road | £ 0 | 0 | 0.00 KM |
| Ravenna Road | £ 0 | 0 | 0.00 KM |
| Floss Street | £ 0 | 0 | 0.00 KM |
| North Lodge Close | £ 550,000 | 0 | 0.00 KM |
Nearby Transport
| Name | NLC | TLC | Distance |
|---|---|---|---|
| Putney | 5603 | PUT | 1.16 KM |
| Barnes | 5551 | BNS | 1.77 KM |
| Barnes Bridge | 5580 | BNI | 3.04 KM |
| Wandsworth Town | 5576 | WNT | 4.29 KM |
| Kensington (Olympia) | 3092 | KPA | 4.35 KM |
Nearby Listings
| Address | Price | Type | Score | Distance |
|---|---|---|---|---|
| Upper Richmond Road, Putney, London, SW15 | £ 440,000 | BUY | 7 / 10 | 0.08 KM |
| Upper Richmond Road, London, SW15 | £ 400,000 | BUY | 6 / 10 | 0.08 KM |
| Upper Richmond Road, Putney, London, SW15 | £ 400,000 | BUY | 6 / 10 | 0.09 KM |
| Upper Richmond Road, London SW15 | £ 1,350,000 | BUY | Unknown | 0.09 KM |
| Upper Richmond Road, London SW15 | £ 1,295,000 | BUY | 7 / 10 | 0.09 KM |
Nearby Properties
| Address | Price | Distance |
|---|---|---|
| 1 Parkfields | £ 1,950,000 | 0.03 KM |
| 10 Parkfields | £ 900,000 | 0.03 KM |
| 23 Parkfields | £ 1,810,000 | 0.03 KM |
| 21 Parkfields | £ 1,460,000 | 0.03 KM |
| 8 Parkfields | £ 2,200,000 | 0.03 KM |