Bellmount, Bowness-on-Windermere, The Lake District, LA23 3LX
By Fine & Country
£ 1,850,000
Reviews
3 out of 5 stars
Fine & Country says ..
Perfectly positioned on the verge of both Bowness and Windermere, Bellmount is both secluded and private but by no means isolated and enjoys the best of both villages. Walks onto the hillside are on your doorstep, and why not seek out inspiration for your own renovations at Bellmount with Blac...
Property Oracle says ..
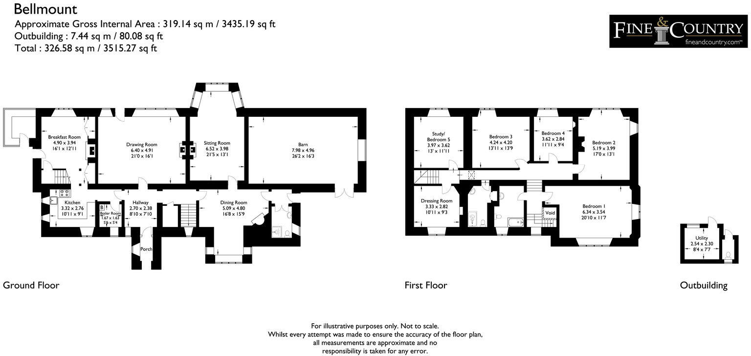
Bellmount is a detached property located in the popular tourist destination of Bowness-on-Windermere, in the Lake District. The property boasts six bedrooms and three bathrooms, offering ample space for a family or for use as a holiday let. The property is a period property and has a lot of character. However, the interior is dated and in need of renovation. The property benefits from a large garden and grounds, offering privacy and stunning views. The property is located close to local amenities and transport links, but the popularity of the area may impact the tranquility of the location. The list price seems high considering the condition of the property.
Therefore, we give this property 6 / 10. *Disclaimer: This is our option and does constitute a recommendation or financial advice. Do your own research. *
- Price
- 5
- Condition
- 5
- Location
- 8
- Land
- 8
- Bedrooms
- 6
- Bathrooms
- 3
- Sqft (est)
- 3,515.28
The heatmap indicates the level of crime in the area. The color of the heatmap indicates the crime severity and recency.
Metrics Year-on-Year
- Average area value
- 603,889.00 £Increased by 40.02 %
- Est sale value
- 1,757,640.00 £Increased by 46.63 %
- Average area rental value
- 1,340.00 £/moIncreased by 1.44 %
- Est letting value
- 3,515.28 £/moUnchanged by 0.00 %
- Est rental Yield
- 2.66 %Decreased by 27.72 %
- Crime Rate
- 0.00 %
Agent Activity
Fine & Country created the listing.
Nearby Schools
| Name | Type | Ofsted | Distance |
|---|---|---|---|
| Lakes Surestart Children'S Centre | Children's Centre | 3.54 KM | |
| Goodly Dale Primary School | Community School | Good | 3.54 KM |
| St Cuthberts Catholic Primary School, Windermere | Academy Converter | 3.94 KM | |
| St Martin & St Mary Church Of England Primary School | Voluntary Aided School | Good | 4.09 KM |
| The Lakes School | Community School | Good | 5.74 KM |
Images
Nearby Streets
| Name | Average Price | Average Sqft | Distance |
|---|---|---|---|
| Greenstile Park | £ 0 | 0 | 0.00 KM |
| B5285 | £ 515,000 | 0 | 0.00 KM |
Nearby Transport
| Name | NLC | TLC | Distance |
|---|---|---|---|
| Windermere | 1978 | WDM | 4.95 KM |
Nearby Listings
| Address | Price | Type | Score | Distance |
|---|---|---|---|---|
| Bellmount, Bowness-on-Windermere, The Lake District, LA23 3LX | £ 1,850,000 | BUY | 6 / 10 | 0.00 KM |
| Greenlands, Greenstiles Park, Bowness, The Lake District, LA23 3LU | £ 1,500,000 | BUY | 7 / 10 | 0.58 KM |
| Myrtlefield, Storrs Park, Bowness-on-Windermere, Windermere, LA23 3LA | £ 1,300,000 | BUY | Unknown | 0.82 KM |
| 3 Bellman Close, Bowness-on-Windermere, Cumbria, LA23 3QP | £ 345,000 | BUY | 8 / 10 | 0.89 KM |
| 2 Bellman Close, Bowness on Windermere, Cumbria, LA23 3QP | £ 275,000 | BUY | 7 / 10 | 0.89 KM |
Nearby Properties
| Address | Price | Distance |
|---|---|---|
| Brackenridge Barn | £ 625,000 | 0.10 KM |
| The Dairy | £ 287,000 | 0.20 KM |
| The Stables | £ 675,000 | 0.20 KM |
| Blackwell Cottage | £ 615,350 | 0.44 KM |
| Staddlestones | £ 960,000 | 0.59 KM |