Mickle Hill, Sandhurst, Berkshire, GU47
By Prospect Estate Agency
£ 700,000
Reviews
3 out of 5 stars
Prospect Estate Agency says ..
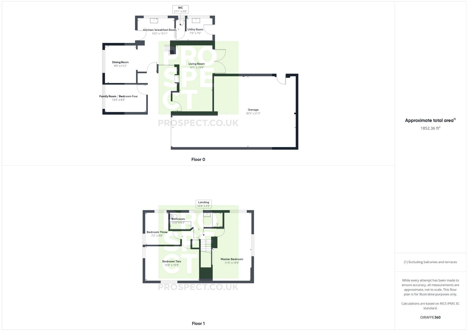
This detached chalet-style home is located in Little Sandhurst. The property occupies a corner plot, has been extended and improved by the current owner, and features a four-car garage. It is also conveniently close to Edgbarrow Secondary School. On the ground floor, the accommodation ...
Property Oracle says ..
This four-bedroom detached chalet-style house in Sandhurst, Berkshire, presents a compelling proposition for families. The property has clearly benefited from recent modernisation, as evidenced by a newly fitted modern kitchen and bathroom. The large open plan kitchen and dining area adds to the appeal of the property. The images suggest the home is well-maintained and ready to move into.
The location is favorable due to its proximity to well-regarded schools like Edgbarrow Secondary School and several primary schools. A key positive is the nearness of Sandhurst railway station, offering convenient access to various commuting destinations. While further details are needed concerning local shops and amenities, the initial indication is positive.
The property’s sizeable garden provides ample outdoor space, while the addition of a four-car garage is a considerable feature. This garage could be converted into extra living space as needed. The asking price seems to reflect the current market conditions in the area, however, this needs more information on the overall size of the property for a thorough appraisal. For a precise analysis, it would be necessary to have detailed information concerning the actual square footage, full property survey, as well as a clearer understanding of the local amenities. This will provide an accurate assessment of the property’s overall value and potential for future appreciation.
Therefore, we give this property 7 / 10. *Disclaimer: This is our option and does constitute a recommendation or financial advice. Do your own research. *
- Price
- 7
- Condition
- 8
- Location
- 7
- Land
- 6
- Bedrooms
- 4
- Bathrooms
- 1
The heatmap indicates the level of crime in the area. The color of the heatmap indicates the crime severity and recency.
Metrics Year-on-Year
- Average area value
- 217,143.00 £Decreased by 10.70 %
- Average area rental value
- 1,267.00 £/moIncreased by 25.57 %
- Est rental Yield
- 7.00 %Increased by 40.56 %
- Crime Rate
- 0.00 %
Agent Activity
Prospect Estate Agency created the listing.
Nearby Schools
| Name | Type | Ofsted | Distance |
|---|---|---|---|
| Eagle House School | Other Independent School | 0.51 KM | |
| New Scotland Hill Primary School | Community School | Good | 0.60 KM |
| Uplands Primary School And Nursery | Community School | Outstanding | 0.96 KM |
| Wellington College | Other Independent School | 1.14 KM | |
| St Michael'S Church Of England Primary School, Sandhurst | Voluntary Aided School | Good | 1.19 KM |
Images
Nearby Streets
| Name | Average Price | Average Sqft | Distance |
|---|---|---|---|
| Cock-a-Dobby | £ 0 | 0 | 0.00 KM |
| Sandy Lane | £ 0 | 0 | 0.00 KM |
| York Way | £ 0 | 0 | 0.00 KM |
| Sycamore Close | £ 0 | 0 | 0.00 KM |
| Byron Drive | £ 0 | 0 | 0.00 KM |
Nearby Transport
| Name | NLC | TLC | Distance |
|---|---|---|---|
| Sandhurst (Berks) | 5646 | SND | 0.77 KM |
| Crowthorne | 5628 | CRN | 2.15 KM |
| Blackwater | 5625 | BAW | 3.96 KM |
| Camberley | 5682 | CAM | 6.96 KM |
| Fleet | 5522 | FLE | 7.61 KM |
Nearby Listings
| Address | Price | Type | Score | Distance |
|---|---|---|---|---|
| Mickle Hill, Sandhurst, Berkshire, GU47 | £ 700,000 | BUY | 7 / 10 | 0.00 KM |
| Mickle Hill, Sandhurst, Berkshire | £ 685,000 | BUY | Unknown | 0.00 KM |
| Mickle Hill, Sandhurst, Berkshire, GU47 | £ 650,000 | BUY | Unknown | 0.04 KM |
| Mickle Hill, Sandhurst, Berkshire, GU47 | £ 685,000 | BUY | 7 / 10 | 0.06 KM |
| Longdown Road, Sandhurst, Berkshire, GU47 | £ 475,000 | BUY | 6 / 10 | 0.11 KM |
Nearby Properties
| Address | Price | Distance |
|---|---|---|
| 63 Longdown Road | £ 300,000 | 0.13 KM |
| 59 Longdown Road | £ 200,000 | 0.14 KM |
| 60 Longdown Road | £ 470,000 | 0.14 KM |
| 62 Longdown Road | £ 418,000 | 0.14 KM |
| 51 Longdown Road | £ 360,000 | 0.14 KM |