Park Road, London NW4
By Flagstones Property Group
£ 490,000
Reviews
3 out of 5 stars
Flagstones Property Group says ..
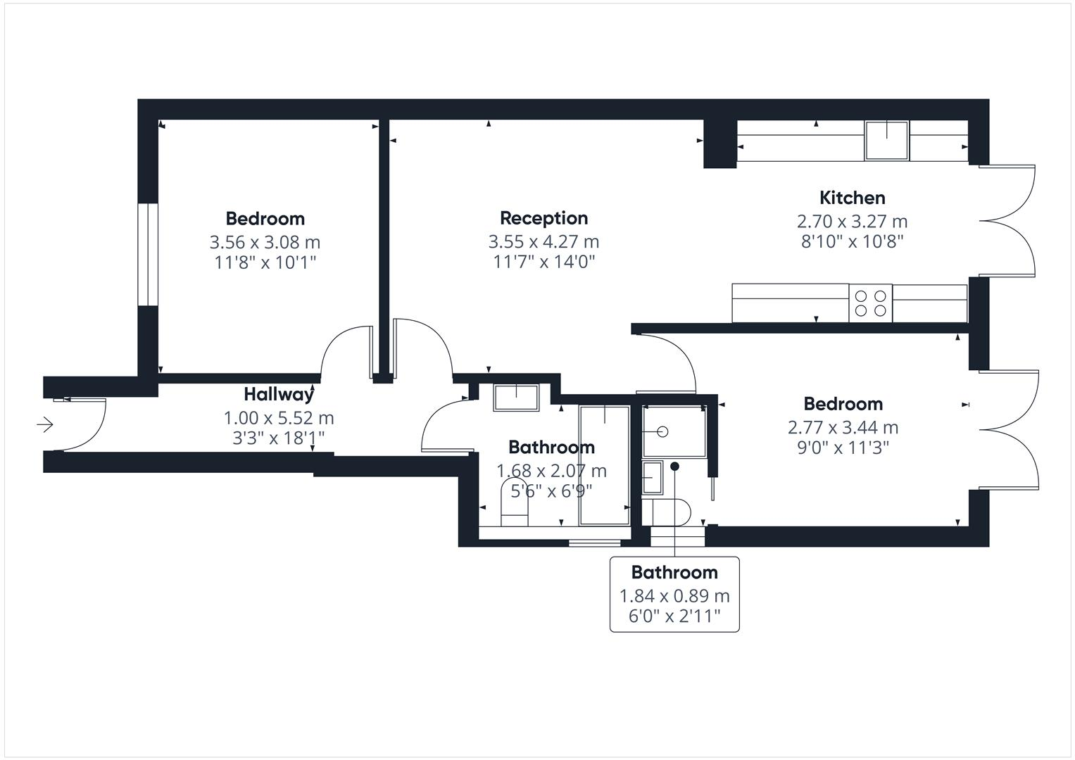
Discover this new 2 bedroom, 2 bathroom home located in a desirable neighborhood. The home includes a sleek modern kitchen, inviting living room, and a private garden ideal for both relaxation and social gatherings. Benefit from two well-maintained bathrooms and a prime location near ess...
Property Oracle says ..
This two-bedroom, two-bathroom property located on Park Road in West Hendon, London, presents itself well in the provided photographs. The images show a recently renovated interior with modern finishes, including a contemporary kitchen and bathrooms. The herringbone flooring and clean lines suggest a stylish aesthetic. The property benefits from access to a garden, although the provided plot size information is zero, suggesting it may be relatively small. The proximity to Hendon station provides convenient access to public transportation, and several ‘Good’-rated schools are within walking distance. However, several factors limit the ability to give a precise evaluation: the absence of detailed information regarding the property’s overall size and plot size, the limited number of comparative properties within close proximity to gauge the list price, and the lack of details about the general condition and quality of materials within the property. Additional information is required to support a complete analysis and provide a truly unbiased and detailed assessment of value and desirability. A physical viewing would significantly assist in a detailed evaluation of this property. In summary, this property shows promise, but data limitations prevent a comprehensive assessment.
Therefore, we give this property 6 / 10. *Disclaimer: This is our option and does constitute a recommendation or financial advice. Do your own research. *
- Price
- 7
- Condition
- 8
- Location
- 7
- Land
- 4
- Bedrooms
- 2
- Bathrooms
- 2
- Sqft (est)
- 739.16
The heatmap indicates the level of crime in the area. The color of the heatmap indicates the crime severity and recency.
Metrics Year-on-Year
- Average area value
- 612,659.00 £Decreased by 8.93 %
- Est sale value
- 575,805.64 £Increased by 30.05 %
- Average area rental value
- 2,231.00 £/moIncreased by 7.05 %
- Est letting value
- 1,478.32 £/moIncreased by 100.00 %
- Est rental Yield
- 4.37 %Increased by 17.47 %
- Crime Rate
- 2.00 %Unchanged by 0.00 %
Agent Activity
Flagstones Property Group created the listing.
Nearby Schools
| Name | Type | Ofsted | Distance |
|---|---|---|---|
| Parkfield Primary School | Academy Sponsor Led | Good | 0.47 KM |
| Parkfield, The Hyde, And Childs Hill Children'S Centre | Children's Centre | 0.63 KM | |
| Torah Vodaas | Other Independent School | Good | 0.77 KM |
| Tiferes High School | Other Independent School | Requires improvement | 0.98 KM |
| Mapledown School | Community Special School | Good | 1.08 KM |
Images
Nearby Streets
| Name | Average Price | Average Sqft | Distance |
|---|---|---|---|
| Allington Road | £ 1,000,000 | 0 | 0.00 KM |
| Haley Road | £ 0 | 0 | 0.00 KM |
| Choral Street | £ 0 | 0 | 0.00 KM |
| Parkview Avenue | £ 0 | 0 | 0.00 KM |
| Ribbon Lane | £ 0 | 0 | 0.00 KM |
Nearby Transport
| Name | NLC | TLC | Distance |
|---|---|---|---|
| Hendon | 1522 | HEN | 1.17 KM |
| Cricklewood | 1519 | CRI | 2.78 KM |
| Mill Hill Broadway | 1527 | MIL | 4.54 KM |
| Brondesbury Park | 1438 | BSP | 4.61 KM |
| Brondesbury | 1437 | BSY | 4.65 KM |
Nearby Listings
| Address | Price | Type | Score | Distance |
|---|---|---|---|---|
| Park Road, London NW4 | £ 490,000 | BUY | 6 / 10 | 0.00 KM |
| Park Road, London | £ 450,000 | BUY | 6 / 10 | 0.00 KM |
| Park Road, London | £ 600,000 | BUY | 6 / 10 | 0.09 KM |
| Park Road, London | £ 575,000 | BUY | 6 / 10 | 0.11 KM |
| Sturgess Avenue, Hendon | £ 560,000 | BUY | 7 / 10 | 0.11 KM |
Nearby Properties
| Address | Price | Distance |
|---|---|---|
| 120 Park Road | £ 155,000 | 0.02 KM |
| 114 Park Road | £ 380,000 | 0.02 KM |
| 133 Park Road | £ 240,000 | 0.11 KM |
| 95 Park Road | £ 545,000 | 0.11 KM |
| 131 Park Road | £ 435,000 | 0.11 KM |