Monochrome Homes says ..
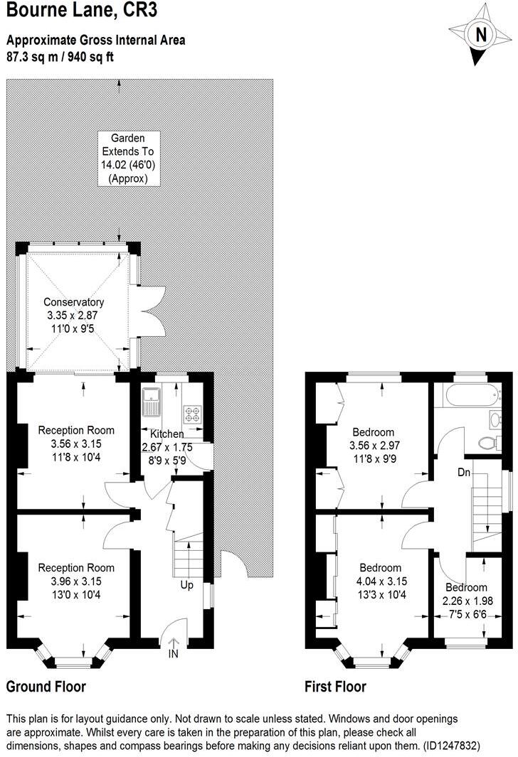
We’re delighted to present this three-bedroom semi-detached home, offering plenty of potential to add value and make it truly your own. With spacious accommodation and endless possibilities for personalisation, this property is perfect for buyers looking to create their ideal family home.
Property Oracle says ..
This semi-detached property in Caterham, Surrey, presents a blend of potential and challenges. Its location offers proximity to schools and transportation, making it suitable for families and commuters. However, the property requires significant renovation, as evidenced by the dated kitchen, bathrooms, and general wear and tear. The garden provides ample outdoor space, though it needs landscaping. Considering the list price and the need for refurbishment, this property could be a worthwhile investment for those willing to undertake the necessary work.
Therefore, we give this property 6 / 10. *Disclaimer: This is our option and does constitute a recommendation or financial advice. Do your own research. *
- Price
- 7
- Condition
- 4
- Location
- 7
- Land
- 7
- Bedrooms
- 3
- Bathrooms
- 1
The heatmap indicates the level of crime in the area. The color of the heatmap indicates the crime severity and recency.
Metrics Year-on-Year
- Average area value
- 642,000.00 £Increased by 28.16 %
- Average area rental value
- 1,300.00 £/moDecreased by 39.05 %
- Est rental Yield
- 2.43 %Decreased by 52.45 %
- Crime Rate
- 9.00 %Unchanged by 0.00 %
Agent Activity
Monochrome Homes created the listing.
Nearby Schools
| Name | Type | Ofsted | Distance |
|---|---|---|---|
| Oneschool Global Kenley Campus | Other Independent School | 0.81 KM | |
| Hillcroft Primary School | Academy Converter | Good | 0.87 KM |
| Caterham Sure Start Children'S Centre | Children's Centre Linked Site | 0.97 KM | |
| Audley Primary School | Community School | Good | 0.97 KM |
| Essendene Lodge School | Other Independent School | 1.00 KM |
Images
Nearby Streets
| Name | Average Price | Average Sqft | Distance |
|---|---|---|---|
| Eaton Place | £ 0 | 0 | 0.00 KM |
| Merlewood Close | £ 0 | 0 | 0.00 KM |
| Avenue Road | £ 475,000 | 0 | 0.00 KM |
| Clifton Close | £ 0 | 0 | 0.00 KM |
| Town End Close | £ 550,000 | 0 | 0.00 KM |
Nearby Transport
| Name | NLC | TLC | Distance |
|---|---|---|---|
| Caterham | 5351 | CAT | 2.24 KM |
| Whyteleafe South | 5439 | WHS | 2.31 KM |
| Whyteleafe | 5396 | WHY | 2.42 KM |
| Upper Warlingham | 5391 | UWL | 2.55 KM |
| Kenley | 5419 | KLY | 3.56 KM |
Nearby Listings
| Address | Price | Type | Score | Distance |
|---|---|---|---|---|
| Bourne Lane, Caterham | £ 425,000 | BUY | 6 / 10 | 0.00 KM |
| Bourne Lane, Caterham, CR3 | £ 525,000 | BUY | 7 / 10 | 0.04 KM |
| Bourne Lane, Caterham | £ 450,000 | BUY | 6 / 10 | 0.04 KM |
| Bourne Lane, Caterham on the Hill | £ 550,000 | BUY | 7 / 10 | 0.04 KM |
| Spencer Road, Caterham | £ 600,000 | BUY | Unknown | 0.06 KM |
Nearby Properties
| Address | Price | Distance |
|---|---|---|
| 2 Bourne Lane | £ 420,000 | 0.03 KM |
| 4 Bourne Lane | £ 310,000 | 0.03 KM |
| 10 Bourne Lane | £ 345,000 | 0.03 KM |
| 21 Bourne Lane | £ 215,000 | 0.03 KM |
| 1 Bourne Lane | £ 269,950 | 0.03 KM |