The Russets, Chestfield, Whitstable
CH

The Russets, Chestfield, Whitstable

By Christopher Hodgson

£ 575,000

Reviews

3 out of 5 stars

Christopher Hodgson says ..

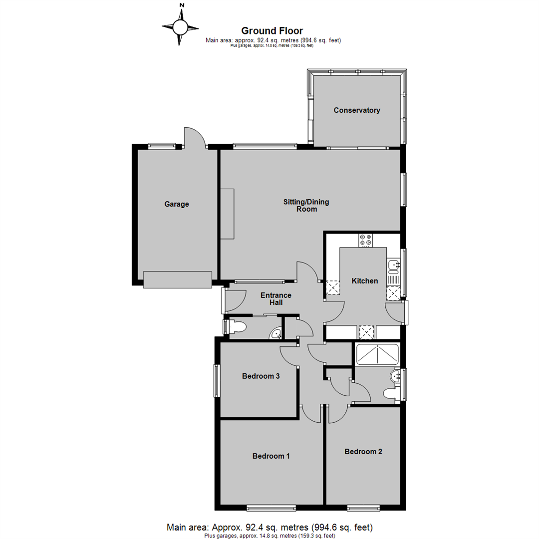
A spacious and smartly presented detached bungalow enjoying a peaceful setting in a highly desirable location within the popular village of Chestfield, accessible to the charming seaside town of Whitstable and the Cathedral City of Canterbury. The property is conveniently positioned within close ...

Property Oracle says ..

The property is a well-maintained 3-bedroom detached bungalow in Chestfield, Canterbury. The list price is slightly higher than the average price per sqft in the area, but this is potentially justified by the good condition, additional features (conservatory, garage), and desirable location. More comparable local data would be needed to make a definitive conclusion on price. The location is good, with relatively easy access to transportation and schools.

Therefore, we give this property 7 / 10. *Disclaimer: This is our option and does constitute a recommendation or financial advice. Do your own research. *

Price
7
Condition
8
Location
8
Land
7
Bedrooms
3
Bathrooms
1
Sqft (est)
159.30
Lot (est)
994.60

The heatmap indicates the level of crime in the area. The color of the heatmap indicates the crime severity and recency.

Metrics Year-on-Year

Average area value
479,464.00 £
Decreased by 15.58 %
from 567,934.00 £
Est sale value
93,349.80 £
Increased by 26.02 %
from 74,074.50 £
Average area rental value
1,150.00 £/mo
Decreased by 19.24 %
from 1,424.00 £/mo
Est letting value
159.30 £/mo
Unchanged by 0.00 %
from 159.30 £/mo
Est rental Yield
2.88 %
Decreased by 4.32 %
from 3.01 %
Crime Rate
6.00 %
Unchanged by 0.00 %
from 6.00 %

Agent Activity

  • Christopher Hodgson created the listing.

Nearby Schools

NameTypeOfstedDistance
Swalecliffe Community Primary SchoolFoundation SchoolGood1.35 KM
Swalecliffe Children'S CentreChildren's Centre Linked Site1.38 KM
The Whitstable SchoolAcademy Converter3.38 KM
St Mary'S Catholic Primary School, WhitstableAcademy ConverterGood3.43 KM
Briary Children'S CentreChildren's Centre Linked Site3.44 KM

Images

The Russets, Chestfield, Whitstable The Russets, Chestfield, Whitstable The Russets, Chestfield, Whitstable The Russets, Chestfield, Whitstable The Russets, Chestfield, Whitstable The Russets, Chestfield, Whitstable The Russets, Chestfield, Whitstable The Russets, Chestfield, Whitstable The Russets, Chestfield, Whitstable The Russets, Chestfield, Whitstable The Russets, Chestfield, Whitstable The Russets, Chestfield, Whitstable The Russets, Chestfield, Whitstable The Russets, Chestfield, Whitstable The Russets, Chestfield, Whitstable

Nearby Streets

NameAverage PriceAverage SqftDistance
Meadow Drive £ 000.00 KM
Saddlers Mews £ 000.00 KM
Barley Drive £ 000.00 KM
Nasella Gardens £ 000.00 KM
Harvey Drive £ 450,00000.00 KM

Nearby Transport

NameNLCTLCDistance
Chestfield And Swalecliffe5200CSW0.73 KM
Whitstable5196WHI3.91 KM
Herne Bay5174HNB5.58 KM
Canterbury West5007CBW7.78 KM
Sturry5029STU8.36 KM

Nearby Listings

AddressPriceTypeScoreDistance
The Russets, Chestfield, Whitstable £ 575,000BUY7 / 100.00 KM
The Russets, Chestfield, Whitstable £ 885,000BUYUnknown0.05 KM
Beechcroft, Chestfield, Whitstable £ 565,000BUY6 / 100.07 KM
The Ridings, Chestfield, Whitstable £ 550,000BUY6 / 100.10 KM
Meadow Drive, Chestfield, Whitstable £ 850,000BUY7 / 100.12 KM

Nearby Properties

AddressPriceDistance
23 The Russets £ 369,9500.06 KM
10 The Russets £ 242,0000.06 KM
11 The Russets £ 279,0000.06 KM
3 The Russets £ 109,0000.06 KM
22 The Russets £ 285,0000.06 KM