Trundleys Road, Beynam Court, SE8
By Oliver Jaques
£ 475,000
Reviews
4 out of 5 stars
Oliver Jaques says ..
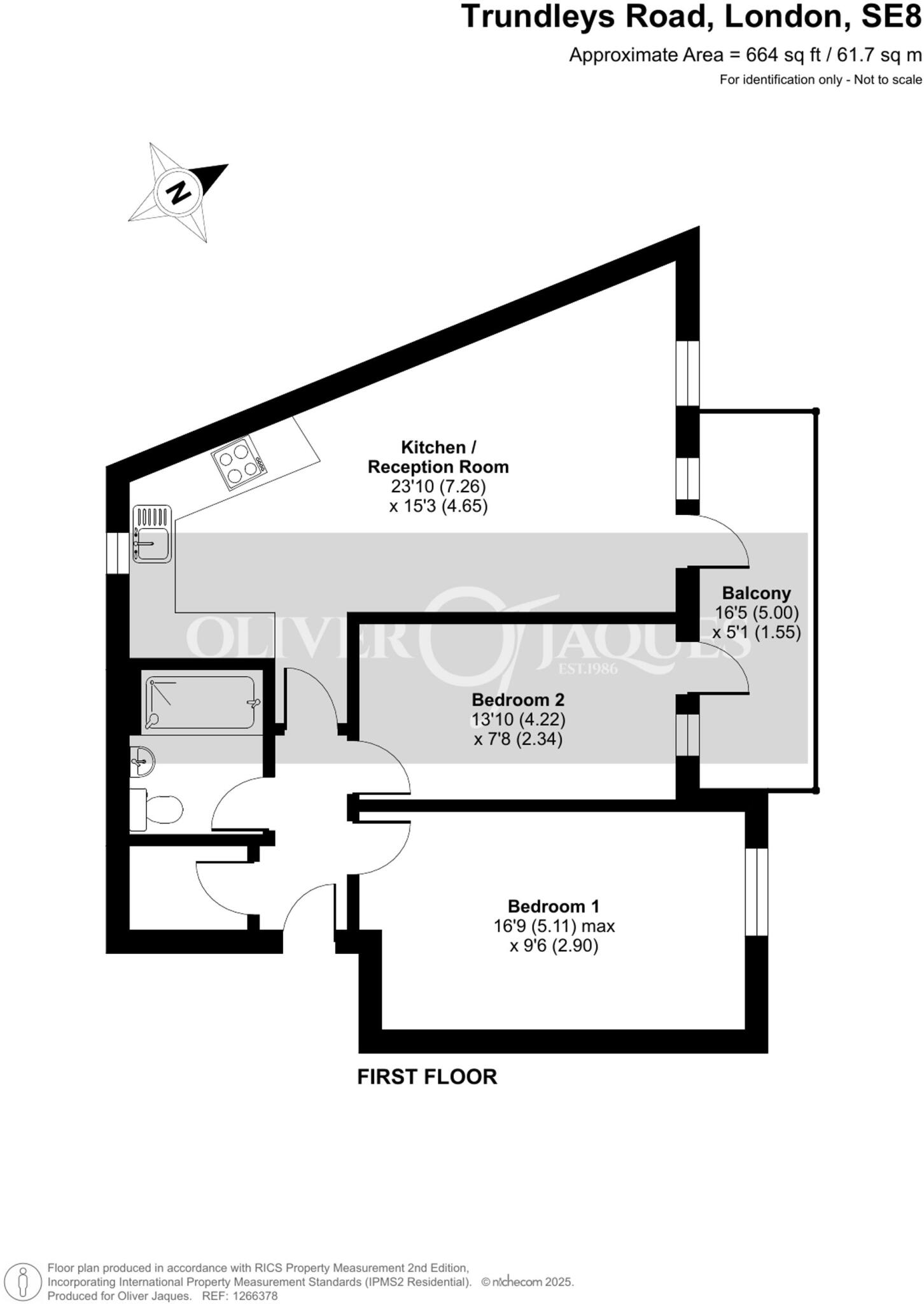
Beynam Court is an exciting new development on Trundleys Road, overlooking the scenic Folkestone Gardens. Unit 4 is a first floor two bedroom apartmen...
Property Oracle says ..
This property is a modern two-bedroom flat located in the Evelyn area of Lewisham, South East London. The property benefits from a private balcony overlooking a park. It is within easy reach of several transport links, including New Cross Gate Overground station (0.83km), and a number of schools. The flat itself is in excellent condition and appears well-maintained, with modern fixtures and fittings throughout. The open-plan living area is spacious and bright, and the kitchen is well-equipped. The bedrooms are both of a good size, and the bathroom is contemporary. The property is listed at £475,000, which is slightly below the average price for the area (£535,414). Considering the condition, location, and size of the property, the asking price appears reasonable.
Therefore, we give this property 8 / 10. *Disclaimer: This is our option and does constitute a recommendation or financial advice. Do your own research. *
- Price
- 8
- Condition
- 10
- Location
- 8
- Land
- 6
- Bedrooms
- 2
- Bathrooms
- 1
- Sqft (est)
- 713.52
- Lot (est)
- 664.00
The heatmap indicates the level of crime in the area. The color of the heatmap indicates the crime severity and recency.
Metrics Year-on-Year
- Average area value
- 460,000.00 £Decreased by 0.33 %
- Est sale value
- 445,950.00 £Decreased by 7.68 %
- Average area rental value
- 2,264.00 £/moIncreased by 1.25 %
- Est letting value
- 2,140.56 £/moUnchanged by 0.00 %
- Est rental Yield
- 5.91 %Increased by 1.72 %
- Crime Rate
- 3.00 %Unchanged by 0.00 %
Agent Activity
Oliver Jaques created the listing.
Nearby Schools
| Name | Type | Ofsted | Distance |
|---|---|---|---|
| Kings Kids Christian School | Other Independent School | Good | 0.34 KM |
| Sir Francis Drake Primary School | Community School | Requires improvement | 0.40 KM |
| Deptford Green School | Community School | Requires improvement | 0.63 KM |
| Clyde Early Childhood Centre | Children's Centre | 0.68 KM | |
| Deptford Park Primary School | Community School | Good | 0.68 KM |
Images
Nearby Streets
| Name | Average Price | Average Sqft | Distance |
|---|---|---|---|
| Sanford Street | £ 443,750 | 0 | 0.00 KM |
| Nombre Mews | £ 0 | 0 | 0.00 KM |
| Cottesbrook Road | £ 0 | 0 | 0.00 KM |
| Bawtree Road | £ 675,000 | 0 | 0.00 KM |
| Milton Court Road | £ 200,000 | 0 | 0.00 KM |
Nearby Transport
| Name | NLC | TLC | Distance |
|---|---|---|---|
| New Cross Gate | 5345 | NXG | 0.83 KM |
| Surrey Quays | 1083 | SQE | 1.42 KM |
| Deptford | 5145 | DEP | 1.61 KM |
| South Bermondsey | 5425 | SBM | 1.70 KM |
| Canada Water | 1659 | ZCW | 2.00 KM |
Nearby Listings
| Address | Price | Type | Score | Distance |
|---|---|---|---|---|
| Trundleys Road, Beynam Court, SE8 | £ 475,000 | BUY | 8 / 10 | 0.00 KM |
| 200-202 Trundleys Road, Deptford, London, SE8 | £ 400,000 | BUY | 7 / 10 | 0.03 KM |
| Archer Square, London, SE14 | £ 295,000 | BUY | 4 / 10 | 0.07 KM |
| Trundleys Road, London, SE8 | £ 425,000 | BUY | Unknown | 0.07 KM |
| Trundleys Road, London, SE8 | £ 400,000 | BUY | 5 / 10 | 0.07 KM |
Nearby Properties
| Address | Price | Distance |
|---|---|---|
| 16 Archer Square | £ 179,000 | 0.07 KM |
| 15 Archer Square | £ 163,500 | 0.07 KM |
| 30 Knoyle Street | £ 475,000 | 0.09 KM |
| 21 Whitcher Close | £ 163,000 | 0.17 KM |
| 18 Whitcher Close | £ 325,000 | 0.17 KM |