Mike Dobson says ..
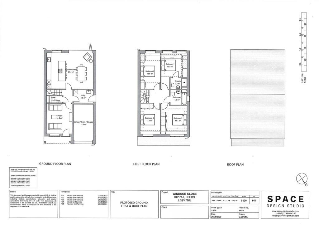
Welcome to Windsor Close, Kippax, Leeds - a prime location for your dream home! This land is a canvas waiting for your masterpiece - with detailed planning permission for a stunning four-bedroom detached house (approx. 1600 sqft). Imagine the possibilities of designing your own home exactly to yo...
Property Oracle says ..
This listing is for a plot of land located at Windsor Close, Kippax, Leeds, with planning permission granted for a four-bedroom detached house (approximately 1600 sqft). The location in Kippax offers proximity to schools like Kippax Greenfield Primary and Kippax North Primary School (both within 1km), as well as train stations like East Garforth (2.4km) providing connections to Leeds. Nearby streets show an average house price range suggesting the plot price is reasonably competitive within the area. However, potential buyers must factor in substantial construction costs to build the approved dwelling. The land itself is of a decent size, accommodating a house and garden, but not exceptionally spacious. The absence of an existing structure means no evaluation of its condition is possible. Overall, this listing is suitable for someone looking to build a custom home in a convenient location, but requires significant investment beyond the purchase price of the land itself.
Therefore, we give this property 4 / 10. *Disclaimer: This is our option and does constitute a recommendation or financial advice. Do your own research. *
- Price
- 6
- Condition
- 1
- Location
- 7
- Land
- 5
- Bedrooms
- 0
- Bathrooms
- 0
- Sqft (est)
- 1,551.08
The heatmap indicates the level of crime in the area. The color of the heatmap indicates the crime severity and recency.
Metrics Year-on-Year
- Average area value
- 488,600.00 £Decreased by 6.01 %
- Est sale value
- 975,629.32 £Increased by 9.01 %
- Average area rental value
- 1,814.00 £/moIncreased by 6.02 %
- Est letting value
- 3,102.16 £/moIncreased by 100.00 %
- Est rental Yield
- 4.46 %Increased by 12.91 %
- Crime Rate
- 1.00 %Unchanged by 0.00 %
Agent Activity
Mike Dobson created the listing.
Nearby Schools
| Name | Type | Ofsted | Distance |
|---|---|---|---|
| Kippax Greenfield Primary School | Academy Converter | Requires improvement | 0.58 KM |
| Kippax Children'S Centre | Children's Centre | 0.76 KM | |
| Kippax North Primary School | Academy Converter | Good | 0.84 KM |
| Kippax Ash Tree Primary School | Academy Converter | Requires improvement | 1.32 KM |
| Brigshaw High School | Academy Converter | Good | 1.75 KM |
Images
Nearby Streets
| Name | Average Price | Average Sqft | Distance |
|---|---|---|---|
| Windsor Close | £ 0 | 0 | 0.00 KM |
| Birch Road | £ 0 | 0 | 0.00 KM |
| Sycamore Avenue | £ 220,000 | 0 | 0.00 KM |
| Rosewood Avenue | £ 197,500 | 0 | 0.00 KM |
| Epsom Road | £ 260,000 | 0 | 0.00 KM |
Nearby Transport
| Name | NLC | TLC | Distance |
|---|---|---|---|
| East Garforth | 8472 | EGF | 2.40 KM |
| Garforth | 8474 | GRF | 2.83 KM |
| Castleford | 8359 | CFD | 5.86 KM |
| Micklefield | 8477 | MIK | 5.93 KM |
| Woodlesford | 8578 | WDS | 7.41 KM |
Nearby Listings
| Address | Price | Type | Score | Distance |
|---|---|---|---|---|
| Earlswood Crescent, Kippax, Leeds | £ 255,000 | BUY | Unknown | 0.04 KM |
| Kempton Road, Kippax, Leeds | £ 315,000 | BUY | 7 / 10 | 0.06 KM |
| Windsor Close, Kippax, Leeds | £ 295,000 | BUY | Unknown | 0.09 KM |
| Earlswood Crescent, Kippax, Leeds | £ 230,000 | BUY | 6 / 10 | 0.13 KM |
| Earlswood Crescent, Kippax, Leeds, LS25 7JQ | £ 225,000 | BUY | 6 / 10 | 0.18 KM |
Nearby Properties
| Address | Price | Distance |
|---|---|---|
| 2 Windsor Close | £ 117,995 | 0.10 KM |
| 18 Windsor Close | £ 230,000 | 0.10 KM |
| 5 Windsor Close | £ 220,000 | 0.10 KM |
| 17 Kempton Road | £ 160,000 | 0.10 KM |
| 11 Kempton Road | £ 137,000 | 0.10 KM |