Cumberland Road, Reading, Berkshire
By Romans
£ 250,000
Reviews
2 out of 5 stars
Romans says ..
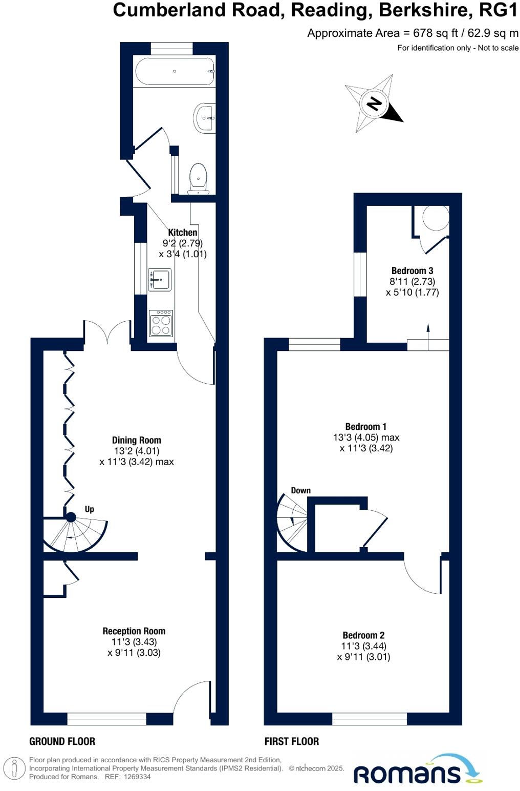
Introducing this charming terraced house located in a sought-after neighbourhood. This delightful property boasts two bedrooms, two reception rooms, and a well-appointed bathroom. The interior throughout does require some work in which has great potential for future investment. The garden o...
Property Oracle says ..
This property is a two-bedroom terraced house located in Reading, Berkshire. The list price is £250,000, which is significantly below the average price for the area (£339,216). However, it is important to note that the property is in need of significant renovation. The property has a small garden, and is located relatively close to several schools and transportation links. The property is in need of modernisation and the current condition is reflected in the below average price.
Therefore, we give this property 5 / 10. *Disclaimer: This is our option and does constitute a recommendation or financial advice. Do your own research. *
- Price
- 7
- Condition
- 3
- Location
- 7
- Land
- 4
- Bedrooms
- 2
- Bathrooms
- 1
- Sqft (est)
- 558.53
- Lot (est)
- 678.00
The heatmap indicates the level of crime in the area. The color of the heatmap indicates the crime severity and recency.
Metrics Year-on-Year
- Average area value
- 339,299.00 £Increased by 1.34 %
- Est sale value
- 203,304.92 £Increased by 25.52 %
- Average area rental value
- 1,364.00 £/moIncreased by 34.92 %
- Est letting value
- 558.53 £/mo
- Est rental Yield
- 4.82 %Increased by 33.15 %
- Crime Rate
- 31.00 %Unchanged by 0.00 %
Agent Activity
Romans marked this listing as sold.
Romans created the listing.
Nearby Schools
| Name | Type | Ofsted | Distance |
|---|---|---|---|
| East Reading Children'S Centre | Children's Centre | 0.18 KM | |
| New Town Primary School | Academy Sponsor Led | Good | 0.26 KM |
| St John'S Church Of England Primary School | Academy Converter | Requires improvement | 0.36 KM |
| Red Balloon Learner Centre Reading | Other Independent School | 0.87 KM | |
| Reading School | Academy Converter | 0.87 KM |
Images
Nearby Streets
| Name | Average Price | Average Sqft | Distance |
|---|---|---|---|
| Woodstock Street | £ 0 | 0 | 0.00 KM |
| Norwood Road | £ 380,000 | 0 | 0.00 KM |
| Sun Street | £ 240,000 | 0 | 0.00 KM |
| King's Road | £ 0 | 0 | 0.00 KM |
| Villa Mews | £ 0 | 0 | 0.00 KM |
Nearby Transport
| Name | NLC | TLC | Distance |
|---|---|---|---|
| Reading | 3149 | RDG | 2.48 KM |
| Earley | 5694 | EAR | 3.84 KM |
| Reading West | 3160 | RDW | 4.45 KM |
| Winnersh Triangle | 5698 | WTI | 6.77 KM |
| Winnersh | 5697 | WNS | 8.52 KM |
Nearby Listings
| Address | Price | Type | Score | Distance |
|---|---|---|---|---|
| Cumberland Road, Reading, Berkshire | £ 250,000 | BUY | 5 / 10 | 0.00 KM |
| 67 Cumberland Road, Reading, Berkshire, RG1 3JT | £ 185,000 | BUY | 5 / 10 | 0.02 KM |
| 67 Cumberland Road, Reading, RG1 3JT | £ 175,000 | BUY | 5 / 10 | 0.04 KM |
| Cumberland Road, Reading, Berkshire | £ 280,000 | BUY | 5 / 10 | 0.04 KM |
| Cumberland Road, Reading, Berkshire | £ 325,000 | BUY | Unknown | 0.08 KM |
Nearby Properties
| Address | Price | Distance |
|---|---|---|
| 114 Cumberland Road | £ 151,500 | 0.04 KM |
| 70 Cumberland Road | £ 272,000 | 0.04 KM |
| 105 Cumberland Road | £ 160,000 | 0.04 KM |
| 82 Cumberland Road | £ 47,000 | 0.04 KM |
| 103 Cumberland Road | £ 236,500 | 0.04 KM |