Callaway & Co says ..
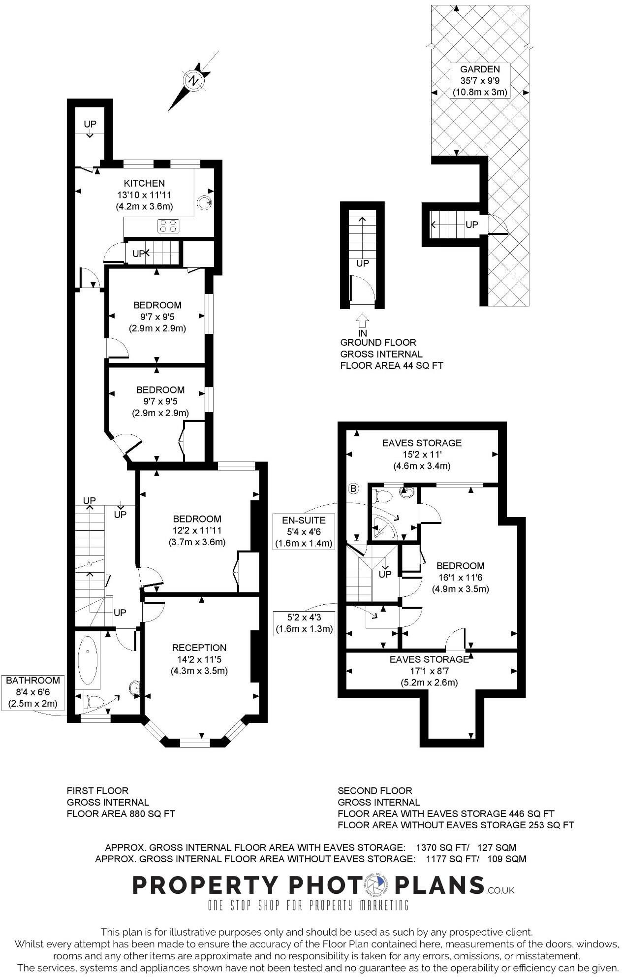
A freshly updated FOUR bedroom maisonette set in the heart of Cricklewood offering approximately 1,170 sq.ft. of accommodation. The apartment features a bright reception room, newly fitted kitchen with appliances, new bathroom/w.c. new en-suite shower room, and new floor coverings. CHAIN FREE!
Property Oracle says ..
This is a four-bedroom property located on Temple Road in London. The property is in good condition and has a modern kitchen and bathroom. The property also has a garden. The property is located in a desirable residential area, with good access to local amenities and transportation. The property is priced competitively.
Therefore, we give this property 7 / 10. *Disclaimer: This is our option and does constitute a recommendation or financial advice. Do your own research. *
- Price
- 7
- Condition
- 8
- Location
- 7
- Land
- 6
- Bedrooms
- 4
- Bathrooms
- 0
- Sqft (est)
- 1,560.44
The heatmap indicates the level of crime in the area. The color of the heatmap indicates the crime severity and recency.
Metrics Year-on-Year
- Average area value
- 1,318,000.00 £Increased by 70.66 %
- Est sale value
- 2,301,649.00 £Increased by 119.49 %
- Average area rental value
- 1,474.00 £/moDecreased by 27.60 %
- Est letting value
- 1,560.44 £/moUnchanged by 0.00 %
- Est rental Yield
- 1.34 %Decreased by 57.59 %
- Crime Rate
- 5.00 %Unchanged by 0.00 %
Agent Activity
Callaway & Co created the listing.
Nearby Schools
| Name | Type | Ofsted | Distance |
|---|---|---|---|
| Mora Primary School | Community School | Good | 0.25 KM |
| Our Lady Of Grace Rc Infant And Nursery School | Academy Converter | 0.60 KM | |
| Anson Primary School | Community School | Good | 0.71 KM |
| Claremont Primary School | Academy Converter | Good | 0.93 KM |
| Our Lady Of Grace Catholic Junior School | Academy Converter | 1.16 KM |
Images
Nearby Streets
| Name | Average Price | Average Sqft | Distance |
|---|---|---|---|
| Stoll Close | £ 0 | 0 | 0.00 KM |
| Hudson Way | £ 625,000 | 0 | 0.00 KM |
| Edgware Road | £ 620,000 | 0 | 0.00 KM |
| Gladstone Park Gardens | £ 0 | 0 | 0.00 KM |
| Edgware Road | £ 0 | 0 | 0.00 KM |
Nearby Transport
| Name | NLC | TLC | Distance |
|---|---|---|---|
| Cricklewood | 1519 | CRI | 1.12 KM |
| Brondesbury Park | 1438 | BSP | 2.47 KM |
| Brondesbury | 1437 | BSY | 2.74 KM |
| Kensal Rise | 1448 | KNR | 2.74 KM |
| Hendon | 1522 | HEN | 2.93 KM |
Nearby Listings
| Address | Price | Type | Score | Distance |
|---|---|---|---|---|
| Temple Road, London, NW2 | £ 575,000 | BUY | 7 / 10 | 0.00 KM |
| Temple Road, Cricklewood | £ 419,950 | BUY | 7 / 10 | 0.00 KM |
| Flat B, 69 Temple Road, Cricklewood, London, NW2 6PN | £ 300,000 | BUY | 4 / 10 | 0.00 KM |
| Temple Road, Cricklewood | £ 494,950 | BUY | 6 / 10 | 0.00 KM |
| Temple Road, London, NW2 | £ 475,000 | BUY | Unknown | 0.01 KM |
Nearby Properties
| Address | Price | Distance |
|---|---|---|
| 89 Temple Road | £ 270,000 | 0.00 KM |
| 73 Temple Road | £ 57,000 | 0.00 KM |
| 87 Temple Road | £ 400,000 | 0.00 KM |
| 45 Temple Road | £ 445,000 | 0.00 KM |
| 83a Temple Road | £ 545,000 | 0.00 KM |