Market St Homes says ..
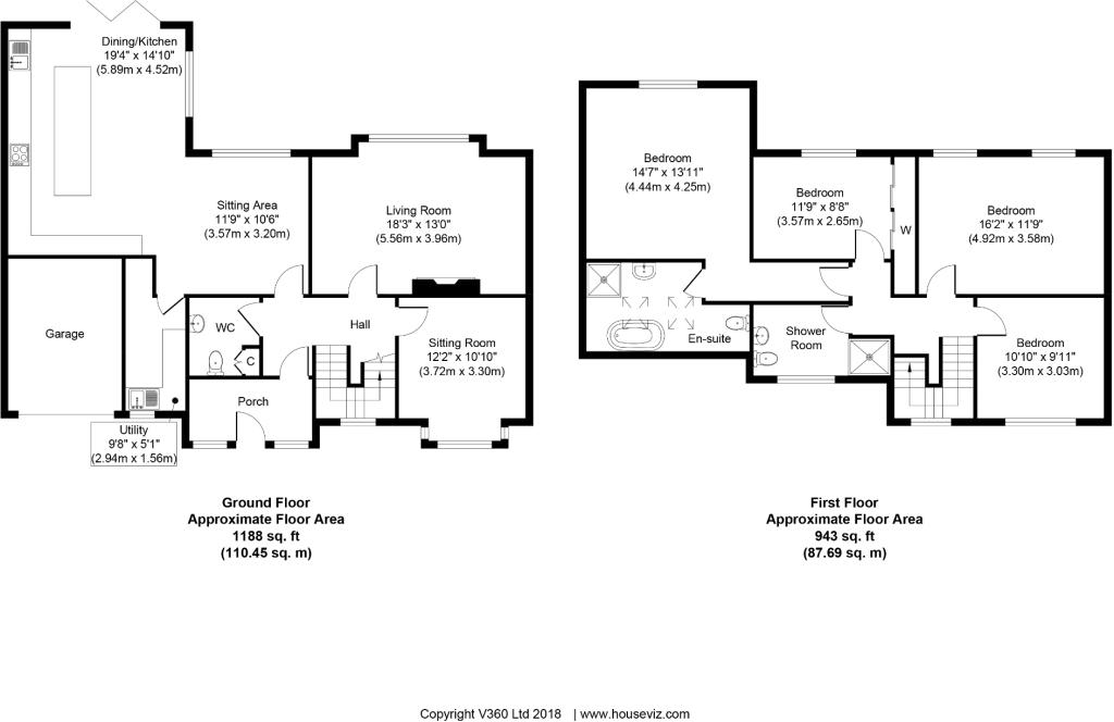
4 Bed Detached family home in Meols finished to a very hi standard with superb Breakfast/ living kitchen area, 2 further reception rooms , 4 bedrooms , 2 bathrooms , large gardens, driveway and garage. Close to Meols station good school catchment area , call to arrange viewing.
Property Oracle says ..
The property is a 4-bedroom, 2-bathroom detached house located on Sherwood Road in Hoylake And Meols, Wirral. The location is desirable, with nearby schools and transport links. The property itself appears to be well-maintained and recently renovated, with modern fixtures and fittings throughout. It benefits from a substantial garden. While the list price is above the average for the area, the size, condition, and features of the property may justify this.
Therefore, we give this property 8 / 10. *Disclaimer: This is our option and does constitute a recommendation or financial advice. Do your own research. *
- Price
- 7
- Condition
- 9
- Location
- 9
- Land
- 8
- Bedrooms
- 4
- Bathrooms
- 2
- Sqft (est)
- 1,188.00
The heatmap indicates the level of crime in the area. The color of the heatmap indicates the crime severity and recency.
Metrics Year-on-Year
- Average area value
- 686,761.00 £Increased by 63.43 %
- Est sale value
- 917,136.00 £Increased by 138.27 %
- Average area rental value
- 1,058.00 £/moIncreased by 8.51 %
- Est letting value
- 1,188.00 £/mo
- Est rental Yield
- 1.85 %Decreased by 33.45 %
- Crime Rate
- 11.00 %Unchanged by 0.00 %
Agent Activity
Market St Homes created the listing.
Nearby Schools
| Name | Type | Ofsted | Distance |
|---|---|---|---|
| Great Meols Primary School | Academy Converter | 1.32 KM | |
| Black Horse Hill Junior School | Community School | Good | 2.72 KM |
| Black Horse Hill Infant School | Community School | Requires improvement | 2.72 KM |
| Hoylake Holy Trinity Cofe Primary School | Voluntary Controlled School | Good | 2.73 KM |
| Hilbre High School | Academy Converter | Good | 2.77 KM |
Images
Nearby Streets
| Name | Average Price | Average Sqft | Distance |
|---|---|---|---|
| Ashley Avenue | £ 450,000 | 0 | 0.00 KM |
| Footpath 5A | £ 0 | 0 | 0.00 KM |
| Gorse Road | £ 0 | 0 | 0.00 KM |
| Carnoustie Close | £ 0 | 0 | 0.00 KM |
Nearby Transport
| Name | NLC | TLC | Distance |
|---|---|---|---|
| Meols | 2254 | MEO | 0.81 KM |
| Manor Road | 2253 | MNR | 2.66 KM |
| Hoylake | 2194 | HYK | 3.55 KM |
| Moreton (Merseyside) | 2151 | MRT | 3.93 KM |
| West Kirby | 2201 | WKI | 4.80 KM |
Nearby Listings
| Address | Price | Type | Score | Distance |
|---|---|---|---|---|
| Sherwood Road, CH47 | £ 595,000 | BUY | 8 / 10 | 0.00 KM |
| Sherwood Road, Wirral, Merseyside, CH47 | £ 325,000 | BUY | 6 / 10 | 0.07 KM |
| Sherwood Grove, Meols, Wirral | £ 325,000 | BUY | 7 / 10 | 0.09 KM |
| Sherwood Grove, Meols, Wirral | £ 350,000 | BUY | 7 / 10 | 0.09 KM |
| Barn Hey Crescent, Wirral, Merseyside, CH47 | £ 440,000 | BUY | 6 / 10 | 0.10 KM |
Nearby Properties
| Address | Price | Distance |
|---|---|---|
| 18 Sherwood Road | £ 405,000 | 0.00 KM |
| 26 Sherwood Road | £ 175,000 | 0.00 KM |
| 44 Sherwood Road | £ 279,275 | 0.00 KM |
| 40 Sherwood Road | £ 258,000 | 0.00 KM |
| 38 Sherwood Road | £ 208,000 | 0.02 KM |