Stamford Brook Road, London, W6
By John D Wood & Co. Sales
£ 3,300,000
Reviews
4 out of 5 stars
John D Wood & Co. Sales says ..
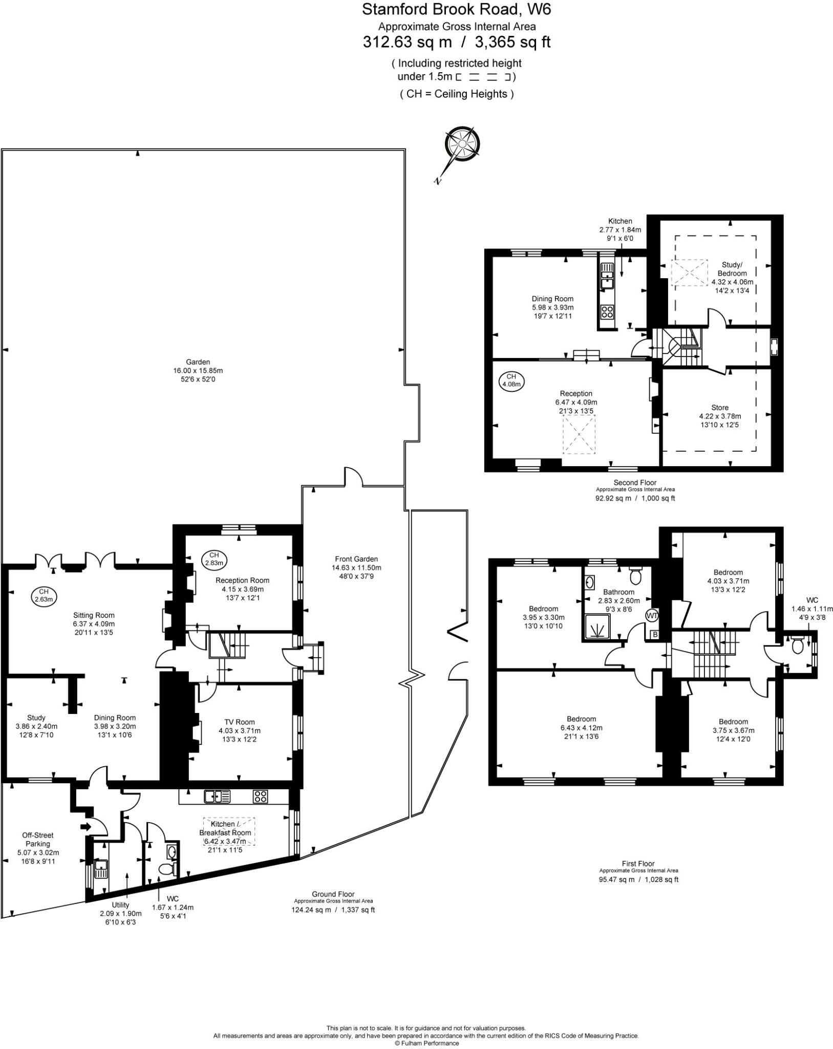
A true one-off opportunity situated in an enviable pocket of W6, an architecturally fabulous location in West London. This remarkable detached family house comprises four to five bedrooms, lots of reception space, a gated forecourt with off-street parking for multiple cars, and a sub...
Property Oracle says ..
This property is a 6 bedroom detached house located in Chiswick Homefields, Hounslow, with a list price of £3,300,000. The property has 2,866.02 sqft of living space and a plot size of 3,365 sqft. The average price for properties in the area is £1,347,876, with an average price per sqft of £1,005. This property is significantly larger than the average property in the area and is priced accordingly. The property appears to be in good condition and benefits from a large garden. The location is excellent, with good access to transportation and schools. Overall, this property represents good value for money.
Therefore, we give this property 8 / 10. *Disclaimer: This is our option and does constitute a recommendation or financial advice. Do your own research. *
- Price
- 7
- Condition
- 9
- Location
- 9
- Land
- 8
- Bedrooms
- 6
- Bathrooms
- 1
- Sqft (est)
- 2,866.02
- Lot (est)
- 3,365.00
The heatmap indicates the level of crime in the area. The color of the heatmap indicates the crime severity and recency.
Metrics Year-on-Year
- Average area value
- 953,000.00 £Decreased by 11.81 %
- Est sale value
- 1,923,099.42 £Decreased by 19.45 %
- Average area rental value
- 1,783.00 £/moDecreased by 30.51 %
- Est letting value
- 2,866.02 £/moUnchanged by 0.00 %
- Est rental Yield
- 2.25 %Decreased by 21.05 %
- Crime Rate
- 2.00 %Unchanged by 0.00 %
Agent Activity
John D Wood & Co. Sales created the listing.
Nearby Schools
| Name | Type | Ofsted | Distance |
|---|---|---|---|
| Good Shepherd Rc Primary School | Voluntary Aided School | Outstanding | 0.53 KM |
| Wendell Park Primary School | Community School | Good | 0.71 KM |
| Artsed Day School And Sixth Form | Other Independent School | 0.79 KM | |
| St Peter'S Primary School | Voluntary Aided School | Outstanding | 0.88 KM |
| Ravenscourt Park Preparatory School | Other Independent School | 0.90 KM |
Images
Nearby Streets
| Name | Average Price | Average Sqft | Distance |
|---|---|---|---|
| Wilson Walk | £ 0 | 0 | 0.00 KM |
| Goldhawk Road | £ 800,000 | 0 | 0.00 KM |
| British Grove | £ 0 | 0 | 0.00 KM |
| Askew Road | £ 0 | 0 | 0.00 KM |
| Becklow Mews | £ 0 | 0 | 0.00 KM |
Nearby Transport
| Name | NLC | TLC | Distance |
|---|---|---|---|
| Acton Central | 1404 | ACC | 2.27 KM |
| South Acton | 1452 | SAT | 2.73 KM |
| Barnes Bridge | 5580 | BNI | 2.99 KM |
| Chiswick | 5583 | CHK | 3.09 KM |
| Acton Main Line | 3000 | AML | 3.17 KM |
Nearby Listings
| Address | Price | Type | Score | Distance |
|---|---|---|---|---|
| Stamford Brook Road, London, W6 | £ 3,300,000 | BUY | 8 / 10 | 0.00 KM |
| Stamford Brook Road, Hammersmith | £ 3,300,000 | BUY | 6 / 10 | 0.07 KM |
| Stamford Brook Road, London, W6 | £ 2,000,000 | BUY | 9 / 10 | 0.09 KM |
| St. Mary's Court, Chiswick, London, W6 | £ 750,000 | BUY | 6 / 10 | 0.13 KM |
| Ranelagh Gardens, London, W6 | £ 775,000 | BUY | 6 / 10 | 0.13 KM |
Nearby Properties
| Address | Price | Distance |
|---|---|---|
| 28 Stamford Brook Avenue | £ 362,500 | 0.04 KM |
| 22 Stamford Brook Avenue | £ 390,000 | 0.04 KM |
| 4 Stamford Brook Avenue | £ 1,200,000 | 0.04 KM |
| 24 Stamford Brook Avenue | £ 555,000 | 0.04 KM |
| 12 Stamford Brook Avenue | £ 3,050,000 | 0.04 KM |