Harris & Birt says ..
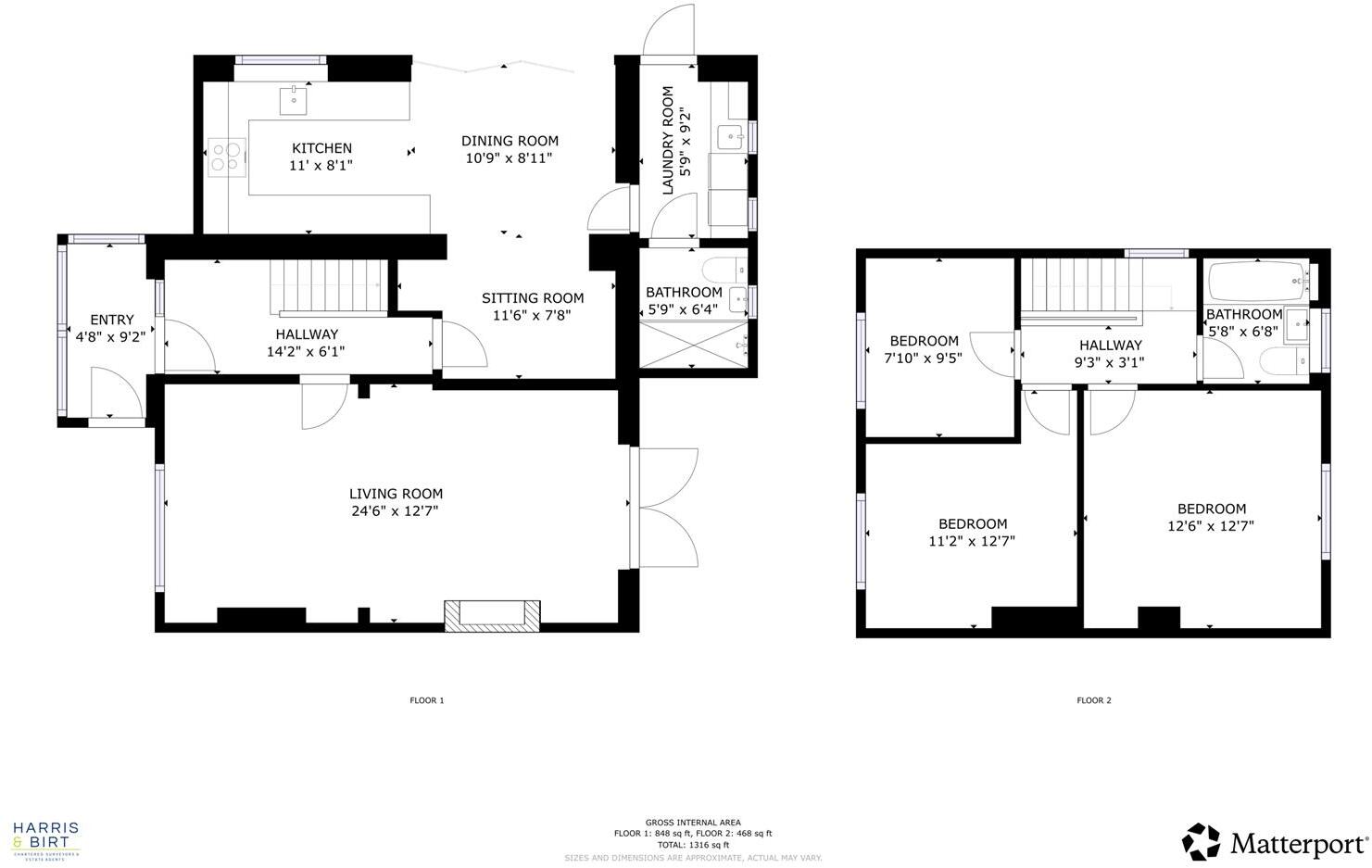
A well modernised and spacious, semi-detached, property located in the popular Vale village of Wick. The accommodation has been renovated and briefly comprises: entrance porch, hallway, living room, modern kitchen/dining/sitting room, utility room, downstairs shower room all to the ground floor. ...
Property Oracle says ..
This is a well-presented semi-detached property in Wick, Vale of Glamorgan. The house offers three bedrooms and two bathrooms, making it suitable for families. The modern kitchen and bathrooms, along with the good-sized garden and garage, are attractive features. While the location is somewhat rural, it offers a peaceful setting with access to local schools. The price appears to be in line with the market, making it a potentially good investment.
Therefore, we give this property 7 / 10. *Disclaimer: This is our option and does constitute a recommendation or financial advice. Do your own research. *
- Price
- 7
- Condition
- 8
- Location
- 7
- Land
- 7
- Bedrooms
- 3
- Bathrooms
- 2
- Sqft (est)
- 1,247.94
The heatmap indicates the level of crime in the area. The color of the heatmap indicates the crime severity and recency.
Metrics Year-on-Year
- Average area value
- 252,500.00 £Increased by 8.93 %
- Est sale value
- 425,547.54 £Increased by 20.07 %
- Average area rental value
- 1,109.00 £/moIncreased by 3.16 %
- Est letting value
- 1,247.94 £/moUnchanged by 0.00 %
- Est rental Yield
- 5.27 %Decreased by 5.39 %
- Crime Rate
- 152.00 %Unchanged by 0.00 %
Agent Activity
Harris & Birt created the listing.
Nearby Schools
| Name | Type | Ofsted | Distance |
|---|---|---|---|
| Wick Marcross C.I.W. Primary School | Welsh Establishment | 0.21 KM | |
| St David'S C.I.W. Primary School | Welsh Establishment | 4.44 KM | |
| St Brides C.I.W. Primary School | Welsh Establishment | 5.30 KM | |
| Heronsbridge School | Welsh Establishment | 7.17 KM | |
| Brynteg Comprehensive School | Welsh Establishment | 7.17 KM |
Images
Nearby Streets
| Name | Average Price | Average Sqft | Distance |
|---|---|---|---|
| St James Road | £ 350,000 | 0 | 0.00 KM |
| Cwrt-y-Felin | £ 365,000 | 0 | 0.00 KM |
| Saint James Road | £ 432,492 | 0 | 0.00 KM |
| St. James Road | £ 0 | 0 | 0.00 KM |
| West Street | £ 575,000 | 0 | 0.00 KM |
Nearby Transport
| Name | NLC | TLC | Distance |
|---|---|---|---|
| Bridgend | 3809 | BGN | 8.01 KM |
| Llantwit Major | 9699 | LWM | 8.31 KM |
| Wildmill | 3965 | WMI | 9.63 KM |
Nearby Listings
| Address | Price | Type | Score | Distance |
|---|---|---|---|---|
| Blaendewi, Wick, Cowbridge | £ 375,000 | BUY | 7 / 10 | 0.00 KM |
| St. Brides Road, Wick, Cowbridge, Vale of Glamorgan , CF71 7QB | £ 590,000 | BUY | 7 / 10 | 0.12 KM |
| St. Brides Road, Wick, Cowbridge | £ 270,000 | BUY | 6 / 10 | 0.15 KM |
| St. Brides Road, Wick, Cowbridge | £ 260,000 | BUY | 7 / 10 | 0.15 KM |
| 23 St. Brides Road, Wick, Nr Cowbridge, Vale of Glamorgan, CF71 7QB | £ 350,000 | BUY | Unknown | 0.15 KM |
Nearby Properties
| Address | Price | Distance |
|---|---|---|
| Haul-y-bryn | £ 290,000 | 0.09 KM |
| Roanbern | £ 267,500 | 0.09 KM |
| Westgate | £ 290,000 | 0.09 KM |
| Gwynfa | £ 385,000 | 0.09 KM |
| 10 Beaconsfield | £ 202,000 | 0.11 KM |