Land for sale, Loughborough Road, Ruddington, Nottingham
By FHP Living
£ 1,350,000
Reviews
3 out of 5 stars
FHP Living says ..
CALLING ALL DEVELOPERS! Fantastic opportunity to build two large executive homes, in a sought-after village location!
Property Oracle says ..
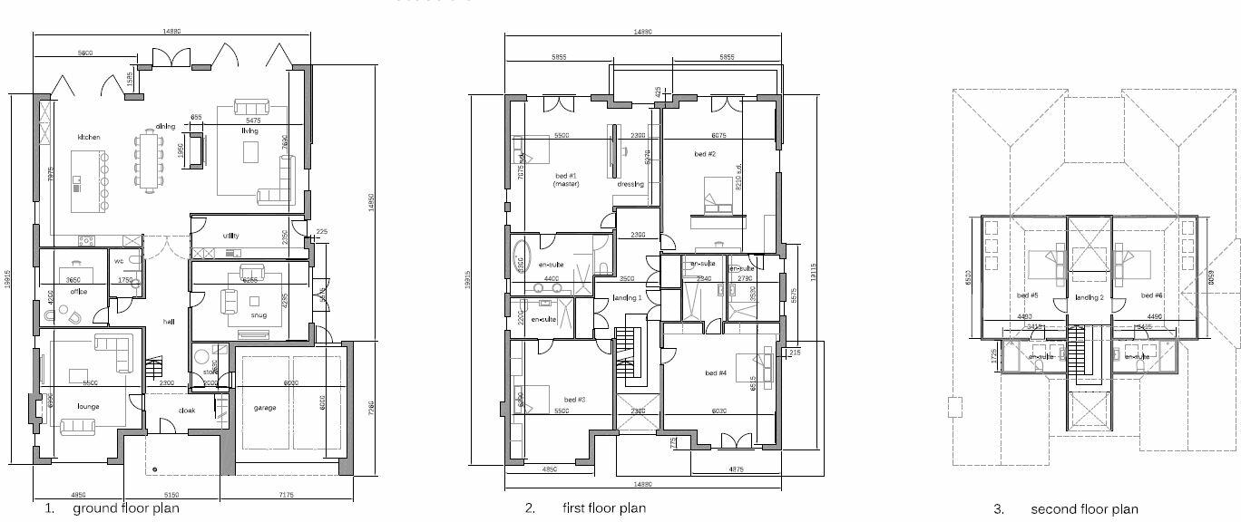
This listing presents a development opportunity involving the purchase of a plot of land on Loughborough Road in Ruddington, Nottinghamshire, with planning permission granted for the construction of two large executive homes. The existing dwelling is modest and slated for demolition. The proposed development depicts two substantial homes, each possessing a generous layout and high-quality finishes, including sizable gardens. The location in Ruddington offers several advantages: good local schools (St Peter’s Cofe Junior School and James Peacock Infant and Nursery School are within a reasonable distance and receive favorable Ofsted ratings), proximity to Nottingham, and access to transport links like East Midlands Railway (Nottingham station is 6.46 km away). However, Loughborough Road might experience some traffic, depending on the exact plot’s position. The nearby properties and land prices are quite varied, ranging from smaller homes to those of comparable value; the lack of consistent data in sqft. makes a precise comparison difficult. The price per plot must be carefully analyzed against building costs and the expected sale value of the two completed houses. The substantial plot size contributes significantly to its value, offering the potential for significant return on investment after development. However, this assessment is only based on provided renderings. Comprehensive financial modeling and development risk analysis are crucial before any investment decision. Overall, the potential for profit through this development is evident, but a detailed analysis of construction costs, market conditions, and sale prices will be needed to conclude if it represents excellent value.
Therefore, we give this property 7 / 10. *Disclaimer: This is our option and does constitute a recommendation or financial advice. Do your own research. *
- Price
- 7
- Condition
- 6
- Location
- 7
- Land
- 8
- Bedrooms
- 0
- Bathrooms
- 0
- Sqft (est)
- 2,967.29
The heatmap indicates the level of crime in the area. The color of the heatmap indicates the crime severity and recency.
Metrics Year-on-Year
- Average area value
- 242,833.00 £Decreased by 39.14 %
- Est sale value
- 830,841.20 £Increased by 21.74 %
- Average area rental value
- 1,075.00 £/moDecreased by 0.83 %
- Est letting value
- 2,967.29 £/mo
- Est rental Yield
- 5.31 %Increased by 62.88 %
- Crime Rate
- 1.00 %Unchanged by 0.00 %
Agent Activity
FHP Living created the listing.
Nearby Schools
| Name | Type | Ofsted | Distance |
|---|---|---|---|
| St Peter'S Cofe Junior School | Voluntary Controlled School | Good | 1.23 KM |
| James Peacock Infant And Nursery School | Community School | Outstanding | 1.44 KM |
| Rosecliffe Spencer Academy | Free Schools | 2.83 KM | |
| Heymann Primary And Nursery School | Academy Converter | Good | 3.10 KM |
| Bunny Cofe Primary School | Voluntary Controlled School | Good | 3.15 KM |
Images
Nearby Streets
| Name | Average Price | Average Sqft | Distance |
|---|---|---|---|
| Larkspur Drive | £ 550,000 | 0 | 0.00 KM |
| Harvey Close | £ 325,000 | 0 | 0.00 KM |
| Yarrow Drive | £ 0 | 0 | 0.00 KM |
| Cornflower Crescent | £ 0 | 0 | 0.00 KM |
| Daisy Court | £ 0 | 0 | 0.00 KM |
Nearby Transport
| Name | NLC | TLC | Distance |
|---|---|---|---|
| Nottingham | 1826 | NOT | 6.46 KM |
| Beeston | 1625 | BEE | 8.05 KM |
Nearby Listings
| Address | Price | Type | Score | Distance |
|---|---|---|---|---|
| Land for sale, Loughborough Road, Ruddington, Nottingham | £ 1,350,000 | BUY | 7 / 10 | 0.00 KM |
| Plots 1 & 2, Loughborough Road, Ruddington, Nottingham | £ 675,000 | BUY | 7 / 10 | 0.02 KM |
| Loughborough Road, Ruddington, Nottingham | £ 550,000 | BUY | Unknown | 0.06 KM |
| Loughborough Road, Ruddington | £ 475,000 | BUY | 5 / 10 | 0.09 KM |
| Loughborough Road, Ruddington, Nottingham | £ 445,000 | BUY | 6 / 10 | 0.10 KM |
Nearby Properties
| Address | Price | Distance |
|---|---|---|
| 194 Loughborough Road | £ 284,000 | 0.08 KM |
| 204 Loughborough Road | £ 487,000 | 0.08 KM |
| 246 Loughborough Road | £ 340,000 | 0.08 KM |
| 210 Loughborough Road | £ 575,000 | 0.08 KM |
| 234 Loughborough Road | £ 281,000 | 0.08 KM |