Frog Lane, Off Congleton Road, Nether Alderley
By Gascoigne Halman
£ 975,000
Reviews
4 out of 5 stars
Gascoigne Halman says ..
A charming, country house of particular architectural merit offering generous living accommodation with many charterer features, surrounded by walled gardens and located in a superb setting within a semi-rural enclave.
Property Oracle says ..
The property is located in Nether Alderley, Cheshire, a desirable area in the North West of England. The nearby Alderley Edge train station provides convenient access to Manchester and other areas. Nether Alderley Primary School is within walking distance, and other highly-rated schools are a short drive away. This contributes to a strong family-friendly location.
Based on the provided images, the property appears to be well-maintained and in good condition. The kitchen and bathrooms have been recently updated, and the overall aesthetic suggests a property that is move-in ready, requiring minimal repairs or renovations.
The property includes a sizeable garden, offering outdoor space for relaxation and entertainment. The garden appears mature and well-established.
The list price of £975,000 is slightly below the average price of £1,012,550 for the area. Considering the property’s good condition, desirable location, and inclusion of a garden, the price appears reasonable, potentially representing good value for money, especially given the average price per square foot in the area is £610 and this property is larger than average. However, a lack of precise plot size information prevents a more definitive assessment of land value.
Therefore, we give this property 8 / 10. *Disclaimer: This is our option and does constitute a recommendation or financial advice. Do your own research. *
- Price
- 8
- Condition
- 8
- Location
- 9
- Land
- 7
- Bedrooms
- 4
- Bathrooms
- 2
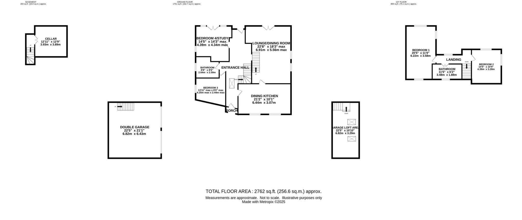
- Sqft (est)
- 2,762.00
The heatmap indicates the level of crime in the area. The color of the heatmap indicates the crime severity and recency.
Metrics Year-on-Year
- Average area value
- 747,000.00 £Decreased by 5.34 %
- Est sale value
- 1,372,714.00 £Increased by 42.82 %
- Average area rental value
- 3,139.00 £/moIncreased by 88.53 %
- Est letting value
- 5,524.00 £/mo
- Est rental Yield
- 5.04 %Increased by 99.21 %
- Crime Rate
- 0.00 %
Agent Activity
Gascoigne Halman created the listing.
Nearby Schools
| Name | Type | Ofsted | Distance |
|---|---|---|---|
| Nether Alderley Primary School | Academy Converter | Good | 0.28 KM |
| The Ryleys School | Other Independent School | 2.16 KM | |
| Alderley Edge Community Primary School | Community School | Outstanding | 2.30 KM |
| Alderley Edge School For Girls | Other Independent School | 2.36 KM | |
| Lindow Community Primary School | Community School | Good | 3.86 KM |
Images
Nearby Streets
| Name | Average Price | Average Sqft | Distance |
|---|---|---|---|
| Melrose Way | £ 2,950,000 | 0 | 0.00 KM |
| Congleton Close | £ 0 | 0 | 0.00 KM |
| East Courtyard | £ 726,650 | 0 | 0.00 KM |
| Congleton Road | £ 0 | 0 | 0.00 KM |
| Churchill Avenue | £ 948,333 | 0 | 0.00 KM |
Nearby Transport
| Name | NLC | TLC | Distance |
|---|---|---|---|
| Alderley Edge | 2760 | ALD | 2.21 KM |
| Wilmslow | 2774 | WML | 4.91 KM |
| Chelford (Cheshire) | 2764 | CEL | 5.06 KM |
| Styal | 2868 | SYA | 7.17 KM |
| Handforth | 2767 | HTH | 7.42 KM |
Nearby Listings
| Address | Price | Type | Score | Distance |
|---|---|---|---|---|
| Frog Lane, Off Congleton Road, Nether Alderley | £ 975,000 | BUY | 8 / 10 | 0.00 KM |
| Off Congleton Road, Nether Alderley | £ 200,000 | BUY | 8 / 10 | 0.45 KM |
| Welsh Row, Nether Alderley, SK10 | £ 1,650,000 | BUY | 7 / 10 | 0.76 KM |
| Orchard Crescent, Nether Alderley, Macclesfield | £ 395,000 | BUY | 8 / 10 | 0.84 KM |
| Orchard Crescent, Nether Alderley, Macclesfield, SK10 | £ 395,000 | BUY | 7 / 10 | 0.85 KM |
Nearby Properties
| Address | Price | Distance |
|---|---|---|
| Millbrook Cottage | £ 160,500 | 0.20 KM |
| Alderley Mill Cottage | £ 1,900,000 | 0.20 KM |
| Walmar | £ 590,000 | 0.22 KM |
| Parkfield | £ 4,500,000 | 0.22 KM |
| Field View | £ 350,000 | 0.22 KM |