DM
Cannon Street, Nottingham
By DMW Property Services
£ 280,000
DMW Property Services says ..
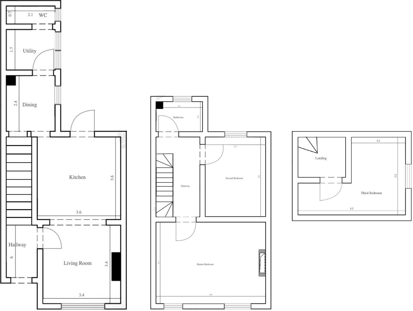
This three bedroom family home has recently undergone a complete schedule of renovation. Including a new roof, UPVC windows, boiler and central heating system, complete rewire, newly decorated throughout, new kitchen in the open plan living area, family bathroom and ground floor WC, hard flooring...
- Bedrooms
- 3
- Bathrooms
- 1
The heatmap indicates the level of crime in the area. The color of the heatmap indicates the crime severity and recency.
Metrics Year-on-Year
- Average area value
- 311,591.00 £Decreased by 0.19 %
- Average area rental value
- 1,151.00 £/moIncreased by 9.51 %
- Est rental Yield
- 4.43 %Increased by 9.65 %
- Crime Rate
- 3.00 %Unchanged by 0.00 %
from 312,184.00 £
from 1,051.00 £/mo
from 4.04 %
from 3.00 %
Agent Activity
DMW Property Services created the listing.
Nearby Schools
| Name | Type | Ofsted | Distance |
|---|---|---|---|
| Haydn Primary School | Community School | Outstanding | 0.20 KM |
| Sherwood And Edwards Lane Children'S Centre | Children's Centre | 0.34 KM | |
| Hospital And Home Education Pru | Pupil Referral Unit | Good | 0.37 KM |
| Seely Primary School | Community School | Good | 0.41 KM |
| Nottingham Free School | Free Schools | Good | 1.17 KM |
Images
Nearby Streets
| Name | Average Price | Average Sqft | Distance |
|---|---|---|---|
| Melrose Avenue | £ 250,000 | 0 | 0.00 KM |
| Kensington Court | £ 0 | 0 | 0.00 KM |
| Newstead Street | £ 550,000 | 0 | 0.00 KM |
| Caledon Road | £ 0 | 0 | 0.00 KM |
| Carrington Court | £ 0 | 0 | 0.00 KM |
Nearby Transport
| Name | NLC | TLC | Distance |
|---|---|---|---|
| Nottingham | 1826 | NOT | 3.88 KM |
| Bulwell | 1865 | BLW | 5.57 KM |
| Netherfield | 6241 | NET | 7.99 KM |
| Carlton | 6201 | CTO | 8.02 KM |
| Hucknall | 1862 | HKN | 8.13 KM |
Nearby Listings
| Address | Price | Type | Score | Distance |
|---|---|---|---|---|
| Cannon Street, Nottingham | £ 280,000 | BUY | Unknown | 0.00 KM |
| Cannon Street, Sherwood, Nottinghamshire, NG5 2HB | £ 280,000 | BUY | 7 / 10 | 0.01 KM |
| Daybrook Street, Sherwood, Nottinghamshire, NG5 2HD | £ 230,000 | BUY | 7 / 10 | 0.07 KM |
| Melrose Street, Sherwood, Nottinghamshire, NG5 2JQ | £ 180,000 | BUY | 6 / 10 | 0.08 KM |
| Daybrook Avenue, Nottingham, NG5 | £ 400,000 | BUY | 7 / 10 | 0.11 KM |
Nearby Properties
| Address | Price | Distance |
|---|---|---|
| 51 St Albans Street | £ 68,000 | 0.05 KM |
| 47 St Albans Street | £ 152,000 | 0.05 KM |
| 23 St Albans Street | £ 159,000 | 0.05 KM |
| 36 St Albans Street | £ 166,000 | 0.05 KM |
| 21 St Albans Street | £ 180,000 | 0.05 KM |