Exmouth, Devon
Wilkinson Grant & Co logo

Exmouth, Devon

By Wilkinson Grant & Co

£ 550,000

Reviews

3 out of 5 stars

Wilkinson Grant & Co says ..

ALL SERIOUS OFFERS CONSIDERED This first floor apartment enjoys SUPERB SEA VIEWS within this well regarded and established modern development. Well maintained COMMUNAL GARDENS, SOUTH FACING BALCONY and secure underground PARKING. CLOSE TO THE BEACH AND TOWN CENTRE.

Property Oracle says ..

This property is a three-bedroom apartment in Exmouth, Devon, listed for £550,000. The apartment enjoys stunning sea views and access to well-maintained communal gardens. The interior appears to be in good condition with a relatively modern kitchen and bathrooms. While the photos showcase a bright and spacious living area, further details are needed to fully assess the property’s quality. The property’s location in Exmouth offers proximity to a train station and schools, adding convenience to its appeal. However, the absence of a private garden and the lack of specific square footage details for similar properties in the vicinity limit a comprehensive market analysis. The asking price reflects comparable properties in the area, making it a potentially reasonable investment, although additional information about the apartment’s precise dimensions and specifics would be beneficial for a definitive judgment. The lack of private land, while not impacting the property’s immediate usability, may be considered a drawback by some buyers seeking standalone outdoor space.

Therefore, we give this property 6 / 10. *Disclaimer: This is our option and does constitute a recommendation or financial advice. Do your own research. *

Price
7
Condition
7
Location
7
Land
4
Bedrooms
3
Bathrooms
2
Sqft (est)
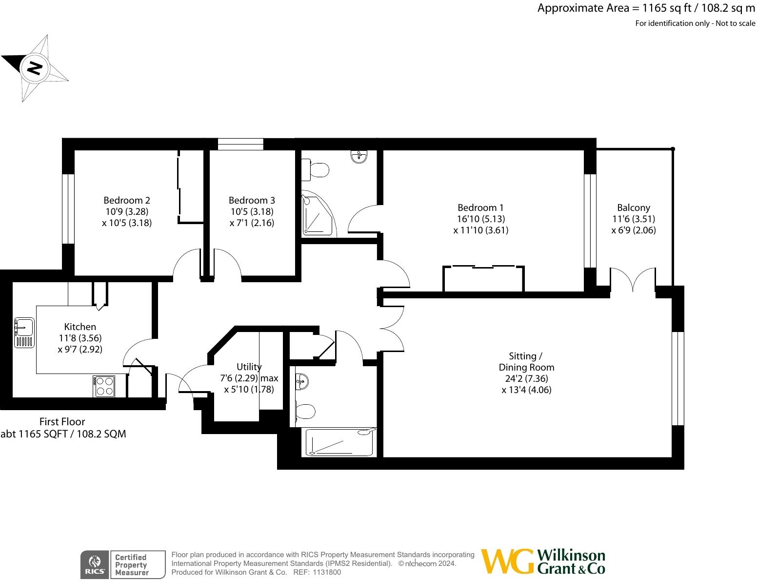
1,164.66

The heatmap indicates the level of crime in the area. The color of the heatmap indicates the crime severity and recency.

Metrics Year-on-Year

Average area value
385,000.00 £
Decreased by 11.33 %
from 434,218.00 £
Est sale value
775,663.56 £
Increased by 93.60 %
from 400,643.04 £
Average area rental value
1,650.00 £/mo
Increased by 37.04 %
from 1,204.00 £/mo
Est letting value
2,329.32 £/mo
from 0.00 £/mo
Est rental Yield
5.14 %
Increased by 54.35 %
from 3.33 %
Crime Rate
4.00 %
Unchanged by 0.00 %
from 4.00 %

Agent Activity

  • Wilkinson Grant & Co created the listing.

Nearby Schools

NameTypeOfstedDistance
Exeter Royal Academy For Deaf EducationNon-maintained Special SchoolRequires improvement0.83 KM
St Joseph'S Catholic Primary School, ExmouthAcademy ConverterGood0.86 KM
Exmouth & District Children'S CentreChildren's Centre1.49 KM
Exmouth Community CollegeAcademy ConverterRequires improvement1.60 KM
Marpool Primary SchoolFoundation SchoolGood1.61 KM

Images

Picture No. 19 View Bedroom Bathroom Kitchen Sitting Room Bedroom En Suite Bedroom View From Balcony Communal Grounds Communal Gardens No Onward Chain Bedroom One Bedroom Two Rear Elevation Kitchen Balcony Hallway No Onward Chain Picture No. 30 View From Balcony Rear Elevation

Nearby Streets

NameAverage PriceAverage SqftDistance
High View Gardens £ 000.00 KM
Admirals Court £ 119,48800.00 KM
Walnut Grove £ 220,00000.00 KM
Bicton Villas £ 000.00 KM
Park Way £ 345,00000.00 KM

Nearby Transport

NameNLCTLCDistance
Exmouth5756EXM1.96 KM
Lympstone Village5761LYM5.16 KM
Dawlish Warren3409DWW5.28 KM
Starcross3413SCS5.61 KM
Lympstone Commando5762LYC7.03 KM

Nearby Listings

AddressPriceTypeScoreDistance
Exmouth, Devon £ 550,000BUY6 / 100.00 KM
Douglas Avenue, Exmouth £ 545,000BUY7 / 100.01 KM
Douglas Avenue, Exmouth, Devon, EX8 £ 1,150,000BUYUnknown0.03 KM
Douglas Avenue, Exmouth £ 595,000BUY6 / 100.05 KM
Roswell Court, Douglas Avenue, Exmouth £ 167,000BUY5 / 100.05 KM

Nearby Properties

AddressPriceDistance
11a Douglas Avenue £ 595,0000.04 KM
15 Isca Road £ 250,0000.14 KM
9 Maer Road £ 565,0000.22 KM
5 Cyprus Gardens £ 187,0000.22 KM
16 Cyprus Gardens £ 420,0000.22 KM