Purplebricks says ..
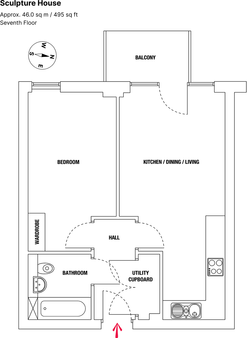
We are proud to offer this ideally located modern one bedroom flat with stunning views of the London skyline. The bright and spacious open plan living room/kitchen with light oak floorboards is exceptionally well lit by the panoramic west-facing windows. The private balcony is overlooking the qu...
Property Oracle says ..
This one-bedroom apartment is located in the East End of London, an area known for its vibrant culture and proximity to various amenities. The property itself appears to be in good condition based on the provided images, with a modern kitchen and bathroom. While the apartment is smaller than the average in the area (624 sqft vs 817 sqft), it benefits from a private balcony offering city views. The list price of £350,000 is significantly lower than the average price for the area (£551,343), making it potentially good value for money, especially considering its location and apparent condition. However, the lack of information on the building’s specifics (e.g., service charges, leasehold details) and the limited plot size could influence the overall assessment. The proximity to Stepney Green station, various schools, and parks also adds to its appeal.
Therefore, we give this property 7 / 10. *Disclaimer: This is our option and does constitute a recommendation or financial advice. Do your own research. *
- Price
- 8
- Condition
- 8
- Location
- 9
- Land
- 4
- Bedrooms
- 1
- Bathrooms
- 1
- Sqft (est)
- 624.31
- Lot (est)
- 495.14
The heatmap indicates the level of crime in the area. The color of the heatmap indicates the crime severity and recency.
Metrics Year-on-Year
- Average area value
- 456,286.00 £Decreased by 7.86 %
- Est sale value
- 421,409.25 £Increased by 0.60 %
- Average area rental value
- 2,399.00 £/moIncreased by 34.47 %
- Est letting value
- 1,872.93 £/moIncreased by 50.00 %
- Est rental Yield
- 6.31 %Increased by 46.06 %
- Crime Rate
- 7.00 %Unchanged by 0.00 %
Agent Activity
Purplebricks created the listing.
Nearby Schools
| Name | Type | Ofsted | Distance |
|---|---|---|---|
| Stepney Green Mathematics And Computing College | Academy Converter | 0.26 KM | |
| Queen Mary And Westfield College | Higher Education Institutions | 0.30 KM | |
| Ben Jonson Primary School | Community School | Good | 0.32 KM |
| Harry Roberts Nursery School | Local Authority Nursery School | Outstanding | 0.32 KM |
| Ocean Sure Start Children'S Centre | Children's Centre Linked Site | 0.39 KM |
Images
Nearby Streets
| Name | Average Price | Average Sqft | Distance |
|---|---|---|---|
| Bohn Road | £ 0 | 0 | 0.00 KM |
| Tottam Terrace | £ 400,000 | 0 | 0.00 KM |
| Colmar Close | £ 0 | 0 | 0.00 KM |
| Belgrave Street | £ 0 | 0 | 0.00 KM |
| Whitman Road | £ 0 | 0 | 0.00 KM |
Nearby Transport
| Name | NLC | TLC | Distance |
|---|---|---|---|
| Limehouse | 7491 | LHS | 0.88 KM |
| Shadwell | 1082 | SDE | 1.99 KM |
| Whitechapel | 4935 | ZLW | 2.03 KM |
| Bethnal Green Rail | 6961 | BET | 2.05 KM |
| Cambridge Heath | 6962 | CBH | 2.19 KM |
Nearby Listings
| Address | Price | Type | Score | Distance |
|---|---|---|---|---|
| 4 Killick Way, London, E1 | £ 350,000 | BUY | 7 / 10 | 0.00 KM |
| Flat 507 Sculpture House, 4 Killick Way, Mile End, London, E1 3FE | £ 240,000 | BUY | 6 / 10 | 0.00 KM |
| 32 Duckett Street, Stepney, E1 4FX | £ 540,000 | BUY | 8 / 10 | 0.00 KM |
| 32 Duckett Street, Stepney, E1 4FX | £ 435,000 | BUY | 6 / 10 | 0.00 KM |
| Sculpture House, Killick Way, Stepney Green, E1 | £ 325,000 | BUY | Unknown | 0.01 KM |
Nearby Properties
| Address | Price | Distance |
|---|---|---|
| 6 Duckett Street | £ 176,000 | 0.08 KM |
| 4 Duckett Street | £ 185,000 | 0.08 KM |
| 2 Duckett Street | £ 225,000 | 0.08 KM |
| 3 Duckett Street | £ 250,000 | 0.08 KM |
| 98 Duckett Street | £ 430,000 | 0.16 KM |