Stephensons says ..
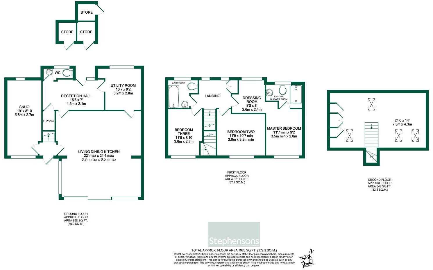
**** IMPRESSIVE OPEN PLAN LIVING KITCHEN **** Situated in this picturesque village location approximately 8 miles from the York outer ring road is this fabulous end terrace cottage which has comprehensively extended and upgraded throughout. The property is highly energy efficient (EPC B)...
Property Oracle says ..
Therefore, we give this property 7 / 10. *Disclaimer: This is our option and does constitute a recommendation or financial advice. Do your own research. *
- Price
- 7
- Condition
- 8
- Location
- 7
- Land
- 8
- Bedrooms
- 3
- Bathrooms
- 2
The heatmap indicates the level of crime in the area. The color of the heatmap indicates the crime severity and recency.
Metrics Year-on-Year
- Average area value
- 760,833.00 £Increased by 75.61 %
- Average area rental value
- 545.00 £/moDecreased by 34.57 %
- Est rental Yield
- 0.86 %Decreased by 62.77 %
- Crime Rate
- 0.00 %
from 433,254.00 £
from 833.00 £/mo
from 2.31 %
from 0.00 %
Agent Activity
Stephensons created the listing.
Nearby Schools
| Name | Type | Ofsted | Distance |
|---|---|---|---|
| Nun Monkton Primary Foundation School | Foundation School | Good | 0.23 KM |
| Linton-On-Ouse Primary School | Community School | Good | 3.10 KM |
| Long Marston Church Of England Voluntary Controlled Primary School | Voluntary Controlled School | Good | 6.75 KM |
| Rufforth Primary School | Academy Converter | 6.93 KM | |
| Kirk Hammerton Church Of England Primary School | Voluntary Controlled School | Good | 7.08 KM |
Images
Nearby Streets
| Name | Average Price | Average Sqft | Distance |
|---|---|---|---|
| Priory View | £ 0 | 0 | 0.00 KM |
Nearby Transport
| Name | NLC | TLC | Distance |
|---|---|---|---|
| Hammerton | 8241 | HMM | 6.38 KM |
| Poppleton | 8254 | POP | 9.76 KM |
Nearby Listings
| Address | Price | Type | Score | Distance |
|---|---|---|---|---|
| New Lane, Nun Monkton | £ 575,000 | BUY | 7 / 10 | 0.00 KM |
| The Green, Nun Monkton, YO26 | £ 750,000 | BUY | 7 / 10 | 0.23 KM |
| The Green, Nun Monkton, York, North Yorkshire, YO26 | £ 900,000 | BUY | Unknown | 0.29 KM |
| Priory Estate, Nun Monkton, York, North Yorkshire, YO26 | £ 850,000 | BUY | Unknown | 0.58 KM |
| South View, Poole Lane, Nun Monkton, North Yorkshire, YO26 | £ 449,999 | BUY | 8 / 10 | 0.60 KM |
Nearby Properties
| Address | Price | Distance |
|---|---|---|
| The Paddocks | £ 275,000 | 0.01 KM |
| 5 New Lane | £ 290,000 | 0.01 KM |
| 7 New Lane | £ 270,000 | 0.01 KM |
| Tessymans Cottage | £ 635,000 | 0.28 KM |
| Church House | £ 925,000 | 0.28 KM |