Bohome says ..
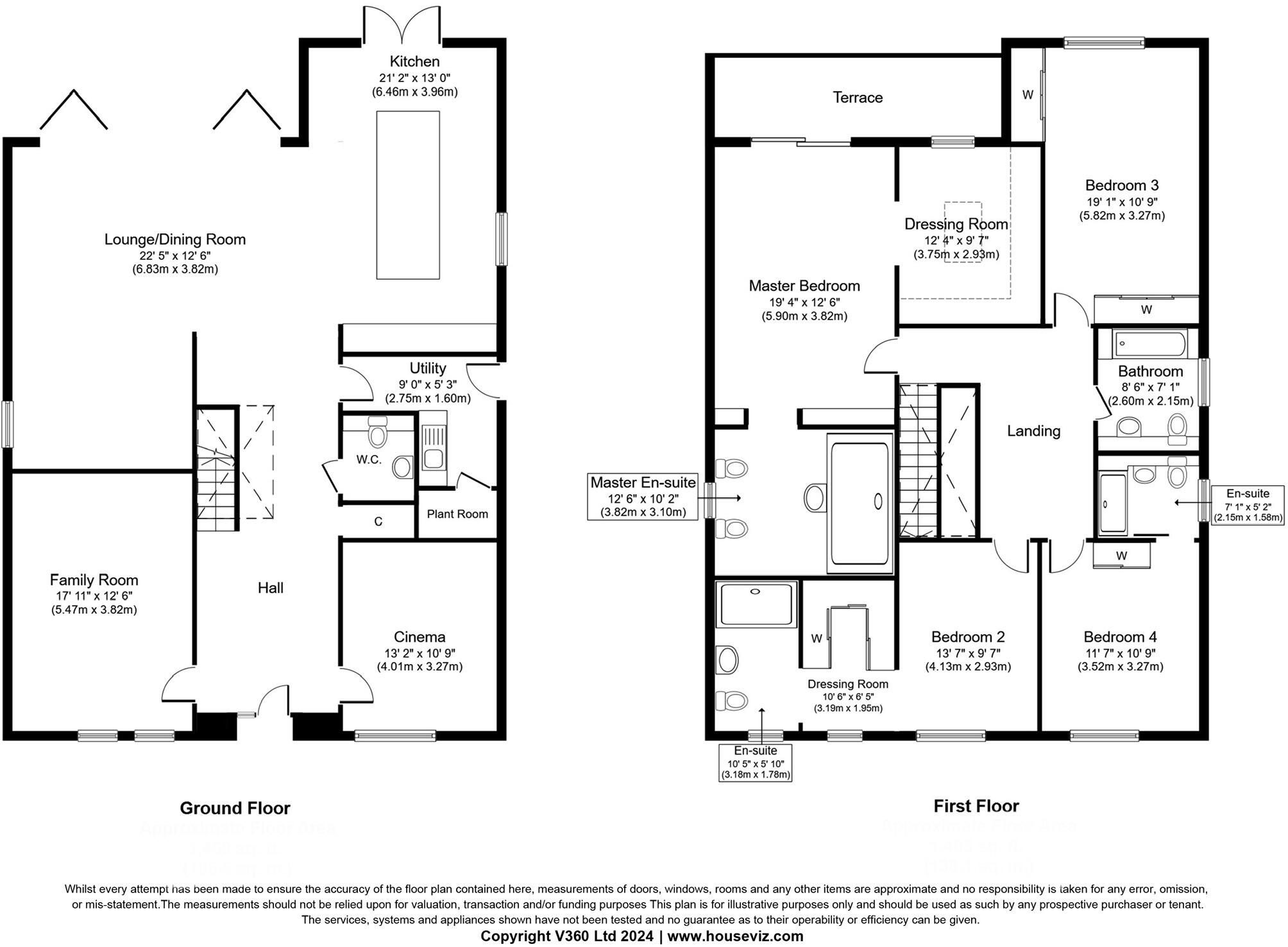
Show Home Now Available! This luxury 4-bed villa in Clyde Grove, Crossford, boasts river views, high-spec kitchen with AEG appliances, bar, cinema room, underfloor heating, and designer bathrooms. Set in a scenic village, this home blends elegance with lifestyle...
Property Oracle says ..
The property at Clyde Grove, Crossford, Carluke is a modern detached house featuring 4 bedrooms and 5 bathrooms. The interior is finished to a high standard, with modern fixtures and fittings throughout, including a stylish kitchen and bathrooms. The property also benefits from a large outdoor terrace area with a hot tub, ideal for entertaining and relaxation.
Therefore, we give this property 7 / 10. *Disclaimer: This is our option and does constitute a recommendation or financial advice. Do your own research. *
- Price
- 8
- Condition
- 9
- Location
- 7
- Land
- 7
- Bedrooms
- 4
- Bathrooms
- 5
- Sqft (est)
- 2,080.45
The heatmap indicates the level of crime in the area. The color of the heatmap indicates the crime severity and recency.
Metrics Year-on-Year
- Average area value
- 300,000.00 £Decreased by 54.85 %
- Est sale value
- 1,058,949.05 £Increased by 92.08 %
- Average area rental value
- 1,007.00 £/moDecreased by 25.41 %
- Est letting value
- 2,080.45 £/mo
- Est rental Yield
- 4.03 %Increased by 65.16 %
- Crime Rate
- 0.00 %
Agent Activity
Bohome created the listing.
Images
Nearby Streets
| Name | Average Price | Average Sqft | Distance |
|---|---|---|---|
| Holmwood Park | £ 475,832 | 0 | 0.00 KM |
| Dark Brig Road | £ 166,663 | 0 | 0.00 KM |
| Clyde Grove | £ 0 | 0 | 0.00 KM |
| James Wilson Place | £ 269,995 | 0 | 0.00 KM |
| Smuggler's Brig Road | £ 452,500 | 0 | 0.00 KM |
Nearby Transport
| Name | NLC | TLC | Distance |
|---|---|---|---|
| Carluke | 9702 | CLU | 3.93 KM |
| Wishaw | 9694 | WSH | 9.85 KM |
Nearby Listings
| Address | Price | Type | Score | Distance |
|---|---|---|---|---|
| Clyde Grove, Crossford, Carluke | £ 730,000 | BUY | 7 / 10 | 0.00 KM |
| Clyde Grove, Crossford, Carluke | £ 715,000 | BUY | 7 / 10 | 0.00 KM |
| Clyde Grove, Crossford, Carluke | £ 685,000 | BUY | 7 / 10 | 0.02 KM |
| Holmwood Park, Crossford, Carluke | £ 499,995 | BUY | 7 / 10 | 0.20 KM |
| Holmwood Park, Crossford, Carluke, South Lanarkshire, ML8 | £ 500,000 | BUY | Unknown | 0.21 KM |