Boyd Close, Kingston Upon Thames, KT2
By Curchods Estate Agents
£ 759,950
Reviews
3 out of 5 stars
Curchods Estate Agents says ..
VIEWINGS FROM 8th FEBRUARY For those of you that are looking to buy a modern four bedroom, two bathroom, family home that has no onward chain and requires modernisation, there can be few which are as quietly and conveniently positioned as this. It has its own private garden and off street parkin...
Property Oracle says ..
Coombe Hill is a desirable area of Kingston Upon Thames, known for its family-friendly atmosphere and proximity to excellent schools and transport links. The property’s location on Boyd Close places it within easy reach of Norbiton train station, providing convenient access to London Waterloo. The presence of several well-regarded schools nearby, such as St Paul’s C of E Primary School, further enhances its appeal to families.
Based on the provided image, the property appears to be well-maintained and in good condition. The brickwork is clean, and the windows and doors seem to be in good repair. There is no visible evidence of significant damage or neglect.
The property includes a small front garden, offering some outdoor space. While not extensive, it provides a degree of privacy and amenity.
The list price of £759,950 seems reasonable in the context of the local market. While precise square footage data for comparable properties is unavailable, nearby listings on Boyd Close and in the immediate vicinity suggest that the price is in line with similar properties in the area. The property’s condition, location, and inclusion of a garden support the listed price.
Therefore, we give this property 7 / 10. *Disclaimer: This is our option and does constitute a recommendation or financial advice. Do your own research. *
- Price
- 7
- Condition
- 8
- Location
- 9
- Land
- 6
- Bedrooms
- 4
- Bathrooms
- 2
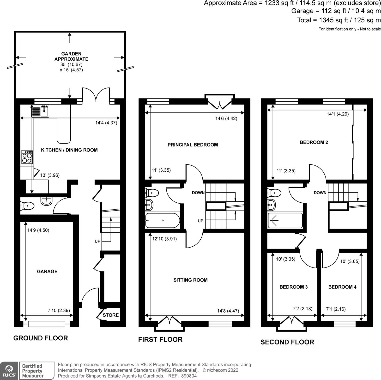
- Sqft (est)
- 1,420.00
- Lot (est)
- 1,233.00
The heatmap indicates the level of crime in the area. The color of the heatmap indicates the crime severity and recency.
Metrics Year-on-Year
- Average area value
- 1,213,333.00 £Decreased by 19.80 %
- Est sale value
- 2,551,740.00 £Increased by 133.68 %
- Average area rental value
- 6,408.00 £/moIncreased by 114.10 %
- Est letting value
- 12,780.00 £/moIncreased by 800.00 %
- Est rental Yield
- 6.34 %Increased by 167.51 %
- Crime Rate
- 4.00 %Unchanged by 0.00 %
Agent Activity
Curchods Estate Agents created the listing.
Nearby Schools
| Name | Type | Ofsted | Distance |
|---|---|---|---|
| Park Hill School | Other Independent School | 0.24 KM | |
| Kingston Hill Children'S Centre | Children's Centre Linked Site | 0.38 KM | |
| St Paul'S Cofe Primary School, Kingston Hill | Voluntary Aided School | Good | 0.44 KM |
| Alexandra Primary School | Community School | Requires improvement | 0.59 KM |
| Canbury School | Other Independent School | 0.97 KM |
Images
Nearby Streets
| Name | Average Price | Average Sqft | Distance |
|---|---|---|---|
| Beaumont Close | £ 0 | 0 | 0.00 KM |
| The Tamsin Trail | £ 0 | 0 | 0.00 KM |
| Bertram Road | £ 1,950,000 | 0 | 0.00 KM |
| Gloucester Road | £ 0 | 0 | 0.00 KM |
| Sylvestrus Close | £ 0 | 0 | 0.00 KM |
Nearby Transport
| Name | NLC | TLC | Distance |
|---|---|---|---|
| Norbiton | 5568 | NBT | 0.72 KM |
| Kingston | 5565 | KNG | 2.13 KM |
| Berrylands | 5581 | BRS | 2.21 KM |
| Hampton Wick | 5589 | HMW | 3.31 KM |
| New Malden | 5567 | NEM | 3.40 KM |
Nearby Listings
| Address | Price | Type | Score | Distance |
|---|---|---|---|---|
| Boyd Close, Kingston Upon Thames, KT2 | £ 759,950 | BUY | 7 / 10 | 0.00 KM |
| Royal Court, Deer Park Close, Kingston upon Thames | £ 390,000 | BUY | 5 / 10 | 0.05 KM |
| Deer Park Close, Kingston Upon Thames, KT2 | £ 415,000 | BUY | 6 / 10 | 0.05 KM |
| Eaton Drive, Kingston Upon Thames | £ 830,000 | BUY | 8 / 10 | 0.05 KM |
| Crescent Road, Kingston upon Thames | £ 1,000,000 | BUY | 7 / 10 | 0.06 KM |
Nearby Properties
| Address | Price | Distance |
|---|---|---|
| 5 Boyd Close | £ 190,000 | 0.05 KM |
| 14 Crescent Road | £ 462,500 | 0.05 KM |
| 8 Boyd Close | £ 749,995 | 0.05 KM |
| 10 Boyd Close | £ 140,000 | 0.05 KM |
| 14 Boyd Close | £ 550,000 | 0.05 KM |