Hortons says ..
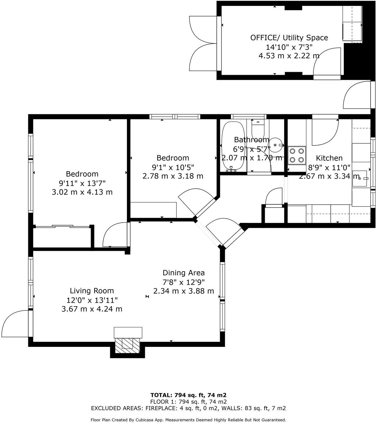
Beautifully presented, 2-bed bungalow in Broad Oak, converted insulated garage, stunning garden. Close to amenities and excellent schools. Quick access to London.
Property Oracle says ..
Therefore, we give this property 8 / 10. *Disclaimer: This is our option and does constitute a recommendation or financial advice. Do your own research. *
- Price
- 9
- Condition
- 8
- Location
- 7
- Land
- 8
- Bedrooms
- 2
- Bathrooms
- 1
- Sqft (est)
- 727.40
The heatmap indicates the level of crime in the area. The color of the heatmap indicates the crime severity and recency.
Metrics Year-on-Year
- Average area value
- 1,332,494.00 £Increased by 19.68 %
- Est sale value
- 1,015,450.40 £Increased by 164.90 %
- Average area rental value
- 1,800.00 £/moDecreased by 54.11 %
- Est letting value
- 727.40 £/moUnchanged by 0.00 %
- Est rental Yield
- 1.62 %Decreased by 61.70 %
- Crime Rate
- 80.00 %Unchanged by 0.00 %
from 1,113,335.00 £
from 383,339.80 £
from 3,922.00 £/mo
from 727.40 £/mo
from 4.23 %
from 80.00 %
Agent Activity
Hortons created the listing.
Nearby Schools
| Name | Type | Ofsted | Distance |
|---|---|---|---|
| Heathfield Community College | Community School | Good | 1.26 KM |
| All Saints' And St Richard'S Church Of England Primary School | Voluntary Aided School | Good | 1.91 KM |
| Parkside Community Primary School | Community School | Outstanding | 2.79 KM |
| Punnetts Town Community Primary School | Community School | Good | 3.07 KM |
| Cross-In-Hand Church Of England Primary School | Voluntary Controlled School | Good | 4.42 KM |
Images
Nearby Streets
| Name | Average Price | Average Sqft | Distance |
|---|---|---|---|
| Rolling Fields View | £ 0 | 0 | 0.00 KM |
| School Hill | £ 0 | 0 | 0.00 KM |
Nearby Listings
| Address | Price | Type | Score | Distance |
|---|---|---|---|---|
| Highview Road, Broad Oak, TN21 | £ 395,000 | BUY | 8 / 10 | 0.00 KM |
| Street End Lane, Broad Oak | £ 795,000 | BUY | Unknown | 0.11 KM |
| Street End Lane, Broad Oak, Heathfield, East Sussex, TN21 8RY | £ 1,195,000 | BUY | 7 / 10 | 0.15 KM |
| Broad Oak, Heathfield | £ 425,000 | BUY | Unknown | 0.15 KM |
| Mayview Close, Broad Oak, Heathfield, East Sussex | £ 231,500 | BUY | 7 / 10 | 0.20 KM |
Nearby Properties
| Address | Price | Distance |
|---|---|---|
| 8 Highview Road | £ 155,000 | 0.02 KM |
| Cedars | £ 230,000 | 0.02 KM |
| 11 Highview Road | £ 250,000 | 0.02 KM |
| Alberta | £ 210,000 | 0.02 KM |
| Shalom | £ 300,000 | 0.02 KM |