Price and Co says ..
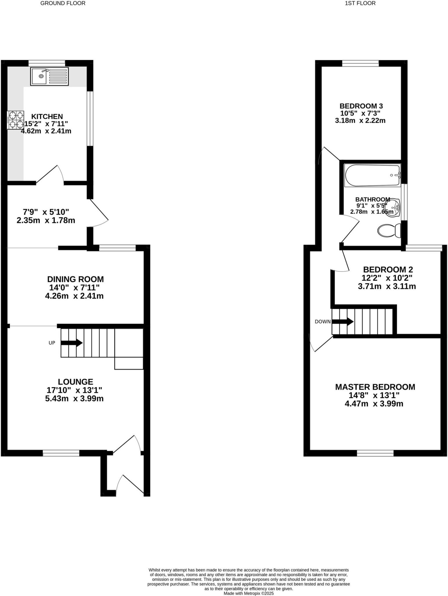
Tucked away in the heart of Westhoughton, this well-presented three-bedroom mid-terrace home offers generous living space and excellent local convenience — perfect for first-time buyers, downsizers, or savvy investors.Step inside and you're greeted by a bright and spacious lounge, featuring wood-...
Property Oracle says ..
Therefore, we give this property 7 / 10. *Disclaimer: This is our option and does constitute a recommendation or financial advice. Do your own research. *
- Price
- 8
- Condition
- 8
- Location
- 7
- Land
- 5
- Bedrooms
- 3
- Bathrooms
- 1
The heatmap indicates the level of crime in the area. The color of the heatmap indicates the crime severity and recency.
Metrics Year-on-Year
- Average area value
- 338,665.00 £Increased by 4.92 %
- Average area rental value
- 1,038.00 £/moIncreased by 13.32 %
- Est rental Yield
- 3.68 %Increased by 7.92 %
- Crime Rate
- 27.00 %Unchanged by 0.00 %
from 322,775.00 £
from 916.00 £/mo
from 3.41 %
from 27.00 %
Agent Activity
Price and Co created the listing.
Nearby Schools
| Name | Type | Ofsted | Distance |
|---|---|---|---|
| Westhoughton High School | Community School | Good | 0.23 KM |
| The Aspire Hub, Bolton | Other Independent Special School | Requires improvement | 0.25 KM |
| Sacred Heart R.C. Primary School | Voluntary Aided School | Outstanding | 0.50 KM |
| Washacre Start Well Link Site | Children's Centre Linked Site | 0.53 KM | |
| Washacre Primary School | Community School | Good | 0.57 KM |
Images
Nearby Streets
| Name | Average Price | Average Sqft | Distance |
|---|---|---|---|
| Back Mill Street | £ 226,667 | 0 | 0.00 KM |
| Back Leigh Road | £ 0 | 0 | 0.00 KM |
| Back George Street | £ 0 | 0 | 0.00 KM |
| The Old Bakery | £ 0 | 0 | 0.00 KM |
| Roseberry Street | £ 0 | 0 | 0.00 KM |
Nearby Transport
| Name | NLC | TLC | Distance |
|---|---|---|---|
| Westhoughton | 2619 | WHG | 0.95 KM |
| Daisy Hill | 2777 | DSY | 1.06 KM |
| Hag Fold | 2585 | HGF | 3.14 KM |
| Lostock | 2598 | LOT | 3.87 KM |
| Horwich Parkway | 8720 | HWI | 4.01 KM |
Nearby Listings
| Address | Price | Type | Score | Distance |
|---|---|---|---|---|
| Park Road, Westhoughton, BL5 | £ 180,000 | BUY | 7 / 10 | 0.00 KM |
| Bolton Road, Westhoughton, BL5 | £ 160,000 | BUY | Unknown | 0.04 KM |
| Bolton Road, Westhoughton, BL5 3DG | £ 125,000 | BUY | 5 / 10 | 0.06 KM |
| Park Road, Westhoughton, Bolton, Greater Manchester, BL5 | £ 290,000 | BUY | 6 / 10 | 0.09 KM |
| Bolton Road, Westhoughton, Bolton | £ 95,000 | BUY | 6 / 10 | 0.11 KM |
Nearby Properties
| Address | Price | Distance |
|---|---|---|
| 20 Bolton Road | £ 82,500 | 0.04 KM |
| 22 Bolton Road | £ 70,000 | 0.04 KM |
| 16 Bolton Road | £ 100,000 | 0.04 KM |
| 18 Bolton Road | £ 105,000 | 0.04 KM |
| 30 Bolton Road | £ 100,000 | 0.04 KM |