Davies & Davies says ..
Enjoying an enviable position overlooking a green and within easy walking distance of Matravers School, a spacious mid terrace family home offered for sale with no onward chain.
Property Oracle says ..
This end of terrace property is located in Oldfield Park, Westbury, Wiltshire. The property benefits from being close to local amenities and transport links. Westbury train station is approximately 1.07km away, providing convenient access to other towns and cities. There are also several primary schools within a short distance, including Westbury Infant School (rated Good by Ofsted) and Westbury Church of England Junior School (also rated Good). The property itself appears to be in need of some modernisation and updating. While the exterior is presentable, the interior photos suggest that the property could benefit from renovations to the kitchen and bathrooms. The property has a small garden, offering some outdoor space. The list price of £215,000 is slightly below the average price for the area (£324,000), however, given the condition of the property and the lack of information regarding the square footage, it is difficult to definitively comment on the value for money. Comparable properties in the area have sold for between £112,000 and £172,000. Further information on the property’s square footage would be beneficial in determining the overall value.
Therefore, we give this property 5 / 10. *Disclaimer: This is our option and does constitute a recommendation or financial advice. Do your own research. *
- Price
- 6
- Condition
- 4
- Location
- 7
- Land
- 3
- Bedrooms
- 3
- Bathrooms
- 1
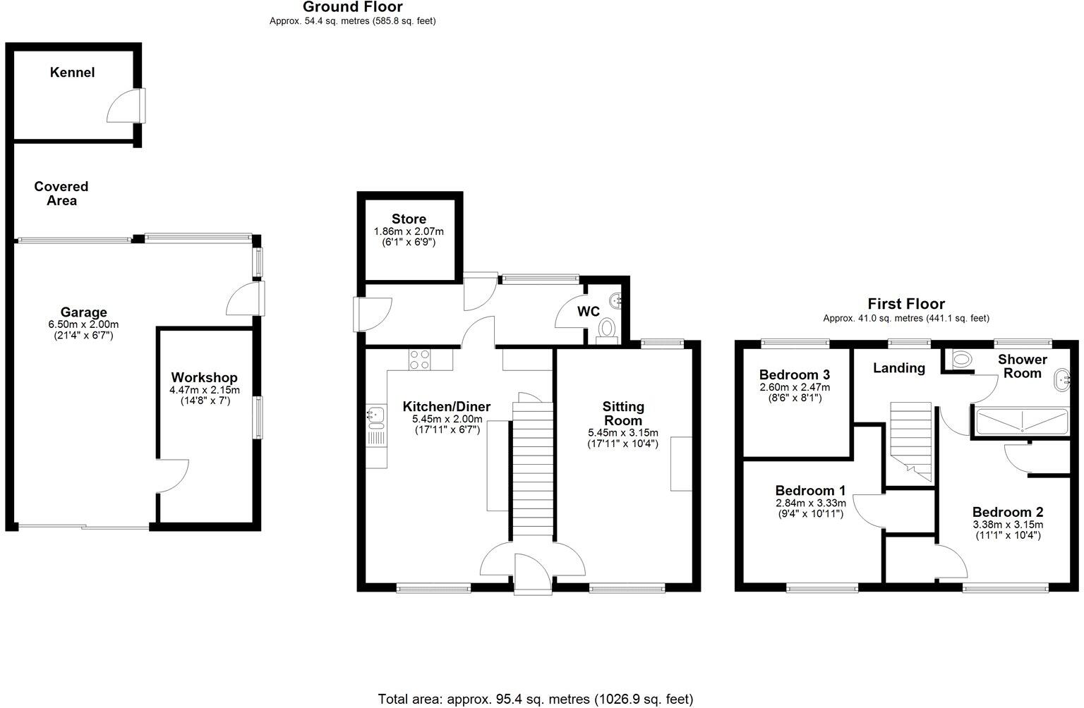
- Lot (est)
- 95.40
The heatmap indicates the level of crime in the area. The color of the heatmap indicates the crime severity and recency.
Metrics Year-on-Year
- Average area value
- 390,000.00 £Increased by 29.87 %
- Average area rental value
- 913.00 £/moDecreased by 27.42 %
- Est rental Yield
- 2.81 %Decreased by 44.14 %
- Crime Rate
- 0.00 %
Agent Activity
Davies & Davies created the listing.
Nearby Schools
| Name | Type | Ofsted | Distance |
|---|---|---|---|
| White Horse Children'S Centre | Children's Centre | 0.13 KM | |
| Westbury Infant School | Community School | Good | 0.22 KM |
| Matravers School | Foundation School | Requires improvement | 0.56 KM |
| Westbury Church Of England Junior School | Voluntary Controlled School | Good | 0.58 KM |
| Bitham Brook Primary School | Community School | Good | 1.50 KM |
Images
Nearby Streets
| Name | Average Price | Average Sqft | Distance |
|---|---|---|---|
| Bramley Mews | £ 130,000 | 0 | 0.00 KM |
| Oldfield Road | £ 0 | 0 | 0.00 KM |
| Heather Close | £ 0 | 0 | 0.00 KM |
| Chesnut Grove | £ 215,000 | 0 | 0.00 KM |
| Saxon Close | £ 0 | 0 | 0.00 KM |
Nearby Transport
| Name | NLC | TLC | Distance |
|---|---|---|---|
| Westbury | 5712 | WSB | 1.07 KM |
| Dilton Marsh | 5502 | DMH | 2.33 KM |
| Warminster | 5505 | WMN | 6.30 KM |
| Trowbridge | 3348 | TRO | 6.97 KM |
Nearby Listings
| Address | Price | Type | Score | Distance |
|---|---|---|---|---|
| Oldfield Park, Westbury | £ 215,000 | BUY | 5 / 10 | 0.00 KM |
| Oldfield Park, Westbury | £ 205,000 | BUY | 7 / 10 | 0.06 KM |
| Eden Vale Road, Westbury | £ 265,000 | BUY | 7 / 10 | 0.09 KM |
| Eden Vale Road, Westbury | £ 300,000 | BUY | 7 / 10 | 0.13 KM |
| Eden Vale Road, Westbury | £ 389,000 | BUY | 6 / 10 | 0.13 KM |
Nearby Properties
| Address | Price | Distance |
|---|---|---|
| 27 Oldfield Park | £ 172,000 | 0.01 KM |
| 18 Oldfield Park | £ 159,000 | 0.01 KM |
| 26 Oldfield Park | £ 124,500 | 0.03 KM |
| 51 Oldfield Park | £ 112,000 | 0.03 KM |
| 46 Oldfield Park | £ 153,000 | 0.03 KM |