St. Marys Close, Timsbury, Bath
By Allen Residential
£ 300,000
Reviews
3 out of 5 stars
Allen Residential says ..
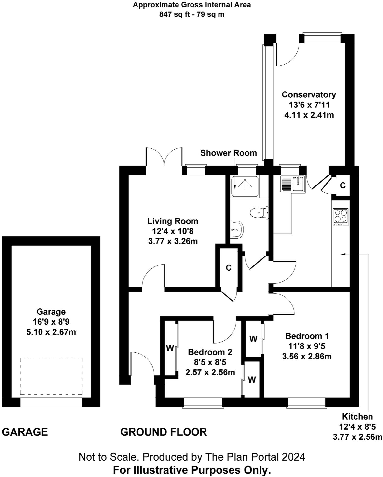
A bungalow that has undergone an extensive series of improvements in recent years and offered for sale with no onward chain. The accommodation includes, a lounge. modern fitted kitchen, stylish shower room, two bedrooms and conservatory. The garden is south facing and there is a garage in a nearby
Property Oracle says ..
The property is a 2 bedroom terraced bungalow located in St Marys Close, Timsbury, Bath, Somerset. It has a list price of £300,000 and is 670.32 sqft with an 847 sqft plot size. The property appears to be in good condition. The images show a recently modernised kitchen and bathroom. The decor is modern and well-maintained. There is a conservatory which extends the living space. The property benefits from a garden, providing additional outdoor space. The size of the garden appears to be relatively modest, but sufficient for a property of this size. Considering the average price per sqft in the area is £480, and this property is £300,000 for 670.32 sqft, the price per sqft is approximately £447. This is lower than the average for the area. However, nearby comparable properties on St Marys Close have sold for between £169,950 and £300,000, suggesting the list price is within the range of similar properties in the area. The property’s condition and the inclusion of a conservatory may justify the higher end of this price range. More information on the size and condition of comparable properties would be needed to provide a more definitive assessment of value. The location is close to St Mary’s Cofe Primary School (0.96km), which is a positive factor for families. The proximity to other amenities such as shops and transportation would require further investigation.
Therefore, we give this property 7 / 10. *Disclaimer: This is our option and does constitute a recommendation or financial advice. Do your own research. *
- Price
- 7
- Condition
- 8
- Location
- 7
- Land
- 6
- Bedrooms
- 2
- Bathrooms
- 1
- Sqft (est)
- 670.32
- Lot (est)
- 847.00
The heatmap indicates the level of crime in the area. The color of the heatmap indicates the crime severity and recency.
Metrics Year-on-Year
- Average area value
- 345,000.00 £Decreased by 4.42 %
- Est sale value
- 312,369.12 £Increased by 72.59 %
- Average area rental value
- 1,280.00 £/moDecreased by 25.28 %
- Est letting value
- 670.32 £/moUnchanged by 0.00 %
- Est rental Yield
- 4.45 %Decreased by 21.79 %
- Crime Rate
- 34.00 %Unchanged by 0.00 %
Agent Activity
Allen Residential created the listing.
Nearby Schools
| Name | Type | Ofsted | Distance |
|---|---|---|---|
| St Mary'S Cofe Primary School | Academy Sponsor Led | 0.96 KM | |
| Farmborough Church Primary School | Academy Converter | 2.32 KM | |
| Paulton Infant School | Academy Converter | 3.48 KM | |
| Paulton Junior School | Community School | Outstanding | 3.48 KM |
| High Littleton Cofe Vc Primary School | Academy Converter | 3.50 KM |
Images
Nearby Streets
| Name | Average Price | Average Sqft | Distance |
|---|---|---|---|
| Hillview | £ 0 | 0 | 0.00 KM |
| Rectory Lane | £ 235,000 | 0 | 0.00 KM |
| Chapel Walk | £ 0 | 0 | 0.00 KM |
| The Glebe | £ 404,500 | 0 | 0.00 KM |
| Bloomfield Avenue | £ 335,000 | 0 | 0.00 KM |
Nearby Listings
| Address | Price | Type | Score | Distance |
|---|---|---|---|---|
| St. Marys Close, Timsbury, Bath | £ 300,000 | BUY | 7 / 10 | 0.00 KM |
| St. Marys Close, Bath, BA2 | £ 350,000 | BUY | 7 / 10 | 0.00 KM |
| Southlands Drive, Timsbury, Bath | £ 375,000 | BUY | 7 / 10 | 0.09 KM |
| Somerset Folly, Timsbury, Bath | £ 500,000 | BUY | 7 / 10 | 0.12 KM |
| Spacious 3/4 Bedroom Semi-Detached Bungalow with Large Garden & No Onward Chain | £ 475,000 | BUY | 6 / 10 | 0.13 KM |
Nearby Properties
| Address | Price | Distance |
|---|---|---|
| 47 St Marys Close | £ 299,950 | 0.00 KM |
| 55 St Marys Close | £ 58,000 | 0.00 KM |
| 28 St Marys Close | £ 286,125 | 0.00 KM |
| 26 St Marys Close | £ 169,950 | 0.00 KM |
| 37 St Marys Close | £ 299,950 | 0.00 KM |