Waterfords says ..
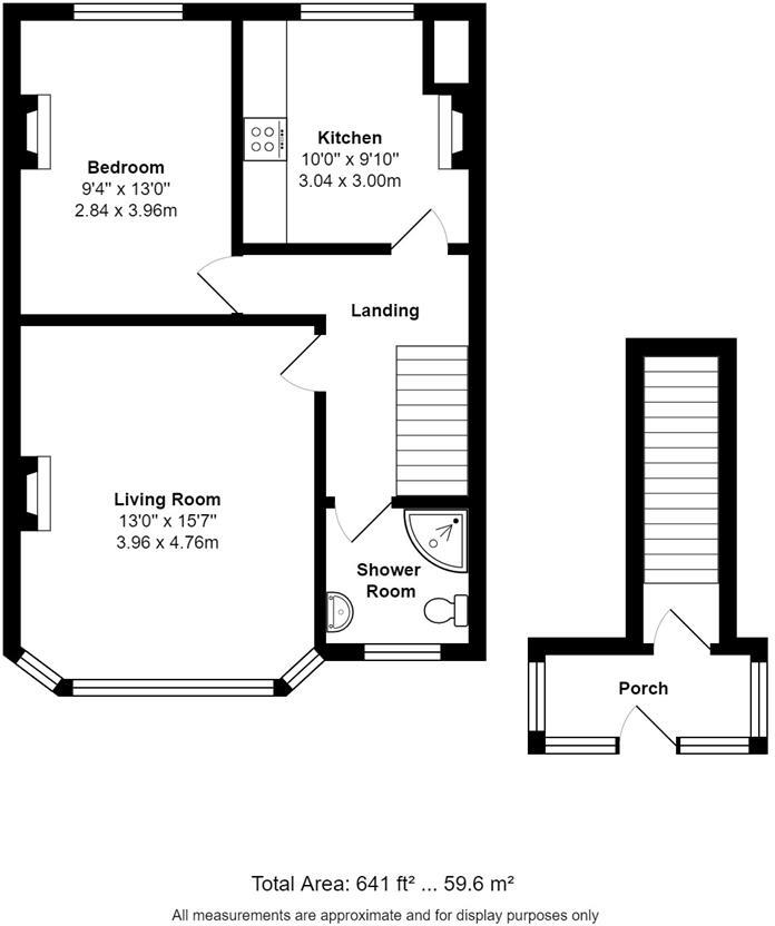
A spacious one-bedroom first floor maisonette in the heart of Camberley. Features include a separate kitchen, walk-in shower room, and an allocated parking space. No onward chain. Share of Freehold with a renewed lease to 999 years.
Property Oracle says ..
Therefore, we give this property 4 / 10. *Disclaimer: This is our option and does constitute a recommendation or financial advice. Do your own research. *
- Price
- 4
- Condition
- 6
- Location
- 7
- Land
- 1
- Bedrooms
- 1
- Bathrooms
- 1
- Sqft (est)
- 421.83
The heatmap indicates the level of crime in the area. The color of the heatmap indicates the crime severity and recency.
Metrics Year-on-Year
- Average area value
- 226,464.00 £Decreased by 27.05 %
- Est sale value
- 121,487.04 £Decreased by 24.61 %
- Average area rental value
- 1,243.00 £/moDecreased by 7.99 %
- Est letting value
- 421.83 £/moUnchanged by 0.00 %
- Est rental Yield
- 6.59 %Increased by 26.25 %
- Crime Rate
- 66.00 %Unchanged by 0.00 %
from 310,433.00 £
from 161,139.06 £
from 1,351.00 £/mo
from 421.83 £/mo
from 5.22 %
from 66.00 %
Agent Activity
Waterfords marked this listing as sold.
Waterfords created the listing.
Nearby Schools
| Name | Type | Ofsted | Distance |
|---|---|---|---|
| Lyndhurst School | Other Independent School | 0.64 KM | |
| South Camberley Sure Start Children'S Centre | Children's Centre Linked Site | 0.70 KM | |
| Kings International College | Foundation School | Good | 1.63 KM |
| South Camberley Primary And Nursery School | Academy Converter | 1.63 KM | |
| The Orchard Sure Start Children'S Centre | Children's Centre | 1.85 KM |
Images
Nearby Streets
| Name | Average Price | Average Sqft | Distance |
|---|---|---|---|
| Charles Street cycle path | £ 185,000 | 0 | 0.00 KM |
| Shelley Court | £ 0 | 0 | 0.00 KM |
| High Street | £ 140,000 | 0 | 0.00 KM |
| The Bowlings | £ 357,500 | 0 | 0.00 KM |
| Firlands Avenue | £ 735,000 | 0 | 0.00 KM |
Nearby Transport
| Name | NLC | TLC | Distance |
|---|---|---|---|
| Camberley | 5682 | CAM | 0.63 KM |
| Frimley | 5683 | FML | 2.85 KM |
| Blackwater | 5625 | BAW | 3.04 KM |
| Farnborough North | 5688 | FNN | 4.00 KM |
| Farnborough (Main) | 5521 | FNB | 4.57 KM |
Nearby Listings
| Address | Price | Type | Score | Distance |
|---|---|---|---|---|
| Southern Road, Camberley | £ 189,950 | BUY | 4 / 10 | 0.00 KM |
| Southern Road, Camberley | £ 595,000 | BUY | 7 / 10 | 0.03 KM |
| Southern Road, Camberley, Surrey, GU15 | £ 200,000 | BUY | Unknown | 0.03 KM |
| Southern Road, Camberley, Surrey, GU15 | £ 235,000 | BUY | 6 / 10 | 0.04 KM |
| Southern Road, Camberley, GU15 | £ 285,000 | BUY | 6 / 10 | 0.06 KM |
Nearby Properties
| Address | Price | Distance |
|---|---|---|
| 4 Southern Road | £ 171,000 | 0.03 KM |
| 42d Southern Road | £ 47,950 | 0.03 KM |
| 46 Southern Road | £ 455,000 | 0.03 KM |
| 42c Southern Road | £ 96,000 | 0.03 KM |
| 14 Southern Road | £ 297,000 | 0.03 KM |