Marsh Close, Werrington, Stoke On Trent, ST9 0LP
By Feeney Estate Agents
£ 239,950
Reviews
3 out of 5 stars
Feeney Estate Agents says ..
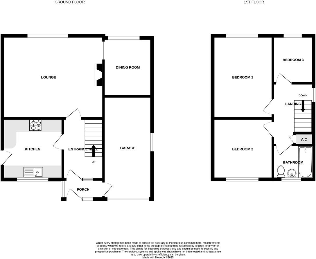
Occupying a pleasant spot along Marsh Close, in the highly sought after area of Werrington in The Staffordshire Moorlands, you will find this much loved family home ready for a new loving family to ta...
Property Oracle says ..
This property is a 3-bedroom detached house located in Werrington, Stoke-on-Trent. The location benefits from being relatively close to several primary and secondary schools, with options ranging from good to outstanding Ofsted ratings. Transport links appear reasonable, with train stations within a reasonable driving distance. The property itself is presented in a generally well-maintained condition, although the interior decor is dated and could benefit from some modernisation. The property has a good-sized garden and a driveway, adding to its appeal. The list price of £239,950 seems reasonable when compared to the average price of similar properties in the area, though it is slightly higher than the average price per square foot. This could be justified by the property’s condition and the inclusion of a garden and driveway.
Therefore, we give this property 7 / 10. *Disclaimer: This is our option and does constitute a recommendation or financial advice. Do your own research. *
- Price
- 7
- Condition
- 7
- Location
- 7
- Land
- 7
- Bedrooms
- 3
- Bathrooms
- 1
- Sqft (est)
- 925.00
The heatmap indicates the level of crime in the area. The color of the heatmap indicates the crime severity and recency.
Metrics Year-on-Year
- Average area value
- 260,000.00 £Increased by 0.96 %
- Est sale value
- 288,600.00 £Increased by 13.87 %
- Average area rental value
- 1,035.00 £/moDecreased by 3.36 %
- Est letting value
- 925.00 £/moUnchanged by 0.00 %
- Est rental Yield
- 4.78 %Decreased by 4.21 %
- Crime Rate
- 15.00 %Unchanged by 0.00 %
Agent Activity
Feeney Estate Agents created the listing.
Nearby Schools
| Name | Type | Ofsted | Distance |
|---|---|---|---|
| Werrington Primary School | Academy Converter | 0.58 KM | |
| Discovery Academy | Academy Sponsor Led | Good | 2.79 KM |
| Maple Court Academy | Academy Sponsor Led | Requires improvement | 2.91 KM |
| Moorside High School | Academy Converter | 3.18 KM | |
| Aurora Hanley School | Other Independent Special School | Outstanding | 3.57 KM |
Images
Nearby Streets
| Name | Average Price | Average Sqft | Distance |
|---|---|---|---|
| Dog Dirt Alley | £ 0 | 0 | 0.00 KM |
| Holly Drive | £ 0 | 0 | 0.00 KM |
| Uplands Avenue | £ 320,000 | 0 | 0.00 KM |
| Stone House Crescent | £ 150,000 | 0 | 0.00 KM |
| Brentwood Grove | £ 0 | 0 | 0.00 KM |
Nearby Transport
| Name | NLC | TLC | Distance |
|---|---|---|---|
| Longton | 1306 | LGN | 5.71 KM |
| Blythe Bridge | 1282 | BYB | 7.39 KM |
| Stoke-On-Trent | 1314 | SOT | 9.16 KM |
Nearby Listings
| Address | Price | Type | Score | Distance |
|---|---|---|---|---|
| Marsh Close, Werrington, Stoke On Trent, ST9 0LP | £ 239,950 | BUY | 7 / 10 | 0.00 KM |
| Marsh Close, Werrington. ST9 0LP. | £ 260,000 | BUY | 7 / 10 | 0.04 KM |
| Marsh Close, Werrington. ST9 0LP. | £ 260,000 | BUY | 7 / 10 | 0.04 KM |
| Washerwall Lane, Werrington, Stoke-on-Trent | £ 347,500 | BUY | 6 / 10 | 0.06 KM |
| Uplands Croft, Werrington, Staffordshire | £ 235,000 | BUY | 7 / 10 | 0.06 KM |
Nearby Properties
| Address | Price | Distance |
|---|---|---|
| 65 - 67 Washerwall Lane | £ 5,000 | 0.06 KM |
| 73 Washerwall Lane | £ 69,000 | 0.06 KM |
| 102 Washerwall Lane | £ 89,950 | 0.06 KM |
| 104 Washerwall Lane | £ 125,000 | 0.06 KM |
| 78 Washerwall Lane | £ 228,000 | 0.06 KM |