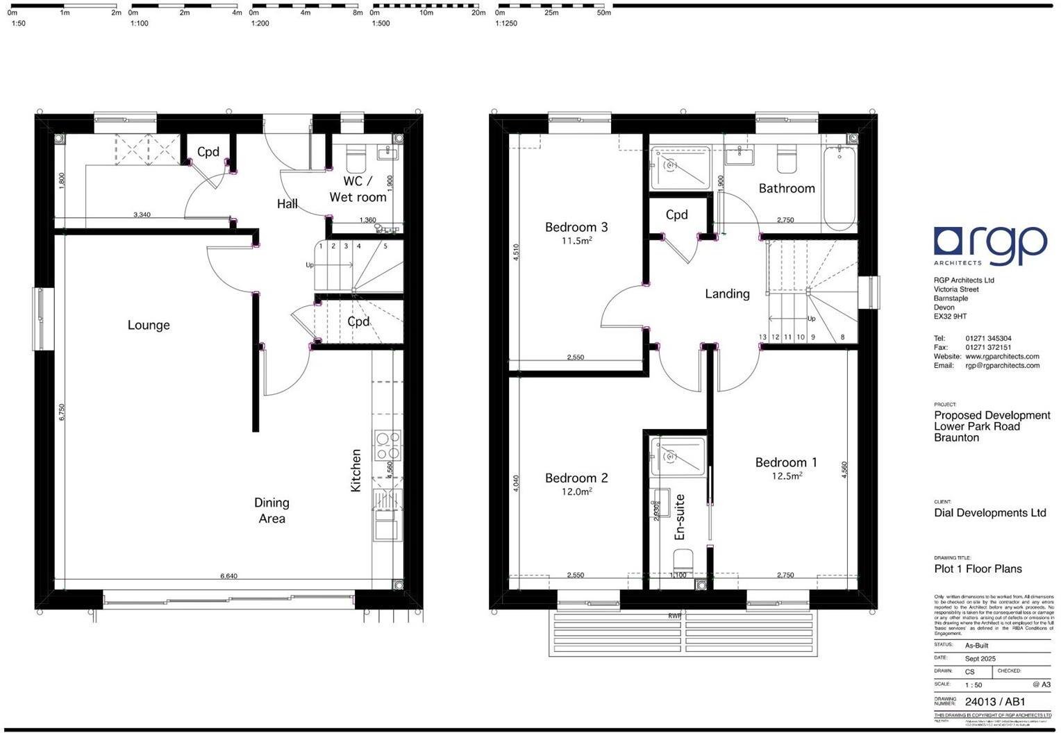
Lower Park Road, Braunton
ST

Lower Park Road, Braunton

By Stags

£ 725,000

Reviews

3 out of 5 stars

Stags says ..

Construction well advanced- One of a small select development of just 3 three bedroom detached new homes in a sought after residential road, within easy access of village amenities, open countryside, Saunton golf club and Saunton beach etc. Council Tax Bands TBC. Freehold. Reservations being take...

Property Oracle says ..

This is a modern, detached property located in Braunton East, North Devon. The property has 3 bedrooms and 3 bathrooms and is listed for £725,000. The property is located close to local schools and amenities. The property is in good condition, however, some aspects require finishing. The property has a garden and patio area. The property is overpriced compared to other properties in the area.

Therefore, we give this property 6 / 10. *Disclaimer: This is our option and does constitute a recommendation or financial advice. Do your own research. *

Price
6
Condition
7
Location
7
Land
7
Bedrooms
3
Bathrooms
3
Sqft (est)
387.50

The heatmap indicates the level of crime in the area. The color of the heatmap indicates the crime severity and recency.

Metrics Year-on-Year

Average area value
356,550.00 £
Decreased by 34.21 %
from 541,985.00 £
Est sale value
125,550.00 £
Decreased by 29.10 %
from 177,087.50 £
Average area rental value
1,075.00 £/mo
Increased by 21.47 %
from 885.00 £/mo
Est letting value
0.00 £/mo
from 0.00 £/mo
Est rental Yield
3.62 %
Increased by 84.69 %
from 1.96 %
Crime Rate
7.00 %
Unchanged by 0.00 %
from 7.00 %

Agent Activity

  • Stags created the listing.

Nearby Schools

NameTypeOfstedDistance
Southmead SchoolFoundation SchoolGood0.97 KM
Braunton AcademyAcademy ConverterGood1.08 KM
Caen Community Primary SchoolFoundation SchoolGood1.70 KM
Kingsacre Primary SchoolFoundation SchoolRequires improvement2.56 KM
Fremington Primary SchoolAcademy Converter4.51 KM

Images

63a.jpg all 3 b.jpg Typical kitchen.jpg Crow Point- Labelled.jpg 4..jpg Typical living space 2.jpg Typical bedroom en suite.jpg Saunton Golf Course Labelled.jpg 62 & 63 a.jpg all three a.jpg 62 & 63.jpg view all 3 (2).jpg 63.jpg Plot Elevations Cropped.jpg 62 & 63 b.jpg Typical bedroom 1.jpg Typical bedroom.jpg Typical living space 1.jpg All three.jpg all 3 d.jpg Typical bathroom.jpg Typical living space.jpg

Nearby Streets

NameAverage PriceAverage SqftDistance
Knowlwater Cottages £ 000.00 KM
South Lea £ 475,00000.00 KM
The Grange £ 000.00 KM
Rectory Close £ 375,00000.00 KM
Glebelands £ 275,00000.00 KM

Nearby Transport

NameNLCTLCDistance
Barnstaple5725BNP9.98 KM

Nearby Listings

AddressPriceTypeScoreDistance
Lower Park Road, Braunton £ 710,000BUY6 / 100.00 KM
Lower Park Road, Braunton £ 695,000BUY7 / 100.00 KM
Lower Park Road, Braunton £ 725,000BUY6 / 100.00 KM
Lower Park Road, Braunton, Devon, EX33 £ 950,000BUY8 / 100.04 KM
Lower Park Road, Braunton, Devon, EX33 £ 950,000BUY7 / 100.04 KM

Nearby Properties

AddressPriceDistance
South View £ 480,0000.01 KM
Park Farmhouse £ 570,0000.01 KM
Little Oaks £ 560,0000.01 KM
Nairn £ 400,0000.01 KM
Mill Lodge £ 480,0000.01 KM