NA
Artemus Silvey Close, Great Oldbury, Stonehouse
By Naylor Powell
£ 330,000
Reviews
3 out of 5 stars
Naylor Powell says ..
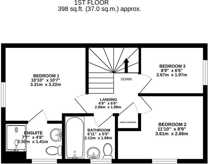
Located within easy reach of both Stonehouse and Eastington, this Barratts 'Moresby' design offers well-proportioned accommodation and three bedrooms. The semi-detached house comprises of an entrance hall, cloakroom, living room and kitchen/diner on the ground floor. On the first floor, there is ...
Property Oracle says ..
Therefore, we give this property 7 / 10. *Disclaimer: This is our option and does constitute a recommendation or financial advice. Do your own research. *
- Price
- 8
- Condition
- 8
- Location
- 7
- Land
- 6
- Bedrooms
- 3
- Bathrooms
- 2
- Sqft (est)
- 772.63
The heatmap indicates the level of crime in the area. The color of the heatmap indicates the crime severity and recency.
Metrics Year-on-Year
- Average area value
- 468,189.00 £Increased by 38.49 %
- Est sale value
- 380,906.59 £Increased by 75.44 %
- Average area rental value
- 2,227.00 £/moIncreased by 30.77 %
- Est letting value
- 1,545.26 £/moIncreased by 100.00 %
- Est rental Yield
- 5.71 %Decreased by 5.46 %
- Crime Rate
- 0.00 %
from 338,065.00 £
from 217,109.03 £
from 1,703.00 £/mo
from 772.63 £/mo
from 6.04 %
from 0.00 %
Agent Activity
Naylor Powell created the listing.
Nearby Schools
| Name | Type | Ofsted | Distance |
|---|---|---|---|
| Great Oldbury Primary Academy | Free Schools | 0.90 KM | |
| Eastington Primary School | Community School | Outstanding | 1.13 KM |
| William Morris College | Special Post 16 Institution | Good | 1.24 KM |
| Stonehouse The Park Children'S Centre | Children's Centre | 2.36 KM | |
| Park Junior School | Community School | Requires improvement | 2.38 KM |
Images
Nearby Streets
| Name | Average Price | Average Sqft | Distance |
|---|---|---|---|
| Artemus Silvey Close | £ 330,000 | 0 | 0.00 KM |
| Ernest Creed Close | £ 0 | 0 | 0.00 KM |
| William Drew Close | £ 295,000 | 0 | 0.00 KM |
| Thomas Howell Close | £ 0 | 0 | 0.00 KM |
| Nastend Lane | £ 850,000 | 0 | 0.00 KM |
Nearby Transport
| Name | NLC | TLC | Distance |
|---|---|---|---|
| Stonehouse | 4770 | SHU | 3.18 KM |
| Cam And Dursley | 3238 | CDU | 7.12 KM |
| Stroud (Gloucs) | 4771 | STD | 9.73 KM |
Nearby Listings
| Address | Price | Type | Score | Distance |
|---|---|---|---|---|
| Artemus Silvey Close, Great Oldbury, Stonehouse | £ 330,000 | BUY | 7 / 10 | 0.00 KM |
| Artemus Silvey Close, Great Oldbury, Stonehouse, Gloucestershire, GL10 | £ 300,000 | BUY | 7 / 10 | 0.00 KM |
| Artemus Silvey Close, Great Oldbury | £ 315,000 | BUY | 7 / 10 | 0.02 KM |
| Great Oldbury, GL10 3FW | £ 300,000 | BUY | 7 / 10 | 0.02 KM |
| Thomas Tudor Way, Great Oldbury, Stonehouse | £ 320,000 | BUY | 7 / 10 | 0.05 KM |
Nearby Properties
| Address | Price | Distance |
|---|---|---|
| 2 The Green | £ 325,000 | 0.86 KM |
| 1 Westend Cottages | £ 265,000 | 0.94 KM |
| 3 Westend Cottages | £ 240,000 | 0.94 KM |
| 2 Westend Cottages | £ 202,000 | 0.94 KM |
| 3 Chipmans Platt | £ 178,000 | 1.08 KM |