Vivod, Llangollen
WI

Vivod, Llangollen

By Wingetts

£ 850,000

Reviews

3 out of 5 stars

Wingetts says ..

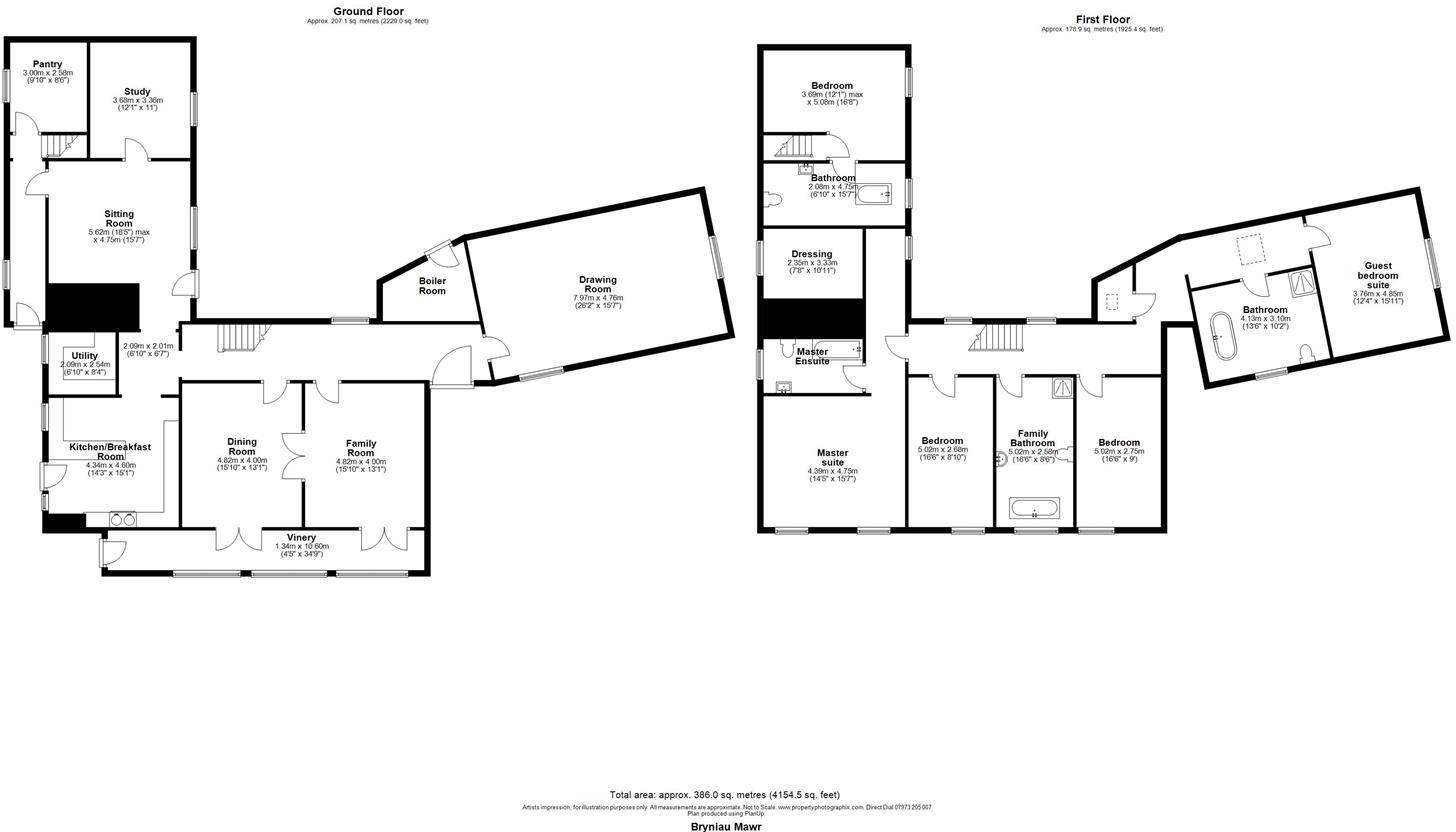
A charming 5 bedroom, 4 bathroom detached country home situated in an elevated position over Llangollen offering panoramic views across the Valley and to Castell Dinas Bran. The established wrap around gardens are a particular feature with sun terrace and raised decked patio from which to admire ...

Property Oracle says ..

Therefore, we give this property 7 / 10. *Disclaimer: This is our option and does constitute a recommendation or financial advice. Do your own research. *

Price
7
Condition
8
Location
7
Land
8
Bedrooms
5
Bathrooms
4

The heatmap indicates the level of crime in the area. The color of the heatmap indicates the crime severity and recency.

Metrics Year-on-Year

Average area value
326,418.00 £
Decreased by 0.78 %
from 328,985.00 £
Average area rental value
1,459.00 £/mo
Increased by 29.46 %
from 1,127.00 £/mo
Est rental Yield
5.36 %
Increased by 30.41 %
from 4.11 %
Crime Rate
0.00 %
from 0.00 %

Agent Activity

  • Wingetts created the listing.

Nearby Schools

NameTypeOfstedDistance
Ysgol Dinas BranWelsh Establishment2.04 KM
Ysgol Gymraeg Y GwernantWelsh Establishment3.36 KM
Ysgol Bryn Collen LlangollenWelsh Establishment3.36 KM
Ysgol CynddelwWelsh Establishment4.87 KM
Garth C.P. SchoolWelsh Establishment9.18 KM

Images

j0cDCuI8.jpeg 6JItULIM.jpeg ooCl1jUQ.jpeg wBnZD8DY.jpeg 5RZx3tT4.jpeg xtAcqG64.jpeg cGwfcKzU.jpeg 5WxRGClQ.jpeg DHNAKUBw.jpeg ieGiQD_E.jpeg 6lsDUt1k.jpeg Tnxv6qc8.jpeg h8E84AMU.jpeg ASz8UivA.jpeg yeUkXWqA.jpeg B5vIlezY.jpeg 0gB6HhPw.jpeg 6DU4qC48.jpeg 9qCA0HEo.jpeg cJyCZt-Y.jpeg MpWxosus.jpeg l5L0WIfc.jpeg -_KxEod0.jpeg NozxsUUE.jpeg t7RQ6Zwc.jpeg NiPoH0Wo.jpeg rVbG7_60.jpeg YdD8ZVY4.jpeg tLzGfVlg.jpeg 6TcKJD2U.jpeg 7daxUTow.jpeg CtlgCyg8.jpeg dFb3fZ7E.jpeg IEeGzeeQ.jpeg kdEd2K68.jpeg pwrtqDgY.jpeg R9JYSwrw.jpeg SUIhzfSA.jpeg tVfEoPDU.jpeg wycvHnm0.jpeg X7DJ-nUE.jpeg Plan .png 2F40Yc14.jpeg

Nearby Streets

NameAverage PriceAverage SqftDistance
Bryn Goleu £ 000.00 KM
Trem yr Orsaf £ 000.00 KM
Willow Street £ 000.00 KM
George Street £ 169,95000.00 KM

Nearby Listings

AddressPriceTypeScoreDistance
Vivod, Llangollen £ 850,000BUY7 / 100.00 KM
Berwyn, Llangollen, LL20 £ 279,950BUY6 / 100.55 KM
Geraint, Llangollen, Denbighshire, LL20 £ 525,000BUY5 / 100.58 KM
Pentrefelin, Llangollen £ 340,000BUY6 / 100.86 KM
Berwyn Road, Llangollen £ 259,950BUYUnknown0.94 KM

Nearby Properties

AddressPriceDistance
Bryniau Mawr £ 200,0000.04 KM
Pen Llwybr £ 300,0000.04 KM
Cae Madoc £ 386,2200.82 KM
1 Afon Glas £ 305,0001.03 KM
3 Afon Glas £ 340,0001.03 KM