LO
1 Garth Cottages, Knottingley
By Logic Real Estate
£ 160,000
Reviews
3 out of 5 stars
Logic Real Estate says ..
Situated on the edge of Knottingley, this beautifully presented end-terrace property exudes cottage charm and character while offering generous living space throughout. Tastefully styled with a blend of modern fixtures and complementary traditional décor, this home is ready to move into and ideal...
Property Oracle says ..
Therefore, we give this property 6 / 10. *Disclaimer: This is our option and does constitute a recommendation or financial advice. Do your own research. *
- Price
- 9
- Condition
- 8
- Location
- 6
- Land
- 1
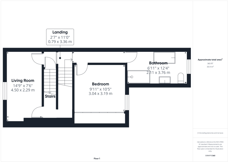
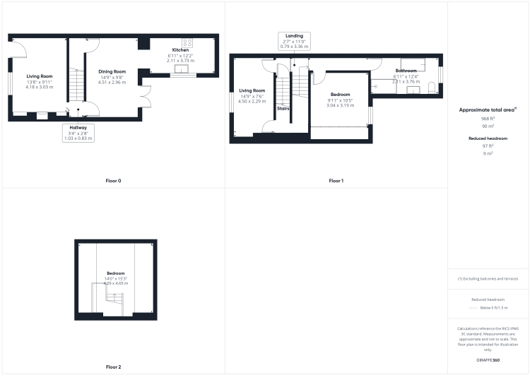
- Bedrooms
- 3
- Bathrooms
- 1
- Sqft (est)
- 186.22
The heatmap indicates the level of crime in the area. The color of the heatmap indicates the crime severity and recency.
Metrics Year-on-Year
- Average area value
- 420,000.00 £Decreased by 24.04 %
- Est sale value
- 163,128.72 £Increased by 140.00 %
- Average area rental value
- 1,475.00 £/moDecreased by 37.68 %
- Est letting value
- 558.66 £/moIncreased by 200.00 %
- Est rental Yield
- 4.21 %Decreased by 18.09 %
- Crime Rate
- 11.00 %Unchanged by 0.00 %
from 552,933.00 £
from 67,970.30 £
from 2,367.00 £/mo
from 186.22 £/mo
from 5.14 %
from 11.00 %
Agent Activity
Logic Real Estate created the listing.
Nearby Schools
| Name | Type | Ofsted | Distance |
|---|---|---|---|
| St Botolphs Ce Academy | Academy Converter | 0.76 KM | |
| De Lacy Academy | Academy Converter | Good | 1.00 KM |
| England Lane Academy | Academy Sponsor Led | Good | 1.23 KM |
| The Vale Primary Academy | Academy Converter | Outstanding | 3.04 KM |
| Simpson'S Lane Academy | Academy Converter | Good | 3.17 KM |
Images
Nearby Streets
| Name | Average Price | Average Sqft | Distance |
|---|---|---|---|
| Common Lane | £ 0 | 0 | 0.00 KM |
| Fernley Green Road | £ 0 | 0 | 0.00 KM |
| East View | £ 0 | 0 | 0.00 KM |
| Tithe Barn Road | £ 160,000 | 0 | 0.00 KM |
| Garden Lane | £ 140,000 | 0 | 0.00 KM |
Nearby Transport
| Name | NLC | TLC | Distance |
|---|---|---|---|
| Knottingley | 8546 | KNO | 2.83 KM |
| Pontefract Monkhill | 8548 | PFM | 7.80 KM |
| Pontefract Baghill | 8540 | PFR | 7.89 KM |
| Whitley Bridge | 8130 | WBD | 8.38 KM |
| South Milford | 8142 | SOM | 8.60 KM |
Nearby Listings
| Address | Price | Type | Score | Distance |
|---|---|---|---|---|
| 1 Garth Cottages, Knottingley | £ 160,000 | BUY | 6 / 10 | 0.00 KM |
| Springfield Avenue, Knottingley, West Yorkshire, WF11 | £ 180,000 | BUY | 7 / 10 | 0.17 KM |
| Fernley Green Court, KNOTTINGLEY | £ 200,000 | BUY | 6 / 10 | 0.18 KM |
| Racca Avenue, Knottingley, West Yorkshire, WF11 | £ 190,000 | BUY | 7 / 10 | 0.25 KM |
| Lamb Inn Road, Knottingley | £ 128,000 | BUY | 7 / 10 | 0.26 KM |
Nearby Properties
| Address | Price | Distance |
|---|---|---|
| 12 Low Green | £ 31,500 | 0.12 KM |
| 21 Low Green | £ 60,000 | 0.12 KM |
| 22 Low Green | £ 68,000 | 0.12 KM |
| 11 Low Green | £ 46,500 | 0.12 KM |
| 16 Low Green | £ 71,000 | 0.12 KM |