ST
Arcadian Gardens - Flat A, London
By Star Estates & Lettings Ltd
£ 400,000
Reviews
2 out of 5 stars
Star Estates & Lettings Ltd says ..
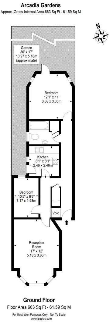
Nestled in the charming Arcadian Gardens, Flat A offers a delightful living experience in the heart of London. This well-appointed flat features a spacious reception room, perfect for entertaining guests or enjoying a quiet evening at home. The property boasts two comfortable bedrooms, providing ...
Property Oracle says ..
Therefore, we give this property 5 / 10. *Disclaimer: This is our option and does constitute a recommendation or financial advice. Do your own research. *
- Price
- 6
- Condition
- 3
- Location
- 7
- Land
- 7
- Bedrooms
- 2
- Bathrooms
- 1
- Sqft (est)
- 663.00
The heatmap indicates the level of crime in the area. The color of the heatmap indicates the crime severity and recency.
Metrics Year-on-Year
- Average area value
- 489,165.00 £Increased by 16.57 %
- Est sale value
- 413,049.00 £Increased by 28.45 %
- Average area rental value
- 1,679.00 £/moDecreased by 8.30 %
- Est letting value
- 1,326.00 £/moUnchanged by 0.00 %
- Est rental Yield
- 4.12 %Decreased by 21.37 %
- Crime Rate
- 6.00 %Unchanged by 0.00 %
from 419,649.00 £
from 321,555.00 £
from 1,831.00 £/mo
from 1,326.00 £/mo
from 5.24 %
from 6.00 %
Agent Activity
Star Estates & Lettings Ltd created the listing.
Nearby Schools
| Name | Type | Ofsted | Distance |
|---|---|---|---|
| St Thomas More Catholic School | Academy Converter | Outstanding | 0.35 KM |
| Earlham Primary School | Community School | Good | 0.47 KM |
| Tottenhall Infant School | Community School | Requires improvement | 0.47 KM |
| Tottenhall Children'S Centre | Children's Centre | 0.48 KM | |
| St Michael At Bowes Cofe Junior School | Voluntary Aided School | Good | 0.50 KM |
Images
Nearby Streets
| Name | Average Price | Average Sqft | Distance |
|---|---|---|---|
| Spencer Avenue | £ 0 | 0 | 0.00 KM |
| Fairbrook Road | £ 575,000 | 0 | 0.00 KM |
| North Circular Road | £ 525,000 | 0 | 0.00 KM |
| The Mews | £ 0 | 0 | 0.00 KM |
| Sandcroft Close | £ 0 | 0 | 0.00 KM |
Nearby Transport
| Name | NLC | TLC | Distance |
|---|---|---|---|
| Palmers Green | 6021 | PAL | 1.34 KM |
| Bowes Park | 6027 | BOP | 1.53 KM |
| Alexandra Palace | 6025 | AAP | 1.79 KM |
| Hornsey | 6015 | HRN | 2.34 KM |
| Winchmore Hill | 6024 | WIH | 3.09 KM |
Nearby Listings
| Address | Price | Type | Score | Distance |
|---|---|---|---|---|
| Arcadian Gardens - Flat A, London | £ 400,000 | BUY | 5 / 10 | 0.00 KM |
| Arcadian Gardens, Wood Green, London, N22 | £ 425,000 | BUY | Unknown | 0.04 KM |
| Maryland Road, Wood Green Borders, N22 | £ 650,000 | BUY | 5 / 10 | 0.06 KM |
| Sylvan Avenue, London, N22 | £ 500,000 | BUY | 6 / 10 | 0.07 KM |
| Arcadian Gardens, London, N22 | £ 425,000 | BUY | 6 / 10 | 0.08 KM |
Nearby Properties
| Address | Price | Distance |
|---|---|---|
| 67 Arcadian Gardens | £ 173,000 | 0.04 KM |
| 69a Arcadian Gardens | £ 180,000 | 0.04 KM |
| 17 Arcadian Gardens | £ 375,000 | 0.04 KM |
| 91 Arcadian Gardens | £ 60,000 | 0.04 KM |
| 85a Arcadian Gardens | £ 60,000 | 0.04 KM |