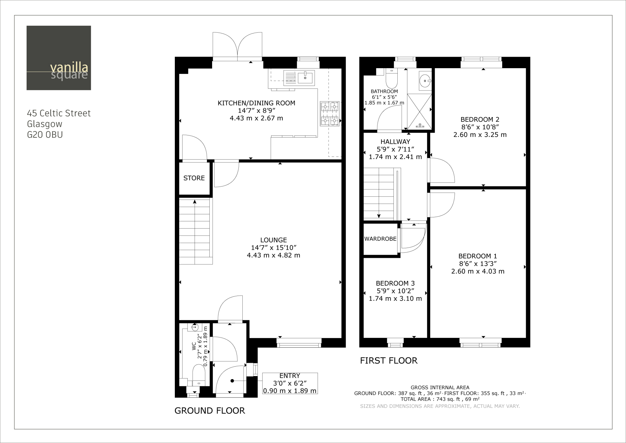
Celtic Street, Maryhill
VA

Celtic Street, Maryhill

By Vanilla Square

£ 149,000

Reviews

3 out of 5 stars

Vanilla Square says ..

A well-presented three-bedroom mid-terrace villa located in a peaceful pocket of Maryhill.

Property Oracle says ..

Therefore, we give this property 7 / 10. *Disclaimer: This is our option and does constitute a recommendation or financial advice. Do your own research. *

Price
8
Condition
8
Location
7
Land
5
Bedrooms
3
Bathrooms
1
Sqft (est)
731.84

The heatmap indicates the level of crime in the area. The color of the heatmap indicates the crime severity and recency.

Metrics Year-on-Year

Average area value
156,846.00 £
Decreased by 18.29 %
from 191,950.00 £
Est sale value
191,742.08 £
Increased by 36.46 %
from 140,513.28 £
Average area rental value
1,414.00 £/mo
Increased by 3.36 %
from 1,368.00 £/mo
Est letting value
1,463.68 £/mo
Increased by 100.00 %
from 731.84 £/mo
Est rental Yield
10.82 %
Increased by 26.55 %
from 8.55 %
Crime Rate
0.00 %
from 0.00 %

Agent Activity

  • Vanilla Square created the listing.

Images

3-print-45 Celtic... 11-print-45 Celti... 9-print-45 Celtic... 10-print-45 Celti... 13-print-45 Celti... 12-print-45 Celti... 17-print-45 Celti... 15-print-45 Celti... 18-print-45 Celti... 20-print-45 Celti... 27-print-45 Celti... 26-print-45 Celti... 23-print-45 Celti... 24-print-45 Celti... 25-print-45 Celti... 21-print-45 Celti... 22-print-45 Celti... 30-print-45 Celti... 29-print-45 Celti... 19-print-45 Celti... 6-print-45 Celtic... 34-print-45 Celti... 33-print-45 Celti... 35-print-45 Celti... 37-print-45 Celti... 31-print-45 Celti... 4-print-45 Celtic... 38-print-45 Celti... 2-print-45 Celtic... 39-print-45 Celti...

Nearby Streets

NameAverage PriceAverage SqftDistance
Duart Street £ 140,00000.00 KM
Dungoyne Street £ 325,00000.00 KM
Prince of Wales Gardens £ 000.00 KM
Shiskine Drive £ 000.00 KM
Falcon Terrace £ 000.00 KM

Nearby Transport

NameNLCTLCDistance
Maryhill9957MYH0.12 KM
Kelvindale1655KVD1.03 KM
Summerston9959SUM1.05 KM
Gilshochill9956GSC2.00 KM
Hyndland9845HYN2.42 KM

Nearby Listings

AddressPriceTypeScoreDistance
Celtic Street, Maryhill, Glasgow £ 100,000BUY5 / 100.00 KM
Celtic Street, Maryhill £ 149,000BUY7 / 100.00 KM
Celtic Street, Maryhill, Glasgow, G20 0BU £ 149,000BUYUnknown0.09 KM
Lochgilp Street, Maryhill, Glasgow, G20 0AF £ 235,000BUY6 / 100.15 KM
9 Kirn Street, Maryhill, G20 £ 125,000BUYUnknown0.20 KM