Crombey Street, Swindon, SN1 5QW
By Chappells
£ 215,000
Reviews
3 out of 5 stars
Chappells says ..
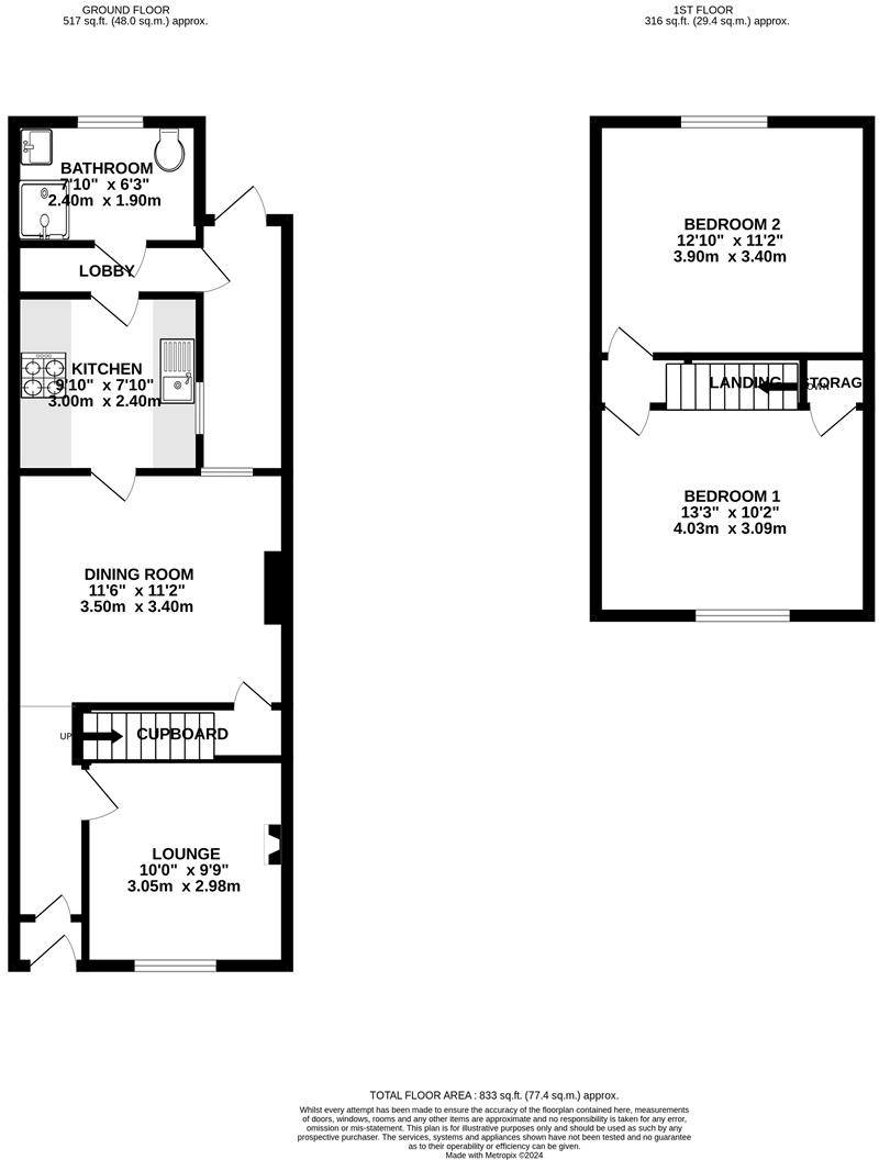
**NEW INSTRUCTION** Chappells are pleased to offer for sale this spacious terraced house situated on Crombey Street, just a few minutes walk to the centre of Swindon and all amenities including a mainline railway station. The accommodation includes an entrance hall, sitting room, dining room with...
Property Oracle says ..
This two-bedroom terraced house in Swindon’s Eastcott area is listed at £215,000. The property benefits from a rear garden with a decked area and shed, and appears to be in reasonable condition, although some modernisation may be desirable. The location is convenient, with a train station within walking distance and several schools nearby, including Robert Le Kyng Primary School and The Commonweal School, both rated as “Good” by Ofsted. However, the property’s plot size is small. Compared to the average price per square foot in the area (£253), the asking price seems slightly below average, considering its condition and location. However, more information on the property’s square footage would be needed to make a definitive assessment.
Therefore, we give this property 6 / 10. *Disclaimer: This is our option and does constitute a recommendation or financial advice. Do your own research. *
- Price
- 7
- Condition
- 6
- Location
- 7
- Land
- 4
- Bedrooms
- 2
- Bathrooms
- 1
- Sqft (est)
- 833.13
The heatmap indicates the level of crime in the area. The color of the heatmap indicates the crime severity and recency.
Metrics Year-on-Year
- Average area value
- 238,636.00 £Increased by 2.11 %
- Est sale value
- 259,103.43 £Increased by 16.04 %
- Average area rental value
- 982.00 £/moDecreased by 1.70 %
- Est letting value
- 833.13 £/moUnchanged by 0.00 %
- Est rental Yield
- 4.94 %Decreased by 3.70 %
- Crime Rate
- 10.00 %Unchanged by 0.00 %
Agent Activity
Chappells created the listing.
Nearby Schools
| Name | Type | Ofsted | Distance |
|---|---|---|---|
| Utc Swindon | University Technical College | Requires improvement | 0.74 KM |
| Robert Le Kyng Primary School | Community School | Good | 0.97 KM |
| The Commonweal School | Academy Converter | Good | 1.01 KM |
| King William Street Church Of England Primary School | Academy Converter | Good | 1.03 KM |
| Holy Rood Catholic Primary School | Academy Converter | Requires improvement | 1.05 KM |
Images
Nearby Streets
| Name | Average Price | Average Sqft | Distance |
|---|---|---|---|
| Market Street | £ 0 | 0 | 0.00 KM |
| Chester Street | £ 240,000 | 0 | 0.00 KM |
| Havelock Square | £ 0 | 0 | 0.00 KM |
| Fleet Square | £ 0 | 0 | 0.00 KM |
| King Street | £ 0 | 0 | 0.00 KM |
Nearby Transport
| Name | NLC | TLC | Distance |
|---|---|---|---|
| Swindon (Wilts) | 3333 | SWI | 0.86 KM |
Nearby Listings
| Address | Price | Type | Score | Distance |
|---|---|---|---|---|
| Crombey Street, Swindon, SN1 5QW | £ 215,000 | BUY | 6 / 10 | 0.00 KM |
| Crombey Street, Swindon, SN1 | £ 220,000 | BUY | 5 / 10 | 0.03 KM |
| Crombey Street, Swindon, SN1 | £ 210,000 | BUY | 5 / 10 | 0.03 KM |
| Crombey Street, Swindon, Wiltshire, SN1 | £ 220,000 | BUY | 7 / 10 | 0.05 KM |
| Deacon Street, Swindon, Wiltshire, SN1 | £ 200,000 | BUY | 6 / 10 | 0.06 KM |
Nearby Properties
| Address | Price | Distance |
|---|---|---|
| 82 Deacon Street | £ 235,000 | 0.05 KM |
| 84 Deacon Street | £ 192,000 | 0.05 KM |
| 70 Deacon Street | £ 127,000 | 0.05 KM |
| 93 Deacon Street | £ 139,000 | 0.05 KM |
| 85 Deacon Street | £ 143,000 | 0.05 KM |