JO
Eversfield Gardens, London, NW7
By Joseph Scott
£ 625,000
Reviews
3 out of 5 stars
Joseph Scott says ..
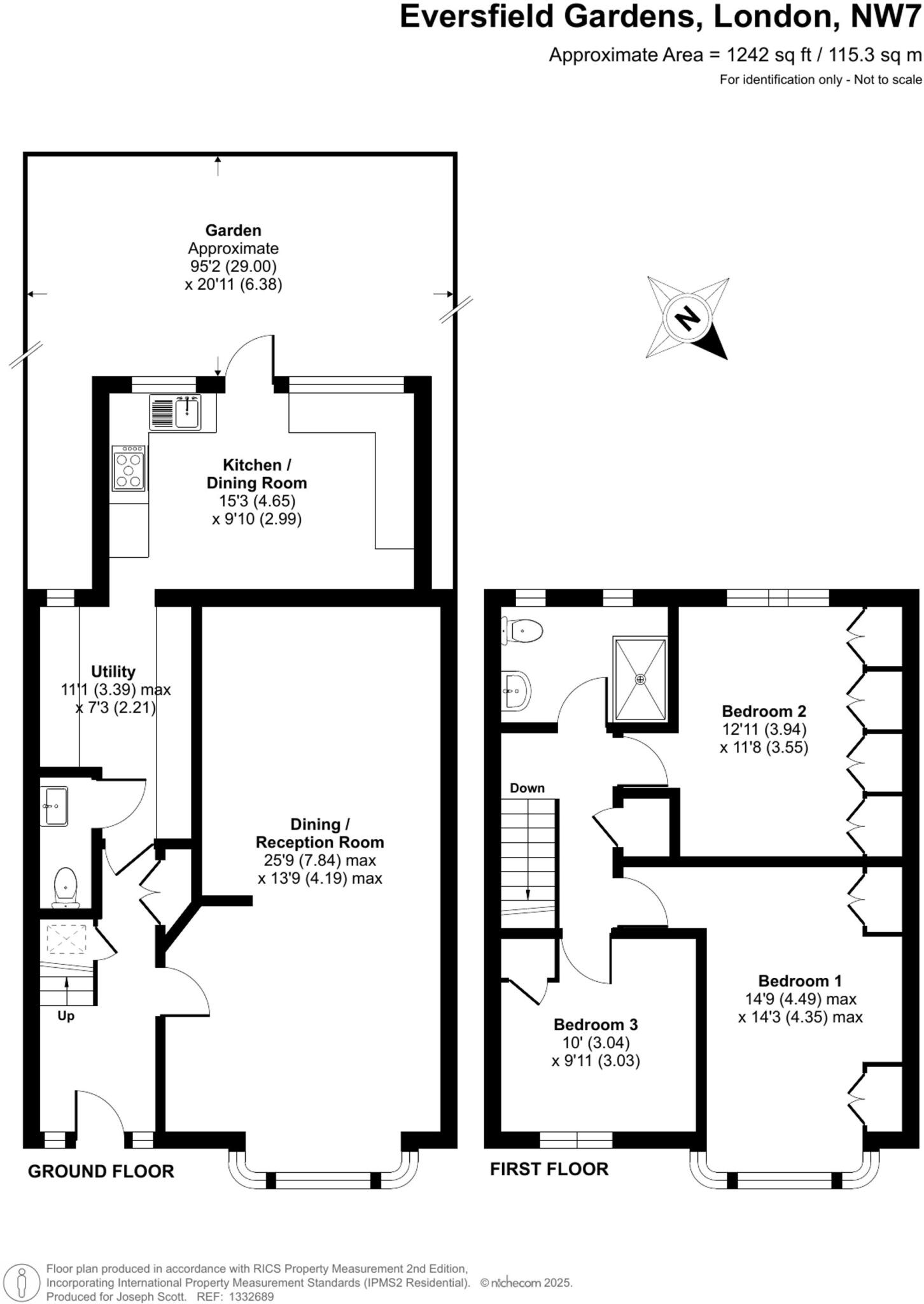
Located on a quiet residential street in NW7, this three-bedroom terraced house offers easy access to well-regarded schools, local shops, and reliable transport links, including Mill Hill Broadway (0.4 Miles).The ground floor features an extended open-plan living and dining area with a bay window.
Property Oracle says ..
Therefore, we give this property 6 / 10. *Disclaimer: This is our option and does constitute a recommendation or financial advice. Do your own research. *
- Price
- 6
- Condition
- 6
- Location
- 7
- Land
- 7
- Bedrooms
- 3
- Bathrooms
- 1
- Sqft (est)
- 3,004.00
The heatmap indicates the level of crime in the area. The color of the heatmap indicates the crime severity and recency.
Metrics Year-on-Year
- Average area value
- 425,000.00 £Increased by 10.51 %
- Est sale value
- 1,381,840.00 £Decreased by 11.88 %
- Average area rental value
- 1,646.00 £/moDecreased by 0.60 %
- Est letting value
- 3,004.00 £/moDecreased by 50.00 %
- Est rental Yield
- 4.65 %Decreased by 10.06 %
- Crime Rate
- 5.00 %Unchanged by 0.00 %
from 384,596.00 £
from 1,568,088.00 £
from 1,656.00 £/mo
from 6,008.00 £/mo
from 5.17 %
from 5.00 %
Agent Activity
Joseph Scott created the listing.
Nearby Schools
| Name | Type | Ofsted | Distance |
|---|---|---|---|
| Woodcroft Primary School | Community School | Good | 0.19 KM |
| The Orion Primary School | Community School | Outstanding | 0.56 KM |
| The Annunciation Rc Junior School | Voluntary Aided School | Good | 0.82 KM |
| Mathilda Marks-Kennedy Jewish Primary School | Voluntary Aided School | Outstanding | 0.84 KM |
| St Martin'S School | Other Independent School | Good | 0.86 KM |
Images
Nearby Streets
| Name | Average Price | Average Sqft | Distance |
|---|---|---|---|
| Woodcroft Avenue | £ 1,025,000 | 0 | 0.00 KM |
| Mostyn Road | £ 550,000 | 0 | 0.00 KM |
| M1 | £ 0 | 0 | 0.00 KM |
| Grange Road | £ 0 | 0 | 0.00 KM |
| Limes Avenue | £ 999,000 | 0 | 0.00 KM |
Nearby Transport
| Name | NLC | TLC | Distance |
|---|---|---|---|
| Mill Hill Broadway | 1527 | MIL | 0.50 KM |
| Hendon | 1522 | HEN | 3.51 KM |
| Elstree And Borehamwood | 1542 | ELS | 5.85 KM |
| Cricklewood | 1519 | CRI | 7.06 KM |
| Wembley Stadium | 1509 | WCX | 7.17 KM |
Nearby Listings
| Address | Price | Type | Score | Distance |
|---|---|---|---|---|
| Eversfield Gardens, London, NW7 | £ 625,000 | BUY | 6 / 10 | 0.00 KM |
| Watling Avenue, London, HA8 | £ 475,000 | BUY | 6 / 10 | 0.09 KM |
| Watling Avenue, Edgware, HA8 | £ 475,000 | BUY | 5 / 10 | 0.09 KM |
| Goldbeaters Grove, Edgware | £ 525,000 | BUY | 6 / 10 | 0.12 KM |
| Goldbeaters Grove, Edgware, HA8 | £ 600,000 | BUY | Unknown | 0.12 KM |
Nearby Properties
| Address | Price | Distance |
|---|---|---|
| 5 Eversfield Gardens | £ 200,000 | 0.02 KM |
| 13 Eversfield Gardens | £ 105,000 | 0.02 KM |
| 15 Eversfield Gardens | £ 439,950 | 0.02 KM |
| 166 Abbots Road | £ 226,000 | 0.11 KM |
| 164 Abbots Road | £ 425,000 | 0.11 KM |