CO
Water Street, Glossop, SK13 7SG
By Country Holmes
£ 450,000
Reviews
3 out of 5 stars
Country Holmes says ..
Country Holmes are pleased to offer for sale this unique and spacious stone-built home in sought-after Old Glossop, blending period charm with modern features. Includes two reception rooms, high-spec kitchen, four bedrooms, two bathrooms, private garden, and off-road parking. Close to schools,...
Property Oracle says ..
Therefore, we give this property 6 / 10. *Disclaimer: This is our option and does constitute a recommendation or financial advice. Do your own research. *
- Price
- 4
- Condition
- 9
- Location
- 7
- Land
- 7
- Bedrooms
- 4
- Bathrooms
- 2
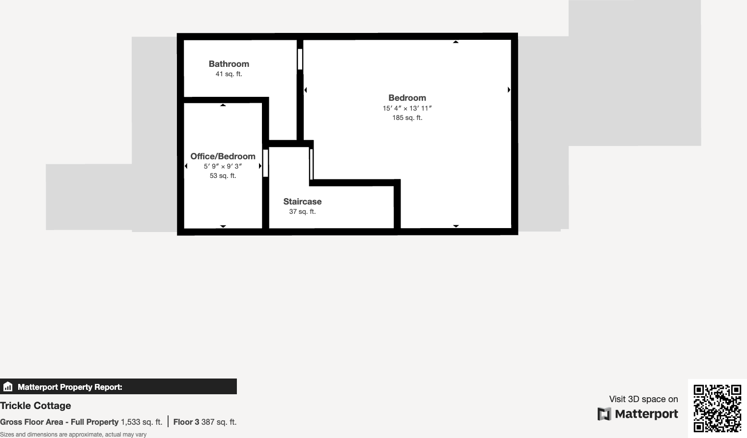
- Sqft (est)
- 534.00
The heatmap indicates the level of crime in the area. The color of the heatmap indicates the crime severity and recency.
Metrics Year-on-Year
- Average area value
- 334,167.00 £Increased by 24.23 %
- Est sale value
- 137,238.00 £Decreased by 19.44 %
- Average area rental value
- 1,252.00 £/moIncreased by 4.33 %
- Est letting value
- 0.00 £/moDecreased by 100.00 %
- Est rental Yield
- 4.50 %Decreased by 15.89 %
- Crime Rate
- 1.00 %Unchanged by 0.00 %
from 269,000.00 £
from 170,346.00 £
from 1,200.00 £/mo
from 534.00 £/mo
from 5.35 %
from 1.00 %
Agent Activity
Country Holmes marked this listing as sold.
Country Holmes created the listing.
Nearby Schools
| Name | Type | Ofsted | Distance |
|---|---|---|---|
| All Saints Catholic Voluntary Academy | Academy Converter | 0.90 KM | |
| Duke Of Norfolk Cofe Primary School | Voluntary Controlled School | Requires improvement | 1.33 KM |
| St Mary'S Catholic Voluntary Academy | Academy Sponsor Led | 1.97 KM | |
| Glossop Children'S Centre | Children's Centre | 2.31 KM | |
| St Luke'S Cofe Primary School | Voluntary Controlled School | Good | 2.47 KM |
Images
Nearby Streets
| Name | Average Price | Average Sqft | Distance |
|---|---|---|---|
| Starkie Street | £ 0 | 0 | 0.00 KM |
| Wesley Street | £ 750,000 | 0 | 0.00 KM |
| Pye Grove | £ 525,000 | 0 | 0.00 KM |
| Sheffield Road | £ 0 | 0 | 0.00 KM |
| Derwent Close | £ 0 | 0 | 0.00 KM |
Nearby Transport
| Name | NLC | TLC | Distance |
|---|---|---|---|
| Glossop | 2895 | GLO | 1.83 KM |
| Hadfield | 2896 | HDF | 3.65 KM |
| Dinting | 2893 | DTG | 4.03 KM |
| Broadbottom | 2892 | BDB | 9.21 KM |
Nearby Listings
| Address | Price | Type | Score | Distance |
|---|---|---|---|---|
| Water Street, Glossop, SK13 7SG | £ 450,000 | BUY | 6 / 10 | 0.00 KM |
| Water Street, Glossop, Derbyshire, SK13 | £ 225,000 | BUY | Unknown | 0.00 KM |
| Hawkshead Road, Glossop, SK13 | £ 395,000 | BUY | Unknown | 0.17 KM |
| Starkie Street, Glossop | £ 450,000 | BUY | Unknown | 0.22 KM |
| Hawkshead Fold, Glossop, SK13 | £ 1,500,000 | BUY | 7 / 10 | 0.24 KM |
Nearby Properties
| Address | Price | Distance |
|---|---|---|
| 31 Hope Street | £ 145,000 | 0.22 KM |
| 27 Hope Street | £ 195,000 | 0.22 KM |
| 11 Hope Street | £ 340,000 | 0.22 KM |
| 49 Hope Street | £ 149,000 | 0.22 KM |
| 21 Hope Street | £ 144,000 | 0.22 KM |