Molesey Road, West Molesey, KT8
By Tudor & Co
£ 825,000
Reviews
4 out of 5 stars
Tudor & Co says ..
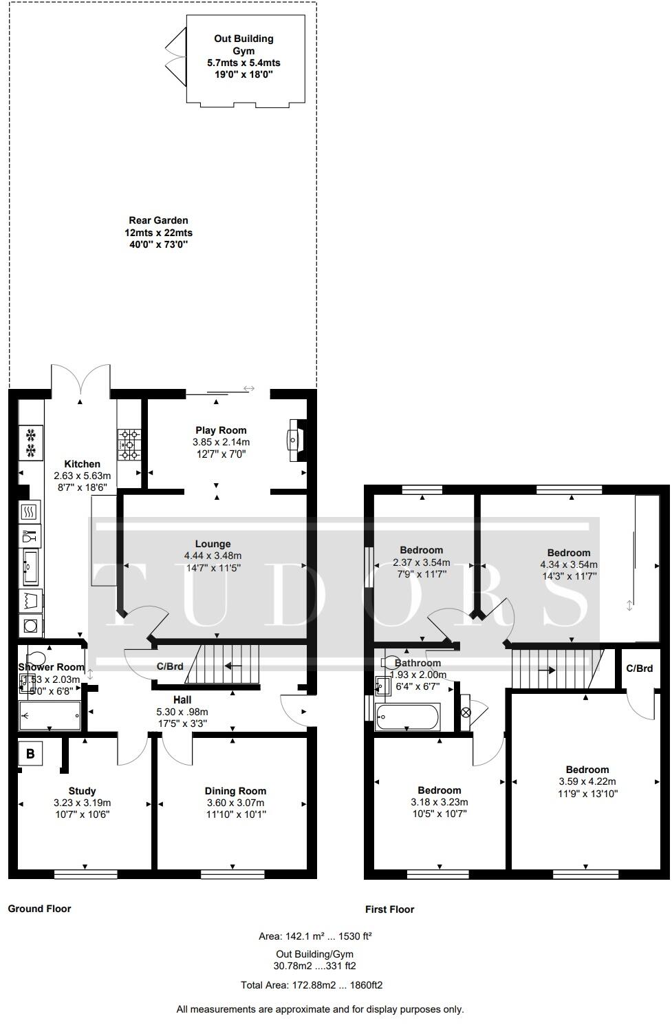
TUDORS are pleased to offer for sale this well appointed and individual four double bedroom detached family home which boasts an incredible amount of space internally and externally with all rooms having impressive proportions. The property enjoys an excellent plot with a large driveway provid...
Property Oracle says ..
This property is a 4 bedroom, 2 bathroom detached house located in West Molesey, Surrey. The property has been recently renovated to a high standard, with a modern, stylish interior. The kitchen has been completely updated with high-end appliances and a sleek design. The garden is well-maintained and offers a private outdoor space. The location is convenient, with good access to transportation and local amenities. The property is within walking distance of several highly-rated schools. The list price is slightly higher than the average price per square foot for the area, but this is justified given the property’s condition, size, and location. Overall, this is a desirable property in a sought-after area.
Therefore, we give this property 8 / 10. *Disclaimer: This is our option and does constitute a recommendation or financial advice. Do your own research. *
- Price
- 7
- Condition
- 9
- Location
- 9
- Land
- 8
- Bedrooms
- 4
- Bathrooms
- 2
- Sqft (est)
- 1,251.30
- Lot (est)
- 1,860.86
The heatmap indicates the level of crime in the area. The color of the heatmap indicates the crime severity and recency.
Metrics Year-on-Year
- Average area value
- 673,557.00 £Increased by 18.30 %
- Est sale value
- 840,873.60 £Increased by 23.99 %
- Average area rental value
- 1,645.00 £/moDecreased by 14.28 %
- Est letting value
- 1,251.30 £/moUnchanged by 0.00 %
- Est rental Yield
- 2.93 %Decreased by 27.48 %
- Crime Rate
- 13.00 %Unchanged by 0.00 %
Agent Activity
Tudor & Co marked this listing as sold.
Tudor & Co created the listing.
Nearby Schools
| Name | Type | Ofsted | Distance |
|---|---|---|---|
| The Beech House School | Other Independent School | Good | 0.48 KM |
| Three Rivers Sure Start Children'S Centre | Children's Centre | 1.37 KM | |
| Chandlers Field Primary School | Foundation School | Good | 1.55 KM |
| Hurst Park Primary School | Community School | Good | 1.56 KM |
| Fox Grove School | Free Schools Special | 1.59 KM |
Images
Nearby Streets
| Name | Average Price | Average Sqft | Distance |
|---|---|---|---|
| Bessborough Works | £ 0 | 0 | 0.00 KM |
| Knights Close | £ 0 | 0 | 0.00 KM |
| Windsor Avenue | £ 0 | 0 | 0.00 KM |
| The Markway | £ 260,000 | 0 | 0.00 KM |
Nearby Transport
| Name | NLC | TLC | Distance |
|---|---|---|---|
| Hersham | 5590 | HER | 2.40 KM |
| Hampton | 5560 | HMP | 2.44 KM |
| Kempton Park Racecourse | 5678 | KMP | 3.85 KM |
| Esher | 5558 | ESH | 3.94 KM |
| Walton-On-Thames | 5575 | WAL | 4.34 KM |
Nearby Listings
| Address | Price | Type | Score | Distance |
|---|---|---|---|---|
| Molesey Road, West Molesey, KT8 | £ 599,950 | BUY | 7 / 10 | 0.00 KM |
| Molesey Road, West Molesey, KT8 | £ 825,000 | BUY | 8 / 10 | 0.00 KM |
| Molesey Road, West Molesey | £ 750,000 | BUY | 6 / 10 | 0.08 KM |
| The Dene, West Molesey | £ 525,000 | BUY | 5 / 10 | 0.12 KM |
| Molesey Road, West Molesey | £ 625,000 | BUY | 6 / 10 | 0.13 KM |
Nearby Properties
| Address | Price | Distance |
|---|---|---|
| 21 Molesey Road | £ 435,000 | 0.01 KM |
| 13 Molesey Road | £ 530,000 | 0.01 KM |
| 14 Molesey Road | £ 120,000 | 0.01 KM |
| 12 Molesey Road | £ 499,950 | 0.01 KM |
| 39 Molesey Road | £ 530,000 | 0.01 KM |