CL
Duchally Country Estate, Auchterarder, PH3
By Clyde Property
£ 249,000
Reviews
3 out of 5 stars
Clyde Property says ..
Situated at the gateway to the Scottish Highlands, Wyndham Duchally Country Estate offers a peaceful countryside retreat in Perthshire.
Property Oracle says ..
Therefore, we give this property 7 / 10. *Disclaimer: This is our option and does constitute a recommendation or financial advice. Do your own research. *
- Price
- 7
- Condition
- 8
- Location
- 7
- Land
- 6
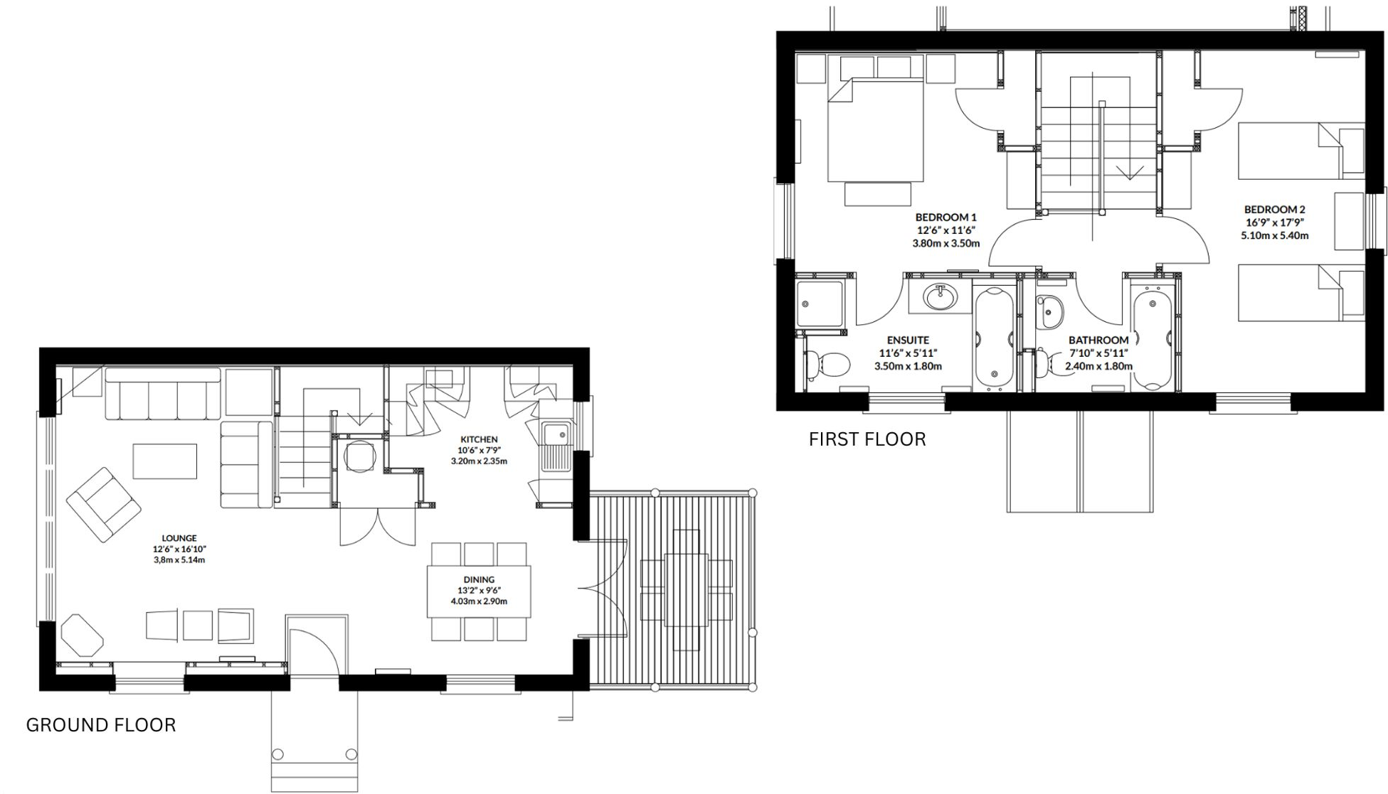
- Bedrooms
- 2
- Bathrooms
- 2
- Sqft (est)
- 970.46
The heatmap indicates the level of crime in the area. The color of the heatmap indicates the crime severity and recency.
Metrics Year-on-Year
- Average area value
- 217,000.00 £Decreased by 25.55 %
- Est sale value
- 194,092.00 £Increased by 0.50 %
- Average area rental value
- 1,150.00 £/moIncreased by 4.17 %
- Est letting value
- 970.46 £/mo
- Est rental Yield
- 6.36 %Increased by 39.78 %
- Crime Rate
- 0.00 %
from 291,475.00 £
from 193,121.54 £
from 1,104.00 £/mo
from 0.00 £/mo
from 4.55 %
from 0.00 %
Agent Activity
Clyde Property created the listing.
Images
Nearby Transport
| Name | NLC | TLC | Distance |
|---|---|---|---|
| Gleneagles | 8715 | GLE | 1.70 KM |
Nearby Listings
| Address | Price | Type | Score | Distance |
|---|---|---|---|---|
| Duchally Country Estate, Auchterarder, PH3 | £ 249,000 | BUY | 7 / 10 | 0.00 KM |
| Duchally Country Estate, Auchterarder, PH3 | £ 265,000 | BUY | 7 / 10 | 0.00 KM |
| Duchally Country Estate, Duchally Road, Auchterarder | £ 195,000 | BUY | 7 / 10 | 0.00 KM |
| Duchally Road, Duchally Country Estate, Auchterarder | £ 265,000 | BUY | 6 / 10 | 0.01 KM |
| Duchally Road, Duchally Country Estate, Auchterarder | £ 260,000 | BUY | 6 / 10 | 0.01 KM |