Roseberry Park, Bristol
By Parks Estate Agents
£ 325,000
Reviews
2 out of 5 stars
Parks Estate Agents says ..
2-Bedroom Terraced House with Great Potential – BS5Located in the heart of BS5, this two-bedroom terraced home offers generous living space and fantastic potential for buyers looking to add their own stamp. With a traditional layout, and scope for improvement throughout, this property would...
Property Oracle says ..
This is a two-bedroom terraced house located in Roseberry Park, Bristol. The property benefits from its proximity to well-regarded schools and transportation links. However, the interior condition suggests that it requires significant renovation. The property includes a garden, adding to its appeal. The asking price of £325,000 reflects the need for modernisation, offering an opportunity for buyers to add value.
Therefore, we give this property 5 / 10. *Disclaimer: This is our option and does constitute a recommendation or financial advice. Do your own research. *
- Price
- 6
- Condition
- 4
- Location
- 7
- Land
- 6
- Bedrooms
- 2
- Bathrooms
- 1
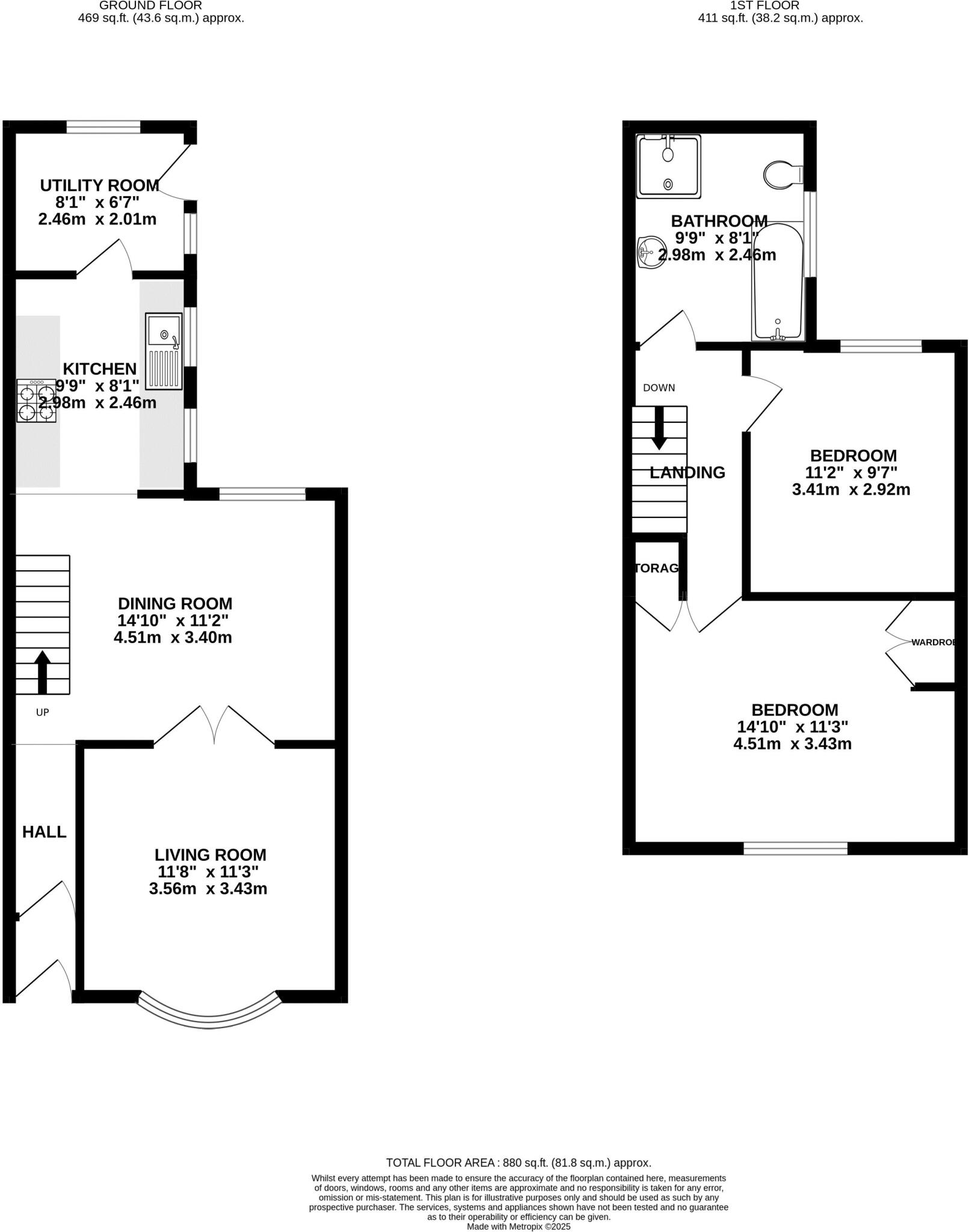
- Sqft (est)
- 880.49
The heatmap indicates the level of crime in the area. The color of the heatmap indicates the crime severity and recency.
Metrics Year-on-Year
- Average area value
- 590,893.00 £Increased by 22.51 %
- Est sale value
- 545,903.80 £Increased by 21.09 %
- Average area rental value
- 2,120.00 £/moIncreased by 44.51 %
- Est letting value
- 1,760.98 £/moIncreased by 100.00 %
- Est rental Yield
- 4.31 %Increased by 18.08 %
- Crime Rate
- 16.00 %Unchanged by 0.00 %
Agent Activity
Parks Estate Agents created the listing.
Nearby Schools
| Name | Type | Ofsted | Distance |
|---|---|---|---|
| St Patrick'S Catholic Primary School | Academy Converter | Outstanding | 0.31 KM |
| Redfield Educate Together Primary Academy | Academy Sponsor Led | Good | 0.32 KM |
| The Limes Nursery School | Local Authority Nursery School | Good | 0.54 KM |
| The Limes Nursery School & Children'S Centre | Children's Centre | 0.55 KM | |
| Whitehall Primary School | Community School | Outstanding | 0.57 KM |
Images
Nearby Streets
| Name | Average Price | Average Sqft | Distance |
|---|---|---|---|
| Barnes Street | £ 0 | 0 | 0.00 KM |
| George And Dragon Lane | £ 0 | 0 | 0.00 KM |
| Chalks Road | £ 325,000 | 0 | 0.00 KM |
| Arthur Street | £ 0 | 0 | 0.00 KM |
| Grindell Road | £ 0 | 0 | 0.00 KM |
Nearby Transport
| Name | NLC | TLC | Distance |
|---|---|---|---|
| Lawrence Hill | 3225 | LWH | 1.26 KM |
| Stapleton Road | 3250 | SRD | 1.66 KM |
| Bristol Temple Meads | 3231 | BRI | 3.33 KM |
| Montpelier | 3203 | MTP | 4.03 KM |
| Bedminster | 3245 | BMT | 5.04 KM |
Nearby Listings
| Address | Price | Type | Score | Distance |
|---|---|---|---|---|
| Roseberry Park, Bristol | £ 325,000 | BUY | 5 / 10 | 0.00 KM |
| Flat , Roseberry Mews, Roseberry Park, Bristol | £ 165,000 | BUY | 5 / 10 | 0.00 KM |
| Roseberry Park, Redfield, Bristol BS5 9EU | £ 375,000 | BUY | 7 / 10 | 0.03 KM |
| Lyppiatt Road, Bristol, BS5 | £ 280,000 | BUY | 6 / 10 | 0.11 KM |
| St George, Bristol | £ 380,000 | BUY | 6 / 10 | 0.12 KM |
Nearby Properties
| Address | Price | Distance |
|---|---|---|
| 2 Trelawney Avenue | £ 315,000 | 0.03 KM |
| 14 Roseberry Park | £ 104,000 | 0.04 KM |
| 9 Roseberry Park | £ 345,000 | 0.04 KM |
| 15 Roseberry Park | £ 110,000 | 0.04 KM |
| 7 Roseberry Park | £ 242,000 | 0.04 KM |