Harding Green says ..
A beautifully refurbished two double bedroom ground floor maisonette with a south-facing garden
Property Oracle says ..
This maisonette is located in the Nightingale area of Wandsworth, London. The property benefits from being close to Balham station (0.13km), providing convenient access to public transport. Several schools are within a reasonable distance, including Ravenstone Primary School (0.23km), Trinity St Mary’s Cofe Primary School (0.41km), and Balham Nursery School (0.53km). The property itself appears to be in good condition, with a modern kitchen and updated bathroom. The presence of a garden is a positive feature. However, the plot size is listed as 0.00 sqft, which may require clarification. Compared to the average price per sqft in the area (£814), the listed price of £750,000 for 916.01 sqft seems slightly above average, but considering the property’s condition and location, it may still represent reasonable value. More information on the plot size would help to refine this assessment.
Therefore, we give this property 7 / 10. *Disclaimer: This is our option and does constitute a recommendation or financial advice. Do your own research. *
- Price
- 7
- Condition
- 9
- Location
- 8
- Land
- 6
- Bedrooms
- 2
- Bathrooms
- 1
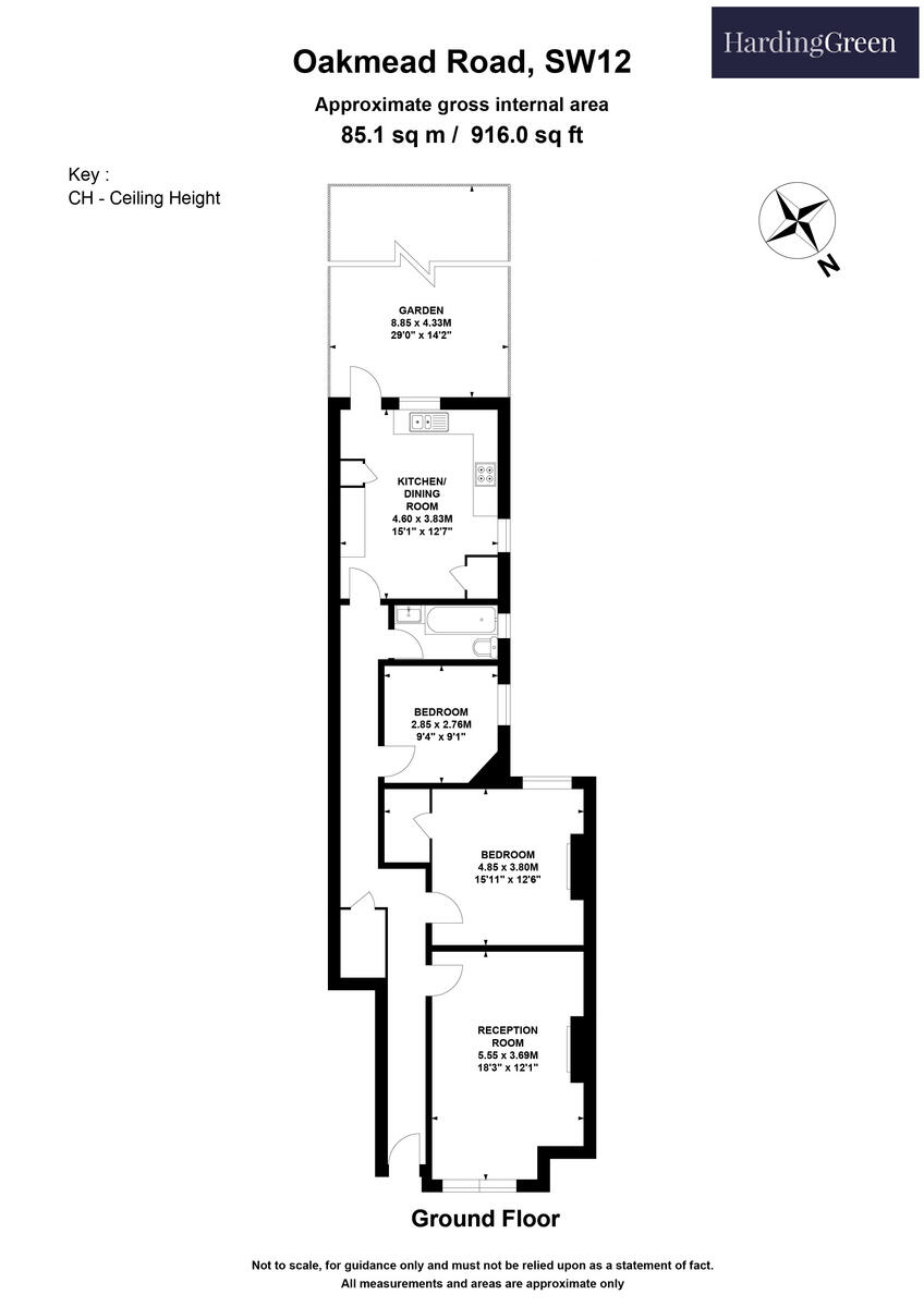
- Sqft (est)
- 916.01
The heatmap indicates the level of crime in the area. The color of the heatmap indicates the crime severity and recency.
Metrics Year-on-Year
- Average area value
- 1,130,667.00 £Increased by 13.32 %
- Est sale value
- 1,211,881.23 £Increased by 91.74 %
- Average area rental value
- 2,767.00 £/moIncreased by 5.85 %
- Est letting value
- 2,748.03 £/moIncreased by 200.00 %
- Est rental Yield
- 2.94 %Decreased by 6.37 %
- Crime Rate
- 45.00 %Unchanged by 0.00 %
Agent Activity
Harding Green created the listing.
Nearby Schools
| Name | Type | Ofsted | Distance |
|---|---|---|---|
| Ravenstone Primary School | Academy Converter | 0.23 KM | |
| Eveline Day School | Other Independent School | 0.41 KM | |
| Trinity St Mary'S Cofe Primary School | Voluntary Aided School | Good | 0.41 KM |
| Chestnut Grove School | Academy Converter | Good | 0.50 KM |
| Balham Nursery School | Local Authority Nursery School | Outstanding | 0.53 KM |
Images
Nearby Streets
| Name | Average Price | Average Sqft | Distance |
|---|---|---|---|
| Falcon Mews | £ 699,950 | 0 | 0.00 KM |
| Oakmead Road | £ 0 | 0 | 0.00 KM |
| Oakmead Mews | £ 0 | 0 | 0.00 KM |
| Norgrove Street | £ 0 | 0 | 0.00 KM |
| Caister Mews | £ 0 | 0 | 0.00 KM |
Nearby Transport
| Name | NLC | TLC | Distance |
|---|---|---|---|
| Balham | 5399 | BAL | 0.13 KM |
| Wandsworth Common | 5395 | WSW | 1.36 KM |
| Tooting | 5389 | TOO | 2.71 KM |
| Streatham Hill | 5435 | SRH | 2.75 KM |
| Streatham | 5383 | STE | 2.88 KM |
Nearby Listings
| Address | Price | Type | Score | Distance |
|---|---|---|---|---|
| Oakmead Road, London, SW12 | £ 750,000 | BUY | 7 / 10 | 0.00 KM |
| Oakmead Road, Balham | £ 650,000 | BUY | Unknown | 0.01 KM |
| Oakmead Road, Balham, London, SW12 | £ 650,000 | BUY | Unknown | 0.01 KM |
| Oakmead Road, London, SW12 | £ 725,000 | BUY | 7 / 10 | 0.03 KM |
| Oakmead Road, Balham | £ 650,000 | BUY | Unknown | 0.04 KM |
Nearby Properties
| Address | Price | Distance |
|---|---|---|
| 72a Oakmead Road | £ 177,000 | 0.04 KM |
| 58a Oakmead Road | £ 105,000 | 0.04 KM |
| 70c Oakmead Road | £ 445,000 | 0.04 KM |
| 70 Oakmead Road | £ 530,000 | 0.04 KM |
| 50a Oakmead Road | £ 285,000 | 0.04 KM |