Plot 9, Coles Yard, Stuckton, Fordingbridge, Hampshire, SP6
Woolley & Wallis logo

Plot 9, Coles Yard, Stuckton, Fordingbridge, Hampshire, SP6

By Woolley & Wallis

£ 425,000

Reviews

2 out of 5 stars

Woolley & Wallis says ..

PLOT 9 - A beautifully finished 2-bedroom end-of terrace home within a stylish courtyard style development with far-reaching countryside views in the peaceful hamlet of Stuckton.

Property Oracle says ..

This property is a 2-bedroom, 1-bathroom house located in Stuckton, Fordingbridge, within the desirable New Forest National Park. The images suggest a modern, newly constructed or recently renovated home with a contemporary interior design and finishes. The open-plan living area and bi-fold doors provide a spacious and bright feel. The kitchen is well appointed, and the bedrooms, while relatively small, appear functional. However, a key limitation is the very small plot size, practically lacking any substantial garden space. This is a significant consideration, given the generally rural nature of the location. While the proximity to several good schools is advantageous, the absence of nearby public transportation may represent a constraint for certain buyers. The list price appears relatively reasonable in relation to the area, but further comparable sales data or details about the plot and house inclusions would be necessary to make a more definitive evaluation of its value. Overall, this property represents a modern, well-presented home in a desirable location but is significantly constrained by its lack of land.

Therefore, we give this property 5 / 10. *Disclaimer: This is our option and does constitute a recommendation or financial advice. Do your own research. *

Price
7
Condition
8
Location
6
Land
2
Bedrooms
2
Bathrooms
1
Sqft (est)
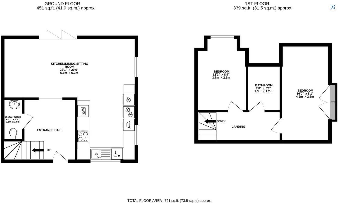
791.00

The heatmap indicates the level of crime in the area. The color of the heatmap indicates the crime severity and recency.

Metrics Year-on-Year

Average area value
471,111.00 £
Increased by 12.11 %
from 420,238.00 £
Est sale value
426,349.00 £
Increased by 34.75 %
from 316,400.00 £
Average area rental value
1,283.00 £/mo
Decreased by 19.91 %
from 1,602.00 £/mo
Est letting value
791.00 £/mo
Unchanged by 0.00 %
from 791.00 £/mo
Est rental Yield
3.27 %
Decreased by 28.45 %
from 4.57 %
Crime Rate
0.00 %
from 0.00 %

Agent Activity

  • Woolley & Wallis created the listing.

Nearby Schools

NameTypeOfstedDistance
Hyde Church Of England Primary SchoolVoluntary Controlled SchoolGood1.54 KM
The Burgate School And Sixth FormAcademy ConverterGood2.63 KM
The Bridges And Pathways Children'S CentreChildren's Centre2.83 KM
Fordingbridge Infant SchoolCommunity SchoolGood2.88 KM
Fordingbridge Junior SchoolCommunity SchoolGood2.88 KM

Images

Picture No. 11 Picture No. 05 Picture No. 08 Picture No. 07 Picture No. 06 Picture No. 10 Picture No. 09 Picture No. 04 Picture No. 03 Picture No. 02 Picture No. 12 Picture No. 13 Picture No. 14 Picture No. 15

Nearby Streets

NameAverage PriceAverage SqftDistance
Hyde Lane £ 000.00 KM
Bickton £ 888,33300.00 KM
Bickton Mill £ 000.00 KM
The Paddock £ 850,00000.00 KM

Nearby Listings

AddressPriceTypeScoreDistance
Plot 9, Coles Yard, Stuckton, Fordingbridge, Hampshire, SP6 £ 425,000BUY5 / 100.00 KM
Plot 8, Coles Yard, Stuckton, Fordingbridge, Hampshire, SP6 £ 475,000BUY5 / 100.00 KM
Stuckton, Fordingbridge, SP6 £ 450,000BUY7 / 100.01 KM
Stuckton, Fordingbridge, SP6 £ 395,000BUY7 / 100.01 KM
Cole Yard, Stuckton, SP6 £ 425,000BUYUnknown0.07 KM

Nearby Properties

AddressPriceDistance
3 The Cottages £ 245,0000.36 KM
2 The Cottages £ 295,0000.36 KM
Hyde Lane Cottage £ 550,0000.49 KM
Bray Cottage £ 400,0000.49 KM
Walnut Cottage £ 499,0000.49 KM