East of Exe Ltd says ..
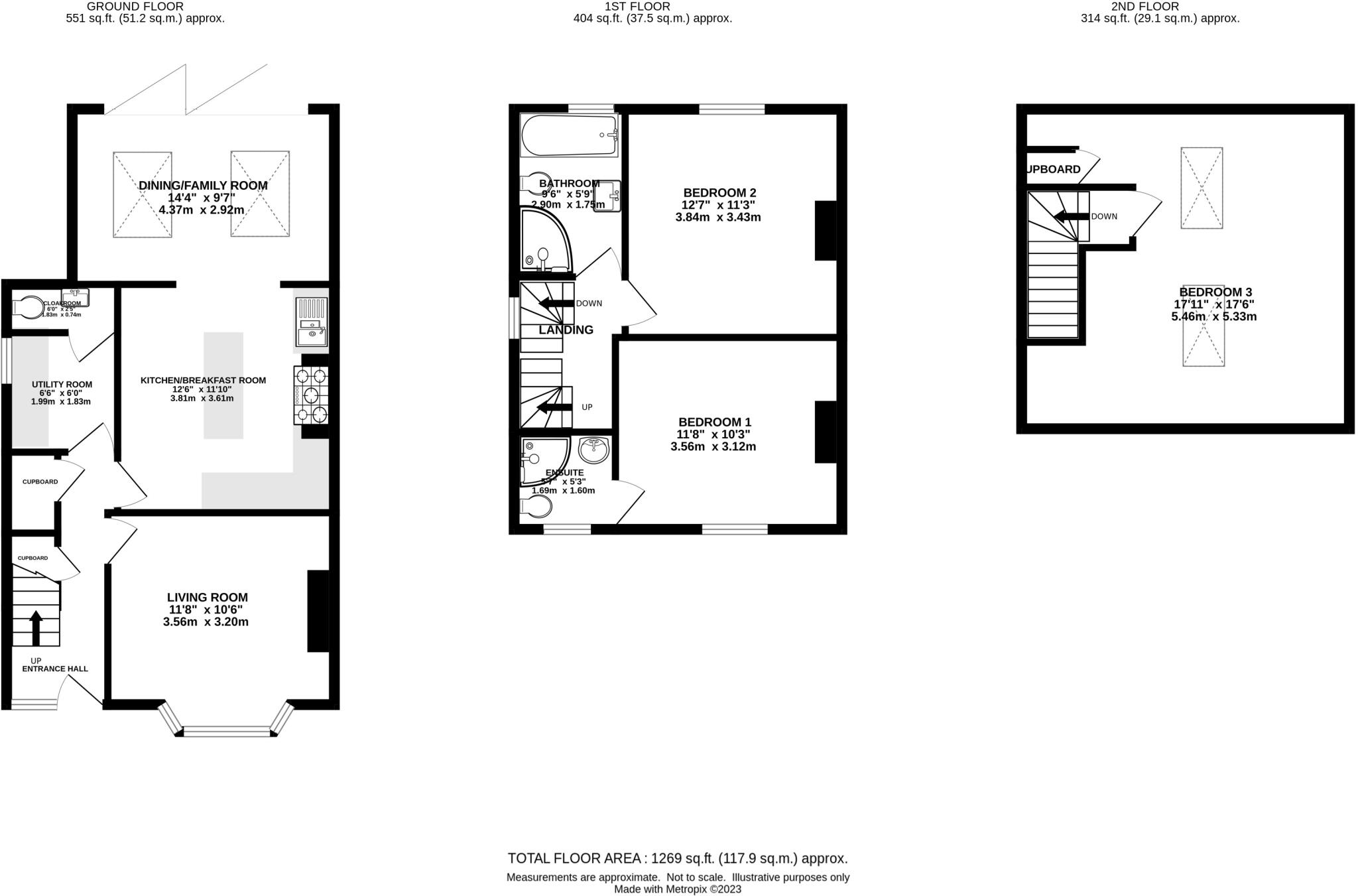
Elegant and spacious period home located in the heart of Topsham, thoughtfully updated by the current owner for modern living while retaining its original charm. Set over three floors, this beautifully presented property offers light-filled interiors, high ceilings, and quality finishes throughou...
Property Oracle says ..
Therefore, we give this property 7 / 10. *Disclaimer: This is our option and does constitute a recommendation or financial advice. Do your own research. *
- Price
- 7
- Condition
- 8
- Location
- 9
- Land
- 7
- Bedrooms
- 3
- Bathrooms
- 2
- Sqft (est)
- 1,138.59
The heatmap indicates the level of crime in the area. The color of the heatmap indicates the crime severity and recency.
Metrics Year-on-Year
- Average area value
- 528,231.00 £Increased by 3.23 %
- Est sale value
- 729,836.19 £Increased by 28.71 %
- Average area rental value
- 1,833.00 £/moIncreased by 1.05 %
- Est letting value
- 2,277.18 £/moIncreased by 100.00 %
- Est rental Yield
- 4.16 %Decreased by 2.12 %
- Crime Rate
- 91.00 %Unchanged by 0.00 %
from 511,722.00 £
from 567,017.82 £
from 1,814.00 £/mo
from 1,138.59 £/mo
from 4.25 %
from 91.00 %
Agent Activity
East of Exe Ltd created the listing.
Nearby Schools
| Name | Type | Ofsted | Distance |
|---|---|---|---|
| The Topsham School | Community School | Good | 0.57 KM |
| Trinity Church Of England Voluntary Aided Primary And Nursery School | Voluntary Aided School | 2.13 KM | |
| Lady Seaward'S Church Of England Primary School | Academy Converter | Outstanding | 2.64 KM |
| Clyst St Mary Primary School | Community School | Good | 2.94 KM |
| Clyst Vale Children'S Centre | Children's Centre | 2.94 KM |
Images
Nearby Streets
| Name | Average Price | Average Sqft | Distance |
|---|---|---|---|
| Swains Court | £ 650,000 | 0 | 0.00 KM |
| Grove Hill | £ 0 | 0 | 0.00 KM |
| Strand View | £ 1,200,000 | 0 | 0.00 KM |
| Hamilton Road | £ 450,000 | 0 | 0.00 KM |
| Riverside Road | £ 0 | 0 | 0.00 KM |
Nearby Transport
| Name | NLC | TLC | Distance |
|---|---|---|---|
| Topsham | 5758 | TOP | 0.13 KM |
| Newcourt | 9589 | NCO | 2.42 KM |
| Exton | 5760 | EXN | 2.90 KM |
| Digby And Sowton | 5753 | DIG | 3.38 KM |
| Lympstone Commando | 5762 | LYC | 3.62 KM |
Nearby Listings
| Address | Price | Type | Score | Distance |
|---|---|---|---|---|
| Parkfield Road, Topsham | £ 675,000 | BUY | 7 / 10 | 0.00 KM |
| Parkfield Road, Topsham | £ 410,000 | BUY | 7 / 10 | 0.00 KM |
| Topsham, Exeter | £ 495,000 | BUY | 5 / 10 | 0.03 KM |
| Topsham, Devon | £ 950,000 | BUY | 7 / 10 | 0.04 KM |
| Armada Court, Parkfield Road, Topsham | £ 165,000 | BUY | 7 / 10 | 0.05 KM |
Nearby Properties
| Address | Price | Distance |
|---|---|---|
| 22 Parkfield Road | £ 370,000 | 0.01 KM |
| 15 Parkfield Road | £ 215,000 | 0.01 KM |
| 6 Parkfield Road | £ 425,000 | 0.01 KM |
| 4 Parkfield Road | £ 380,000 | 0.01 KM |
| 1 Parkfield Road | £ 355,000 | 0.01 KM |