Wood Vale, Forest Hill, SE23
By Harvey & Wheeler
£ 2,750,000
Reviews
4 out of 5 stars
Harvey & Wheeler says ..
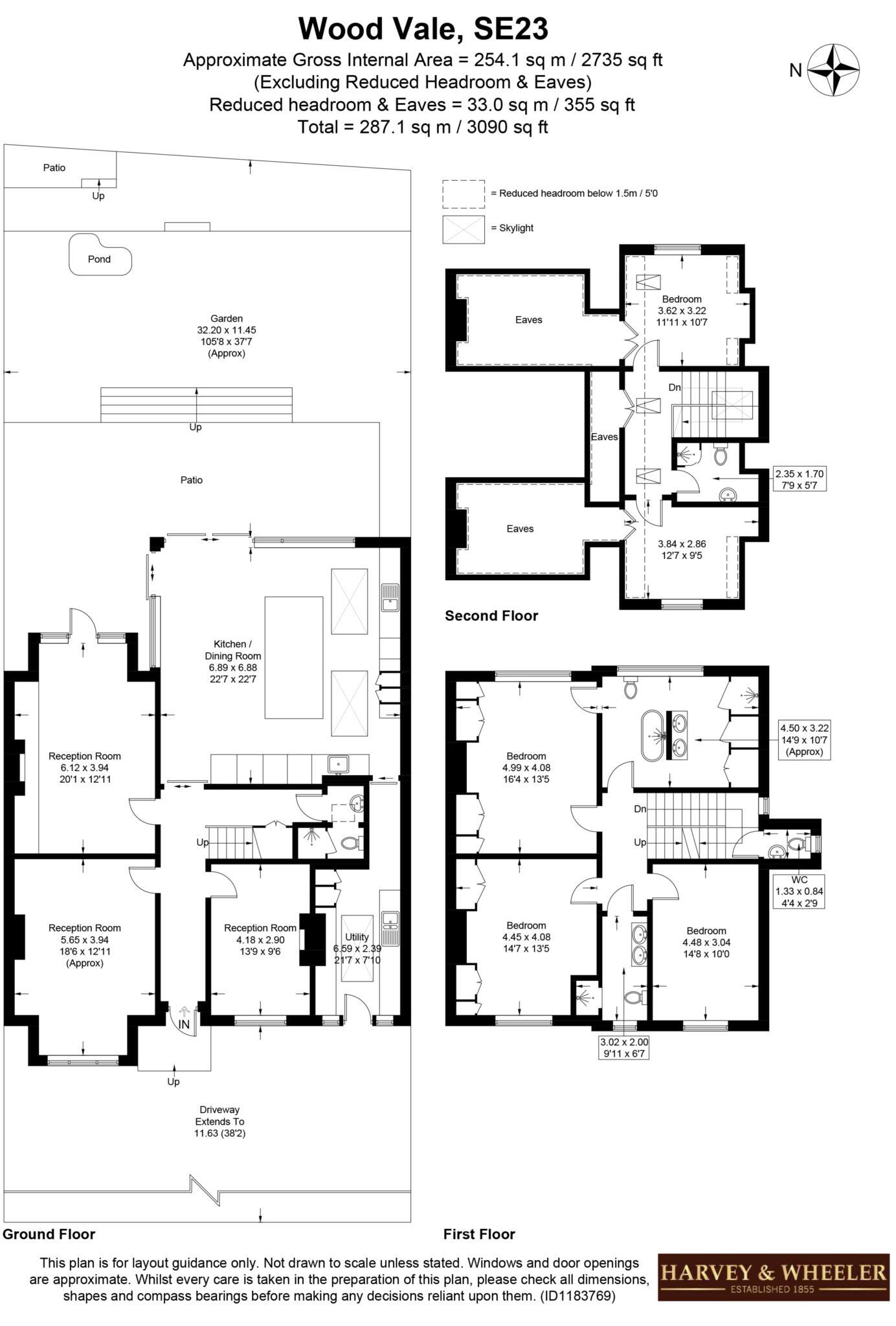
A very large double fronted late Victorian family house with extensive accommodation, off street parking for several cars and a spectacular rear garden.
Property Oracle says ..
This property is a 5 bedroom, 3 bathroom detached house located in the desirable Dulwich Wood area of Forest Hill, South East London. The property has been recently renovated to a high standard, boasting a modern, open-plan kitchen/dining area with bi-fold doors leading to a large garden. The property also benefits from a good-sized plot with ample space for outdoor entertaining. The location is excellent, with good access to local schools, transportation links, and shops. The average price per sqft in the area is £262, but this property is listed at a significantly higher price per sqft, reflecting its size, condition, and location. While the list price is high, the property appears to offer good value for money considering the overall quality and desirability of the area.
Therefore, we give this property 8 / 10. *Disclaimer: This is our option and does constitute a recommendation or financial advice. Do your own research. *
- Price
- 7
- Condition
- 10
- Location
- 9
- Land
- 9
- Bedrooms
- 5
- Bathrooms
- 3
- Sqft (est)
- 2,471.00
- Lot (est)
- 3,090.00
The heatmap indicates the level of crime in the area. The color of the heatmap indicates the crime severity and recency.
Metrics Year-on-Year
- Average area value
- 806,250.00 £Increased by 8.35 %
- Est sale value
- 2,048,459.00 £Increased by 40.03 %
- Average area rental value
- 2,379.00 £/moIncreased by 1.23 %
- Est letting value
- 4,942.00 £/moIncreased by 100.00 %
- Est rental Yield
- 3.54 %Decreased by 6.60 %
- Crime Rate
- 0.00 %
Agent Activity
Harvey & Wheeler created the listing.
Nearby Schools
| Name | Type | Ofsted | Distance |
|---|---|---|---|
| Horniman Primary School | Community School | Good | 0.47 KM |
| Eliot Bank Primary School | Community School | Outstanding | 0.80 KM |
| Goodrich Community Primary School | Community School | Good | 0.82 KM |
| Eliot Bank Children'S Centre | Children's Centre | 0.89 KM | |
| Fairlawn Primary School | Community School | Good | 1.05 KM |
Images
Nearby Streets
| Name | Average Price | Average Sqft | Distance |
|---|---|---|---|
| Horniman Nature Trail | £ 499,995 | 0 | 0.00 KM |
| Dawson's Hill Footpath (Overhill Road to Bredinghurst) | £ 325,000 | 0 | 0.00 KM |
| Dawson's Hill Footpath (Dunstan's Road to Ladlands) | £ 0 | 0 | 0.00 KM |
| Grizedale Terrace | £ 383,333 | 0 | 0.00 KM |
| Firemans Alley | £ 366,000 | 0 | 0.00 KM |
Nearby Transport
| Name | NLC | TLC | Distance |
|---|---|---|---|
| Forest Hill | 5362 | FOH | 1.26 KM |
| Honor Oak Park | 5418 | HPA | 2.09 KM |
| Sydenham | 5437 | SYD | 2.14 KM |
| Sydenham Hill | 5085 | SYH | 2.25 KM |
| East Dulwich | 5358 | EDW | 2.70 KM |
Nearby Listings
| Address | Price | Type | Score | Distance |
|---|---|---|---|---|
| Wood Vale, Forest Hill, SE23 | £ 2,750,000 | BUY | 8 / 10 | 0.00 KM |
| Wood Vale, Forest Hill, London, SE23 | £ 600,000 | BUY | Unknown | 0.02 KM |
| Wood Vale, London, SE23 | £ 1,100,000 | BUY | 7 / 10 | 0.06 KM |
| Wood Vale, Forest Hill | £ 340,000 | BUY | 6 / 10 | 0.06 KM |
| Wood Vale, Forest Hill, SE23 | £ 475,000 | BUY | 7 / 10 | 0.07 KM |
Nearby Properties
| Address | Price | Distance |
|---|---|---|
| 20 Wood Vale | £ 620,000 | 0.09 KM |
| 30 Wood Vale | £ 490,000 | 0.09 KM |
| 42 Wood Vale | £ 1,250,000 | 0.09 KM |
| 16 Wood Vale | £ 432,000 | 0.10 KM |
| 6 Wood Vale | £ 820,000 | 0.10 KM |