IAD says ..
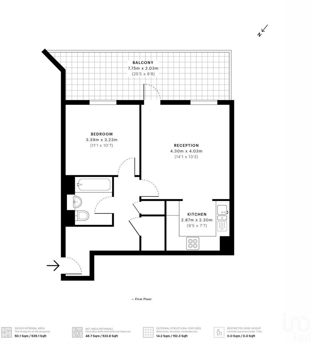
(Agent Ref: ZY01) A superb and spacious one bedroom apartment located on the 1st floor of Ares Court, situated within the popular Homer Drive riverside development in London E14
Property Oracle says ..
This is a one-bedroom apartment located in Island Gardens, London. The property is in reasonable condition, although some aspects may benefit from modernisation. The property has a small patio area, but no significant garden or land. The list price of £400,000 seems reasonable when compared to the average price in the area. The property is located within 1.5km of 5 schools, one of which is rated as ‘Good’ by Ofsted. The property is also located close to local amenities and transport links.
Therefore, we give this property 6 / 10. *Disclaimer: This is our option and does constitute a recommendation or financial advice. Do your own research. *
- Price
- 7
- Condition
- 6
- Location
- 7
- Land
- 4
- Bedrooms
- 1
- Bathrooms
- 1
The heatmap indicates the level of crime in the area. The color of the heatmap indicates the crime severity and recency.
Metrics Year-on-Year
- Average area value
- 508,333.00 £Decreased by 5.19 %
- Average area rental value
- 2,031.00 £/moIncreased by 42.63 %
- Est rental Yield
- 4.79 %Increased by 50.16 %
- Crime Rate
- 2.00 %Unchanged by 0.00 %
Agent Activity
IAD created the listing.
Nearby Schools
| Name | Type | Ofsted | Distance |
|---|---|---|---|
| St Edmund'S Catholic School | Voluntary Aided School | Good | 0.23 KM |
| Arnhem Wharf Primary School | Community School | Good | 0.50 KM |
| Harbinger Primary School | Community School | Requires improvement | 0.57 KM |
| Seven Mills Primary School | Community School | Good | 0.79 KM |
| South Quay College | Free Schools Alternative Provision | 1.02 KM |
Images
Nearby Streets
| Name | Average Price | Average Sqft | Distance |
|---|---|---|---|
| Millwall Slipway | £ 0 | 0 | 0.00 KM |
| Old Bellgate Place | £ 0 | 0 | 0.00 KM |
| Deptford Strand | £ 325,000 | 0 | 0.00 KM |
| Watergate Steps | £ 0 | 0 | 0.00 KM |
| Barnes Terrace | £ 0 | 0 | 0.00 KM |
Nearby Transport
| Name | NLC | TLC | Distance |
|---|---|---|---|
| Deptford | 5145 | DEP | 1.38 KM |
| Greenwich | 5146 | GNW | 1.94 KM |
| St Johns | 5059 | SAJ | 2.44 KM |
| New Cross Gate | 5345 | NXG | 2.47 KM |
| Surrey Quays | 1083 | SQE | 2.51 KM |
Nearby Listings
| Address | Price | Type | Score | Distance |
|---|---|---|---|---|
| Homer Drive, London, E14 | £ 400,000 | BUY | 6 / 10 | 0.00 KM |
| Homer Drive, Canary Wharf | £ 1,000,000 | BUY | Unknown | 0.01 KM |
| Homer Drive, Canary Wharf | £ 1,100,000 | BUY | 7 / 10 | 0.01 KM |
| Cyclops Mews, Isle Of Dogs, London, E14 | £ 675,000 | BUY | 5 / 10 | 0.02 KM |
| Neptune Court, Homer Drive, E14 | £ 625,000 | BUY | 6 / 10 | 0.03 KM |
Nearby Properties
| Address | Price | Distance |
|---|---|---|
| 1 Cyclops Mews | £ 305,000 | 0.04 KM |
| 20 Cyclops Mews | £ 297,000 | 0.04 KM |
| 2 Cyclops Mews | £ 518,000 | 0.04 KM |
| 19 Cyclops Mews | £ 223,000 | 0.04 KM |
| 12 Cyclops Mews | £ 295,000 | 0.04 KM |