Broxholm Road, West Norwood
By Oaks Estate Agents
£ 475,000
Reviews
3 out of 5 stars
Oaks Estate Agents says ..
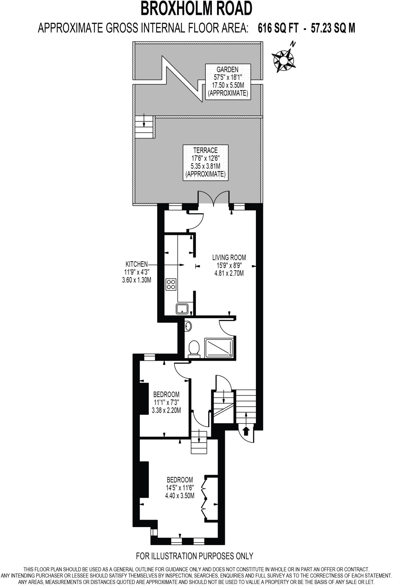
Oaks Estate Agents are delighted to present a superb two bedroom ground floor Edwardian flat, offering generous living space, modern finishes, and exceptional outdoor areas on one of West Norwood’s most sought after roads.
Property Oracle says ..
This is a two-bedroom apartment located on Broxholm Road in West Norwood, London. The property features a modern bathroom, a garden with a decked area, and is situated in a residential area with access to local schools and transportation. While the apartment is in reasonable condition, some areas could benefit from modernisation. The asking price of £475,000 seems reasonable given the location, size (1,694.93 sqft), and amenities.
Therefore, we give this property 6 / 10. *Disclaimer: This is our option and does constitute a recommendation or financial advice. Do your own research. *
- Price
- 7
- Condition
- 7
- Location
- 7
- Land
- 6
- Bedrooms
- 2
- Bathrooms
- 1
- Sqft (est)
- 1,694.93
The heatmap indicates the level of crime in the area. The color of the heatmap indicates the crime severity and recency.
Metrics Year-on-Year
- Average area value
- 696,167.00 £Decreased by 17.95 %
- Est sale value
- 1,055,941.39 £Decreased by 14.42 %
- Average area rental value
- 2,133.00 £/moDecreased by 1.25 %
- Est letting value
- 1,694.93 £/moUnchanged by 0.00 %
- Est rental Yield
- 3.68 %Increased by 20.26 %
- Crime Rate
- 4.00 %Unchanged by 0.00 %
Agent Activity
Oaks Estate Agents created the listing.
Nearby Schools
| Name | Type | Ofsted | Distance |
|---|---|---|---|
| Hitherfield Primary School | Community School | Good | 0.36 KM |
| Hitherfield Primary School & Children'S Centre (P2) | Children's Centre | 0.39 KM | |
| Streatham Wells Primary School | Community School | Good | 0.76 KM |
| Dunraven School | Academy Converter | Outstanding | 0.81 KM |
| Julian'S School | Foundation School | Good | 0.82 KM |
Images
Nearby Streets
| Name | Average Price | Average Sqft | Distance |
|---|---|---|---|
| Yeomans Close | £ 0 | 0 | 0.00 KM |
| Knollys Road | £ 390,000 | 0 | 0.00 KM |
| Caroline Close | £ 0 | 0 | 0.00 KM |
| Neil Wates Crescent | £ 375,000 | 0 | 0.00 KM |
| Tredwell Road | £ 0 | 0 | 0.00 KM |
Nearby Transport
| Name | NLC | TLC | Distance |
|---|---|---|---|
| West Norwood | 5438 | WNW | 0.97 KM |
| Tulse Hill | 5390 | TUH | 1.01 KM |
| Streatham Hill | 5435 | SRH | 1.70 KM |
| Streatham | 5383 | STE | 2.33 KM |
| Herne Hill | 5066 | HNH | 2.39 KM |
Nearby Listings
| Address | Price | Type | Score | Distance |
|---|---|---|---|---|
| Broxholm Road, West Norwood | £ 475,000 | BUY | 6 / 10 | 0.00 KM |
| Broxholm Road, London, SE27 | £ 350,000 | BUY | 6 / 10 | 0.02 KM |
| Broxholm Road, London, SE27 | £ 400,000 | BUY | Unknown | 0.04 KM |
| Broxholm Road, West Norwood, London, SE27 | £ 575,000 | BUY | 7 / 10 | 0.07 KM |
| Broxholm Road, West Norwood, London, SE27 | £ 1,350,000 | BUY | 6 / 10 | 0.10 KM |
Nearby Properties
| Address | Price | Distance |
|---|---|---|
| 127 Broxholm Road | £ 117,500 | 0.01 KM |
| 111 Broxholm Road | £ 230,000 | 0.01 KM |
| 141 Broxholm Road | £ 757,500 | 0.01 KM |
| 139 Broxholm Road | £ 175,000 | 0.01 KM |
| 71b - 71c Broxholm Road | £ 40,000 | 0.01 KM |