Yopa says ..
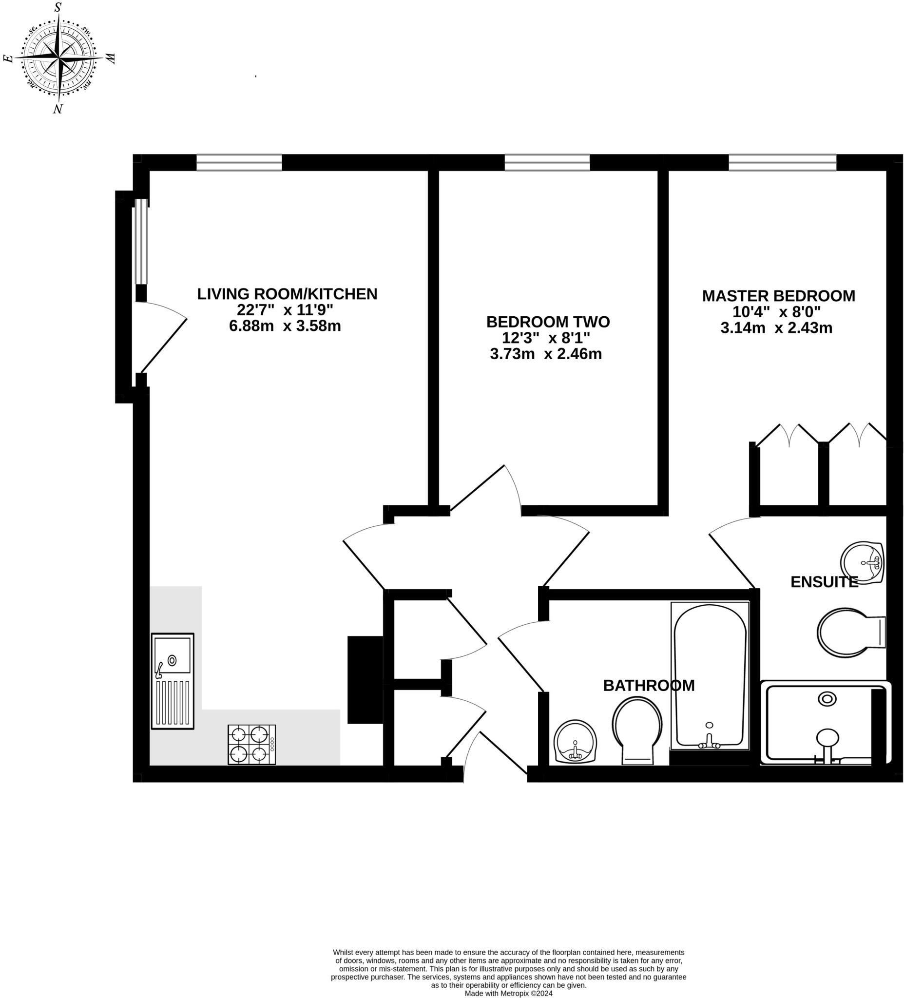
This SPACIOUS APARTMENT is located in a popular development in West Reading close to local amenities. It has an OPEN PLAN SITTING/KITCHEN AREA with a Juliet balcony and a full-length window, two double bedrooms, an en suite to the master bedroom, a lift to all floors, and UNDERCROFT PARKING.
Property Oracle says ..
This two-bedroom, two-bathroom apartment in Moulsford Mews, Reading, is marketed at £210,000. The property is conveniently located near Reading West train station, improving commute options. Nearby schools also positively influence its family appeal. Based on images, the interior seems well-maintained and modern. The property’s precise location within Reading and the nature of local amenities aren’t explicitly detailed. The lack of garden space is a key consideration. While the price seems reasonable relative to similar listings in the area, a complete assessment requires more information on the property’s size and the exact condition of the interiors, not fully captured in images. Overall, the apartment represents a potential option for buyers seeking a well-connected home in Reading, although the limited land and lack of full detail warrant further inspection.
Therefore, we give this property 5 / 10. *Disclaimer: This is our option and does constitute a recommendation or financial advice. Do your own research. *
- Price
- 7
- Condition
- 6
- Location
- 7
- Land
- 1
- Bedrooms
- 2
- Bathrooms
- 2
- Sqft (est)
- 782.21
The heatmap indicates the level of crime in the area. The color of the heatmap indicates the crime severity and recency.
Metrics Year-on-Year
- Average area value
- 317,000.00 £Increased by 3.08 %
- Est sale value
- 380,154.06 £Increased by 24.94 %
- Average area rental value
- 1,341.00 £/moIncreased by 9.47 %
- Est letting value
- 1,564.42 £/moIncreased by 100.00 %
- Est rental Yield
- 5.08 %Increased by 6.28 %
- Crime Rate
- 20.00 %Unchanged by 0.00 %
Agent Activity
Yopa created the listing.
Nearby Schools
| Name | Type | Ofsted | Distance |
|---|---|---|---|
| Battle Primary Academy | Academy Sponsor Led | Good | 0.51 KM |
| Cranbury College | Academy Alternative Provision Converter | 0.61 KM | |
| Wilson Primary School | Community School | Good | 0.65 KM |
| St Edward'S Prep | Other Independent School | 0.81 KM | |
| Oxford Road Community School | Community School | Good | 1.23 KM |
Images
Nearby Streets
| Name | Average Price | Average Sqft | Distance |
|---|---|---|---|
| Richmond Road | £ 350,000 | 0 | 0.00 KM |
| Thornton Road | £ 0 | 0 | 0.00 KM |
| Suffolk Road | £ 0 | 0 | 0.00 KM |
| Connaught Road | £ 0 | 0 | 0.00 KM |
| Monck Court | £ 0 | 0 | 0.00 KM |
Nearby Transport
| Name | NLC | TLC | Distance |
|---|---|---|---|
| Reading West | 3160 | RDW | 0.90 KM |
| Reading | 3149 | RDG | 2.86 KM |
| Tilehurst | 3154 | TLH | 3.84 KM |
| Theale | 3153 | THE | 8.98 KM |
| Earley | 5694 | EAR | 9.02 KM |
Nearby Listings
| Address | Price | Type | Score | Distance |
|---|---|---|---|---|
| Moulsford Mews, Reading, RG30 | £ 210,000 | BUY | 5 / 10 | 0.00 KM |
| Englefield House, Moulsford Mews, Reading, Berkshire, RG30 | £ 200,000 | BUY | 6 / 10 | 0.00 KM |
| Moulsford Mews, Reading, Berkshire, RG30 | £ 200,000 | BUY | Unknown | 0.00 KM |
| Moulsford Mews, Reading, Berkshire, RG30 | £ 220,000 | BUY | 5 / 10 | 0.00 KM |
| Moulsford Mews, Reading, RG30 | £ 215,000 | BUY | 5 / 10 | 0.02 KM |
Nearby Properties
| Address | Price | Distance |
|---|---|---|
| 154 Curzon Street | £ 250,000 | 0.04 KM |
| 2 Battle Square | £ 250,000 | 0.11 KM |
| 14 Battle Square | £ 330,000 | 0.11 KM |
| 46 Battle Square | £ 374,000 | 0.11 KM |
| 26 Battle Square | £ 249,995 | 0.11 KM |