Leamington Road, Blackburn, BB2
By Stones Young Estate and Letting Agents
£ 145,000
Reviews
2 out of 5 stars
Stones Young Estate and Letting Agents says ..
THREE BEDROOM TERRACED IN REVIDGE WITH NO CHAIN DELAY! Set in this desirable location stands this well appointed three bedroom terraced property. This property holds huge potential to be a wonderful home and must be viewed to appreciate the opportunity on offer here.
Property Oracle says ..
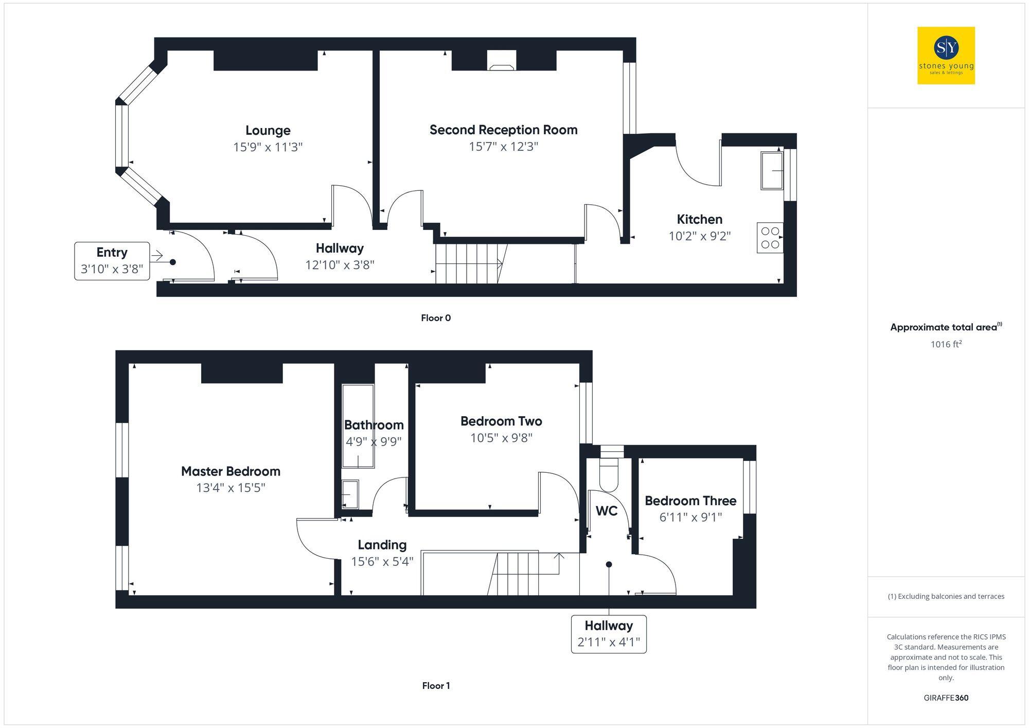
This is a three-bedroom terraced property on Leamington Road, Blackburn. It offers 1,016 sqft of living space. While the property requires renovation, its location provides convenient access to nearby schools and transportation. The property includes a garden. The asking price of £145,000 appears reasonable given the size and location, especially considering the need for modernization. This property presents an opportunity for buyers looking to add value through renovation.
Therefore, we give this property 5 / 10. *Disclaimer: This is our option and does constitute a recommendation or financial advice. Do your own research. *
- Price
- 7
- Condition
- 4
- Location
- 6
- Land
- 5
- Bedrooms
- 3
- Bathrooms
- 1
- Sqft (est)
- 1,016.00
The heatmap indicates the level of crime in the area. The color of the heatmap indicates the crime severity and recency.
Metrics Year-on-Year
- Average area value
- 241,404.00 £Decreased by 0.18 %
- Est sale value
- 262,128.00 £Increased by 6.17 %
- Average area rental value
- 1,020.00 £/moDecreased by 42.28 %
- Est letting value
- 1,016.00 £/moUnchanged by 0.00 %
- Est rental Yield
- 5.07 %Decreased by 42.19 %
- Crime Rate
- 13.00 %Unchanged by 0.00 %
Agent Activity
Stones Young Estate and Letting Agents created the listing.
Nearby Schools
| Name | Type | Ofsted | Distance |
|---|---|---|---|
| St Silas'S Cofe Primary School | Academy Sponsor Led | 0.13 KM | |
| Sacred Heart Roman Catholic Primary School Blackburn | Voluntary Aided School | Requires improvement | 0.16 KM |
| Dar Ul Madinah | Other Independent School | Inadequate | 0.42 KM |
| Wensley Fold Children'S Centre | Children's Centre | 0.58 KM | |
| Wensley Fold Cofe Primary Academy | Academy Converter | 0.70 KM |
Images
Nearby Streets
| Name | Average Price | Average Sqft | Distance |
|---|---|---|---|
| Granville Road | £ 0 | 0 | 0.00 KM |
| Leamington Road | £ 210,000 | 0 | 0.00 KM |
| Merlin Road | £ 0 | 0 | 0.00 KM |
| Granville Road | £ 210,000 | 0 | 0.00 KM |
| Billinge Close | £ 320,000 | 0 | 0.00 KM |
Nearby Transport
| Name | NLC | TLC | Distance |
|---|---|---|---|
| Mill Hill (Lancs) | 2750 | MLH | 2.03 KM |
| Cherry Tree | 2573 | CYT | 2.73 KM |
| Blackburn | 2737 | BBN | 2.94 KM |
| Ramsgreave And Wilpshire | 2734 | RGW | 4.16 KM |
| Pleasington | 2752 | PLS | 5.01 KM |
Nearby Listings
| Address | Price | Type | Score | Distance |
|---|---|---|---|---|
| Leamington Road, Blackburn, BB2 | £ 145,000 | BUY | 5 / 10 | 0.00 KM |
| Lynwood Road, Blackburn | £ 160,000 | BUY | 4 / 10 | 0.09 KM |
| Leamington Road, Revidge, Blackburn, Lancashire, BB2 | £ 90,000 | BUY | Unknown | 0.10 KM |
| St. Silas's Road, Blackburn, Lancashire, BB2 | £ 270,000 | BUY | 5 / 10 | 0.11 KM |
| Lynwood Road, Blackburn, Lancashire, BB2 | £ 159,999 | BUY | 6 / 10 | 0.15 KM |
Nearby Properties
| Address | Price | Distance |
|---|---|---|
| 141 Leamington Road | £ 112,000 | 0.04 KM |
| 112 Leamington Road | £ 85,000 | 0.04 KM |
| 155 Leamington Road | £ 133,000 | 0.04 KM |
| 139 Leamington Road | £ 32,000 | 0.04 KM |
| 110 Leamington Road | £ 86,000 | 0.04 KM |