Woolmers Lane, Bickington, Barnstaple, Devon, EX31
By Jackson-Stops
£ 335,000
Reviews
3 out of 5 stars
Jackson-Stops says ..
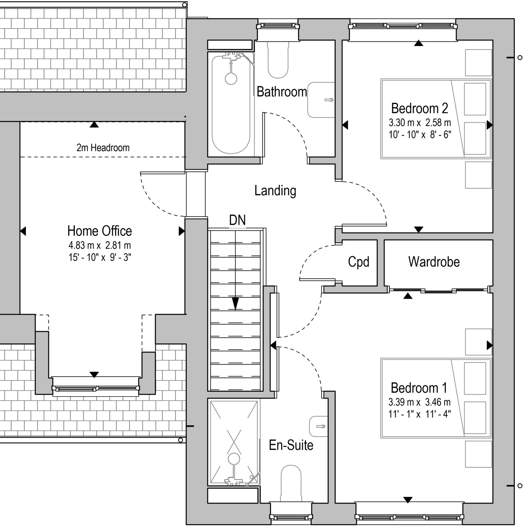
Nightingale – A versatile semi-detached property offering two/three-bedroom accommodation with off road parking and a garage. The property boasts either a third bedroom above the garage, home office or studio which could be used for a variety of uses. We are extremely excited to ...
Property Oracle says ..
This is a modern, well-presented semi-detached property located in the suburban area of Bickington, near Barnstaple. The house features three bedrooms and two bathrooms, making it suitable for families or couples. The interior is in excellent condition, with modern fixtures and fittings. The property also benefits from a garden, providing outdoor space. The location offers a balance of rural and urban living, with access to local amenities and transportation links. The asking price appears reasonable given the property’s condition, location, and features.
Therefore, we give this property 7 / 10. *Disclaimer: This is our option and does constitute a recommendation or financial advice. Do your own research. *
- Price
- 8
- Condition
- 9
- Location
- 7
- Land
- 6
- Bedrooms
- 3
- Bathrooms
- 2
The heatmap indicates the level of crime in the area. The color of the heatmap indicates the crime severity and recency.
Metrics Year-on-Year
- Average area value
- 661,000.00 £Increased by 29.29 %
- Average area rental value
- 2,410.00 £/moIncreased by 120.90 %
- Est rental Yield
- 4.38 %Increased by 71.09 %
- Crime Rate
- 11.00 %Unchanged by 0.00 %
Agent Activity
Jackson-Stops created the listing.
Nearby Schools
| Name | Type | Ofsted | Distance |
|---|---|---|---|
| Roundswell Community Primary Academy | Free Schools | 0.84 KM | |
| The Shoreline Academy | Academy Alternative Provision Sponsor Led | 1.31 KM | |
| Sticklepath Community Primary Academy | Academy Converter | 1.69 KM | |
| Barnstaple (Sticklepath) | Children's Centre | 1.83 KM | |
| Petroc | Further Education | Good | 3.13 KM |
Images
Nearby Streets
| Name | Average Price | Average Sqft | Distance |
|---|---|---|---|
| Old Bakery Cottages | £ 0 | 0 | 0.00 KM |
| The Orchard | £ 0 | 0 | 0.00 KM |
| Muddle Brook | £ 0 | 0 | 0.00 KM |
| Spinney Close | £ 393,000 | 0 | 0.00 KM |
| Honeysuckle Close | £ 0 | 0 | 0.00 KM |
Nearby Transport
| Name | NLC | TLC | Distance |
|---|---|---|---|
| Barnstaple | 5725 | BNP | 3.82 KM |
Nearby Listings
| Address | Price | Type | Score | Distance |
|---|---|---|---|---|
| Woolmers Lane, Bickington, Barnstaple, Devon, EX31 | £ 350,000 | BUY | 7 / 10 | 0.00 KM |
| Woolmers Lane, Bickington, Barnstaple, Devon, EX31 | £ 425,000 | BUY | 8 / 10 | 0.00 KM |
| Woolmers Lane, Bickington, Barnstaple, Devon, EX31 | £ 425,000 | BUY | 8 / 10 | 0.00 KM |
| Woolmers Lane, Bickington, Barnstaple, Devon, EX31 | £ 560,000 | BUY | 7 / 10 | 0.00 KM |
| Woolmers Lane, Bickington, Barnstaple, Devon, EX31 | £ 335,000 | BUY | 7 / 10 | 0.00 KM |
Nearby Properties
| Address | Price | Distance |
|---|---|---|
| 9 Holland Close | £ 175,000 | 0.10 KM |
| 8 Holland Close | £ 327,000 | 0.10 KM |
| 7 Holland Close | £ 298,000 | 0.10 KM |
| 6 Holland Close | £ 210,000 | 0.10 KM |
| 4 Holland Close | £ 215,000 | 0.10 KM |