Broadmoor Lane, Okehampton
By Robert Williams
£ 399,950
Reviews
3 out of 5 stars
Robert Williams says ..
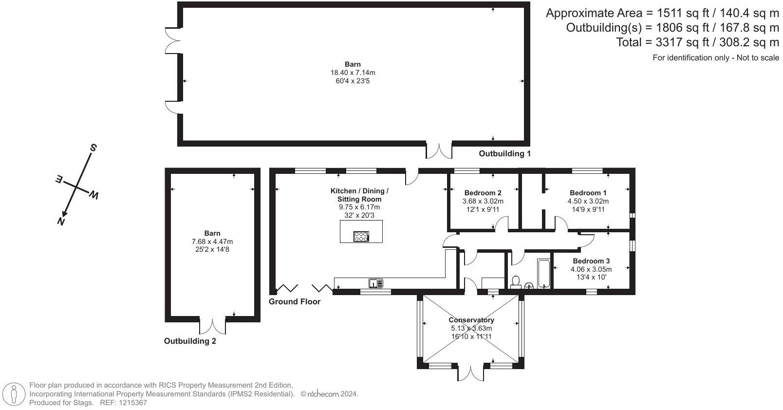
The Willows is a delightful smallholding including approx 5 acres of paddocks, extensive driveway parking, detached barn, further outbuilding/garage and timber built 3 bedroom detached bungalow with certification of lawful use. All located in a rural location on the fringes of Okehampton, with st...
Property Oracle says ..
This property is a modern, three-bedroom smallholding located in Okehampton, Devon. The property benefits from a large plot size of 3,317 sqft and is situated in a rural location with views of the surrounding countryside. The interior is modern and well-presented, with an open-plan kitchen/living area and three bedrooms. There are also several outbuildings included in the sale, which could be used for storage or other purposes. The nearest railway station is Okehampton, approximately 3.12 km away, and there are several primary and secondary schools within a reasonable distance. While the property is in good condition and offers a substantial amount of land, the list price of £399,950 is slightly higher than the average price for properties in the area. The average price per sqft in the area is £286.00, while this property is listed at a much higher price per sqft due to the large plot size and outbuildings. Overall, this property would be suitable for buyers looking for a modern home with plenty of land in a peaceful rural setting.
Therefore, we give this property 7 / 10. *Disclaimer: This is our option and does constitute a recommendation or financial advice. Do your own research. *
- Price
- 6
- Condition
- 9
- Location
- 7
- Land
- 8
- Bedrooms
- 3
- Bathrooms
- 1
- Sqft (est)
- 5,884.81
- Lot (est)
- 3,317.00
The heatmap indicates the level of crime in the area. The color of the heatmap indicates the crime severity and recency.
Metrics Year-on-Year
- Average area value
- 319,000.00 £Increased by 2.65 %
- Est sale value
- 2,118,531.60 £Increased by 3.75 %
- Average area rental value
- 833.00 £/moIncreased by 0.48 %
- Est letting value
- 0.00 £/mo
- Est rental Yield
- 3.13 %Decreased by 2.19 %
- Crime Rate
- 0.00 %
Agent Activity
Robert Williams created the listing.
Nearby Schools
| Name | Type | Ofsted | Distance |
|---|---|---|---|
| Okehampton Primary School And Foundation Unit | Academy Converter | 1.89 KM | |
| Okehampton College | Academy Converter | 2.62 KM | |
| Okehampton Area Children'S Centre | Children's Centre | 2.62 KM | |
| St James Church Of England Primary And Nursery School | Free Schools | 3.87 KM | |
| Exbourne Church Of England Primary School | Academy Converter | 7.87 KM |
Images
Nearby Streets
| Name | Average Price | Average Sqft | Distance |
|---|---|---|---|
| Beacon Down Hill | £ 0 | 0 | 0.00 KM |
| Church Avenue | £ 0 | 0 | 0.00 KM |
| Vicarage Road | £ 0 | 0 | 0.00 KM |
| Ranelagh Road | £ 0 | 0 | 0.00 KM |
| Northams Meadow | £ 0 | 0 | 0.00 KM |
Nearby Transport
| Name | NLC | TLC | Distance |
|---|---|---|---|
| Okehampton | 5786 | OKE | 3.12 KM |
| Sampford Courtenay | 8724 | SMC | 8.85 KM |
Nearby Listings
| Address | Price | Type | Score | Distance |
|---|---|---|---|---|
| Broadmoor Lane, Okehampton | £ 399,950 | BUY | 7 / 10 | 0.00 KM |
| Hatherleigh Road, Okehampton | £ 499,950 | BUY | Unknown | 0.94 KM |
| Upcott Hill, Okehampton, Devon, EX20 | £ 325,000 | BUY | 6 / 10 | 1.04 KM |
| Okehampton | £ 750,000 | BUY | Unknown | 1.26 KM |
| Herons Brook, Okehampton, Devon | £ 400,000 | BUY | 6 / 10 | 1.41 KM |
Nearby Properties
| Address | Price | Distance |
|---|---|---|
| Tor View | £ 230,000 | 1.03 KM |
| Hillcrest | £ 165,000 | 1.03 KM |
| Lower Upcott | £ 465,000 | 1.03 KM |
| The Lodge | £ 325,000 | 1.03 KM |
| Upcott House | £ 445,000 | 1.03 KM |