Rowan Cottage, Wardside, Muthill, PH5
By Irving Geddes W.S.
£ 285,000
Reviews
3 out of 5 stars
Irving Geddes W.S. says ..
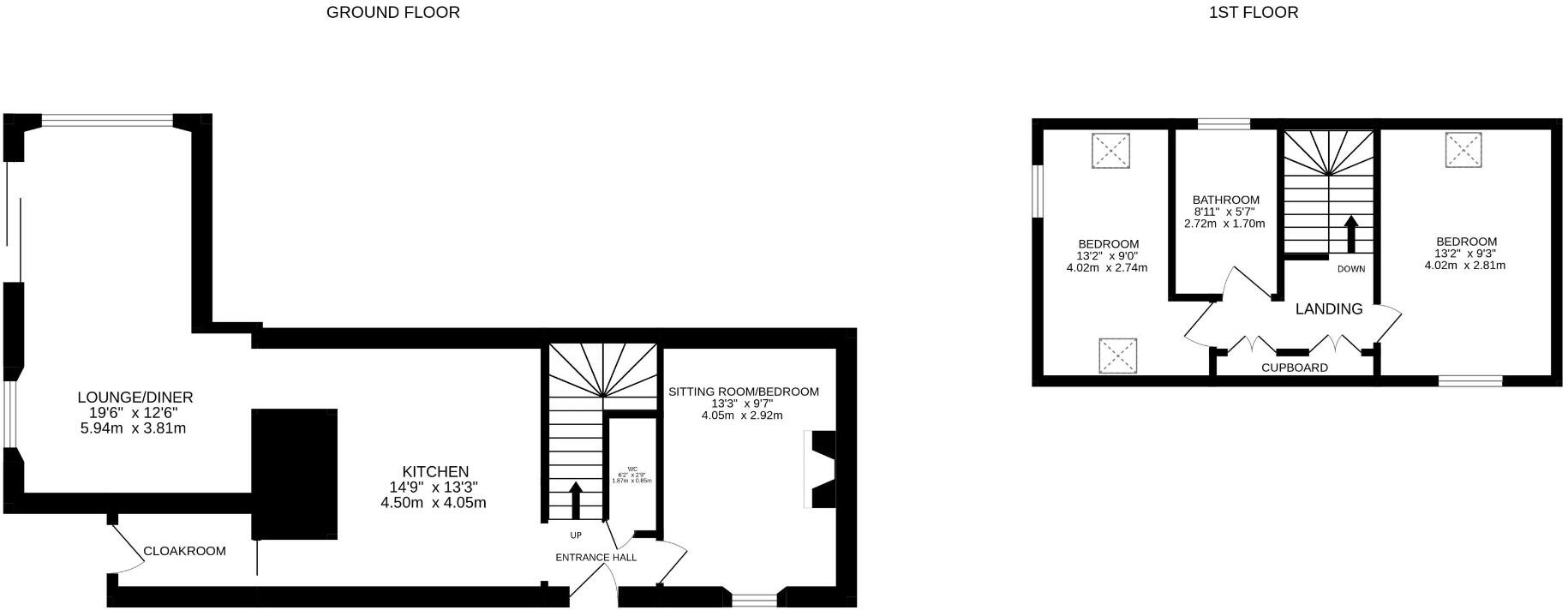
Irving Geddes are delighted to offer this stunning & immaculately presented 2/3 bedroom detached cottage, enjoying a central yet private location within the attractive village of Muthill. Upgraded and extended by the current owners, the cottage blends much period character with modern finishes
Property Oracle says ..
Therefore, we give this property 7 / 10. *Disclaimer: This is our option and does constitute a recommendation or financial advice. Do your own research. *
- Price
- 6
- Condition
- 8
- Location
- 7
- Land
- 8
- Bedrooms
- 3
- Bathrooms
- 1
- Sqft (est)
- 857.15
The heatmap indicates the level of crime in the area. The color of the heatmap indicates the crime severity and recency.
Metrics Year-on-Year
- Average area value
- 217,000.00 £Decreased by 25.55 %
- Est sale value
- 171,430.00 £Increased by 0.50 %
- Average area rental value
- 1,150.00 £/moIncreased by 4.17 %
- Est letting value
- 857.15 £/mo
- Est rental Yield
- 6.36 %Increased by 39.78 %
- Crime Rate
- 0.00 %
from 291,475.00 £
from 170,572.85 £
from 1,104.00 £/mo
from 0.00 £/mo
from 4.55 %
from 0.00 %
Agent Activity
Irving Geddes W.S. created the listing.
Nearby Schools
| Name | Type | Ofsted | Distance |
|---|---|---|---|
| Ardvreck School | Offshore Schools | 5.88 KM |
Images
Nearby Streets
| Name | Average Price | Average Sqft | Distance |
|---|---|---|---|
| Glebe Road | £ 0 | 0 | 0.00 KM |
| The Wynd | £ 0 | 0 | 0.00 KM |
| Back Row | £ 0 | 0 | 0.00 KM |
| Pitkellony Street | £ 140,000 | 0 | 0.00 KM |
| Queensferry Road | £ 175,000 | 0 | 0.00 KM |
Nearby Listings
| Address | Price | Type | Score | Distance |
|---|---|---|---|---|
| Rowan Cottage, Wardside, Muthill, PH5 | £ 285,000 | BUY | 7 / 10 | 0.00 KM |
| Glebe Road, Muthill | £ 300,000 | BUY | 7 / 10 | 0.11 KM |
| 7 Willoughby Street, Muthill, Crieff, PH5 | £ 320,000 | BUY | 7 / 10 | 0.17 KM |
| The Wynd, Muthill, PH5 | £ 195,000 | BUY | Unknown | 0.19 KM |
| Residential Plot, Back Row, Drummond Street, PH5 | £ 150,000 | BUY | 5 / 10 | 0.20 KM |